Дом, Альпийская деревня КП
Код: 101-805
Особенности объекта
Новый, добротный дом из кирпича со СПА комплексом с бассейном, сауной и хамам, гостевой квартирой и квартирой для персонала, беседкой-барбекю, большим гаражом в камерном поселке премиум-класса Альпийская деревня. Дизайнерская отделка хорошего качества. Продвинутая инженерия. В поселке гостевая парковка, детская площадка. Респектабельные соседи: КП Богородское и Милорадово, дом отдыха УДП «Архангельское» и Дом Приемов «Газпром». Тишина. Удобный асфальтированный подъезд. Территория Новой Москвы. Видео
Расположение
Ссылка на карту
Альпийская деревня КП (Городище)
Калужское шоссе, от МКАД: 9 км, всего: 10 км
Тип застройки: обжитой к/п
Метро: Ольховая, Теплый стан, Бунинская аллея; от 13 мин на авто
Коттеджный поселок «Альпийская Деревня»
Дом
Общая площадь строений: 821 м2 (Дом 456 кв.м + СПА комплекс 277 кв.м + гараж с квартирой для персонала 88 кв.м)
Год постройки дома: 2006
Количество уровней: 2
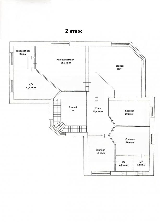
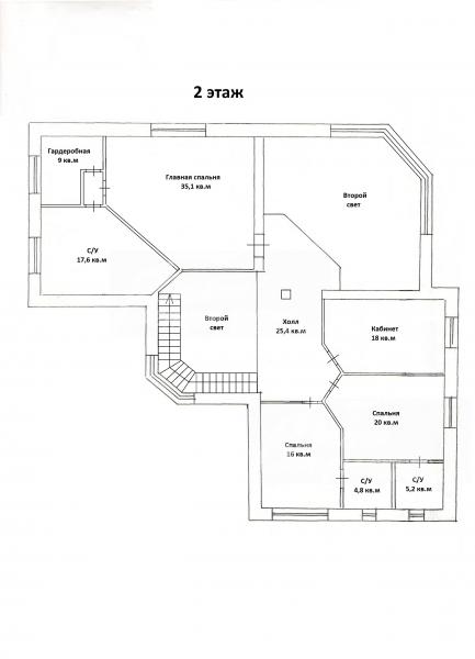
Спален: 5. С/узлов: 5. Комнат всего: 7.
Опции: бассейн; сауна; квартира для персонала; терраса; камин; холодный подвал; машиномест крытых: 2, в т.ч. в теплом гараже: 2; Хамам, бильярдная, зона барбекю.
Материал стен: кирпич
Облицовка стен: Цоколь отделан колотым диким камнем, 1 этаж- искусственным пиленым камнем, 2 этаж и фронтоны оштукатурены и окрашены
Кровля: мягкая
Окна: стеклопакеты ПВХ
Стадия готовности: под ключ
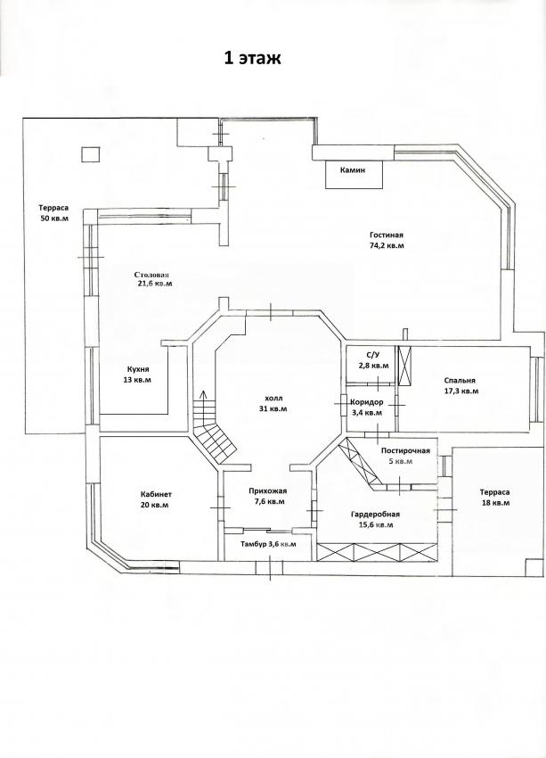
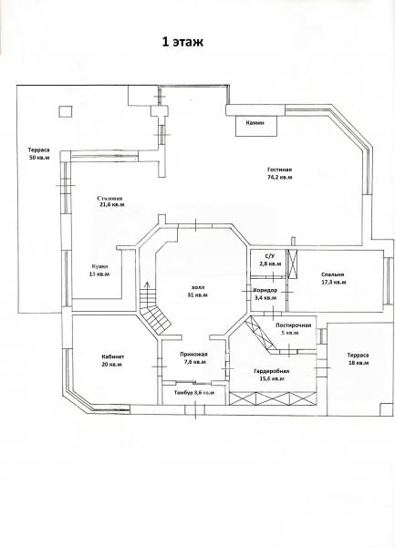
1-ый этаж: Тамбур, прихожая 7.6 кв.м, холл 31 кв.м, кабинет 20 кв.м, кухня 13 кв.м, столовая 21.6 кв.м, гостиная 74 кв.м, спальня 17 кв.м, постирочная 5 кв.м, гардеробная 15.6 кв.м, с/узел 3 кв.м, коридор 3.4 кв.м, терраса 50 кв.м, терраса 18 кв.м.
2-ой этаж: Спальня 16 кв.м, спальня 20 кв.м, кабинет 18 кв.м, холл 25.4 кв.м, два санузла 5 кв.м, главная спальня 35 кв.м, гардеробная 9 кв.м, с/узел 17.6 кв.м.
3-ий этаж: Комната 27 кв.м, комната 33.4 кв.м, галерея 9 кв.м.
Описание внутренней отделки: Современная стильная отделка с использованием дорогих импортных материалов. На стенах декоративная штукатурка и обои. Пол отделан керамогранитом и кафелем с водяным подогревом, массивом из красного дерева. На мансарде в комнатах ковролин. Потолки многоуровневые подвесные из ГКЛ, с различной подсветкой и карнизами, в некоторых комнатах кессоны. Есть витражи с внутренней подсветкой. Лестница железобетонная, ступени отделаны мореным дубом, перила кованые с деревянными поручнями, с подсветкой. Вся сантехника установлена марки Villeroy Boch. Все коммуникации разведены под ключ. Двери массив дерева дизайнерские.
Инженерное обеспечение: В доме установлены два газовых котла марки Wolf по 70 кВт ( взаимозаменяемые). Один для дома, другой для бассейна и дополнительных строений, бойлер косвенного нагрева марки Reflex на 500 л. Система очистки воды многоступенчатая с ионизацией. Во всех жилых помещениях установлены вентиляционные стеновые клапаны, в жилых помещениях кондиционеры. В зоне бассейна принудительная вентиляция с предварительным подогревом. Бассейн имеет современную систему управления ( фильтры, подогрев, химия).
Мебель, оборудование: Кухня- дизайнерский проект ( пр-ва Италия), столешница из искусственного камня, встроенная техника (варочная панель, духовой шкаф, микроволновая печь, посудомоечная машина) марки BOSCH. Люстры - из хрусталя и бронзы, в лестничном холле с третьего по первый этаж из муранского стекла.
Дополнительные строения: СПА комплекс 2-х этажный + цоколь 277 кв.м
Цокольный этаж - тех. помещение под оборудование бассейна и вентиляции для обслуживания чаши бассейна.
1 этаж - Прихожая, комната отдыха с мини кухней и выходом в зону барбекю, зона бассейна (бассейн переливной 8Х3 с противотоком и гидромассажем), парная (с дровяной каменной печью), хамам, душевая, с/у, котельная (вход отдельный с улицы).
2 этаж - Бильярдная с баром, гостевая спальня с с/у и выходом на террасу.
Гараж 2-х этажный с квартирой для персонала 88 кв.м.
1 этаж - гараж на 2 авто с с/у, прихожая квартиры для персонала.
2 этаж - кухня-столовая, спальня, с/у.
Зона барбекю: под террасой между СПА комплексом и гаражом зона барбекю с мангалом.
Беседка летняя каменная.
Дополнительная информация о доме: Фундамент железобетонный монолитный ленточный, перекрытия железобетонные монолитные. Высота потолков от 3 м.
Участок
Площадь участка, соток: 27 (состоит из двух участков 5.9 соток и 22 сотки)
Тип участка: парковый
Благоустройство участка: Растет более 50 хвойных деревьев: сосны, голубые ели, туи, есть плодовый сад (яблони, вишни) и декоративные кустарники, разбит газон, сделаны дорожки из брусчатки, уличное освещение. Вокруг дома и по участку сооружен дренаж. За забором с выходом с участка есть огороженная зона для выгула собак.
Статус земли: земли населенных пунктов для ИЖС
Дополнительная информация об участке: Участок прямоугольной формы, крайний к лесу, огражден с трех сторон кованым прозрачным забором высотой 2 м на каменных столбах с цоколем ( в едином стиле поселка) и с одной стороны (от дороги) глухим каменным высотой 3 м.
Коммуникации
Газ: есть (магистральный)
Э/э: есть (25 кВт)
Водопровод: центральный
Канализация: централизованная
Телефон: есть
Интернет: есть
Охрана: есть (КПП и патрулирование)
Описание инфраструктуры
Охраняемая стоянка для автомобилей гостей, большая и крутая детская площадка с домиками, качелями, батутом. Напротив находится "Дом приемов" Газпрома - спортивно-развлекательный центр с фитнесом, бассейном, СПА, ресторанами и др. В удобной доступности инфраструктура поселка Воскресенское, д/о "Архангельское", Богородское
Хочу посмотретьПоделитесь с друзьями:
Похожие предложения:
Дом, Согласие-1 к/п (Фоминское), 708 м2, 22.5 сот
Ольховая, Прокшино - от 17 мин на автоДом, Согласие-1 к/п
Калужское ш., 14 км + 2 км
пл. участка: 22.5 сот
пл. дома: 708 м2
меблирован
Спален: 6. С/узлов: 4.
Дом, Пенино, 790 м2, 24 сот
Киевское шоссе, от МКАД: 7+10 км
Ольховая, Теплый стан - от 13 мин на автоДом, Пенино
Калужское ш., 11 км + 2 км
пл. участка: 24 сот
пл. дома: 790 м2
меблирован
Спален: 6. С/узлов: 5.









