Продажа дачи, коттеджа, дома на Киевском, Калужском шоссе — цена, описание, фото, расположение на карте.

Дом, Антоновка к/п

Снят с реализации

Деревянный дом 370 кв.м в КП Антоновка

Код: 171-223

Особенности объекта

Качественный деревянный дом (бревно, диаметр 24 см), под ключ, в охраняемом коттеджном поселке Антоновка. Функциональная планировка, светлые комнаты, высокие потолки (3.10 м). Просторный, солнечный участок, гостевой дом (или баня с гостевой квартирой). По дому разведены все центральные коммуникации.

Расположение

Ссылка на карту
Антоновка к/п (Зименки)
Калужское шоссе, от МКАД: 7 км, всего: 9 км
Киевское шоссе, от МКАД: 7 км, всего: 14 км
Метро: Филатов луг, Теплый стан, Бунинская аллея; от 12 мин на авто
Коттеджный поселок «Антоновка»

Дом

Общая площадь строений: 420 м2 (в т.ч.: дом 370 кв.м, дом для гостей/персонала со 2 м этажом 50 кв.м)
Год постройки дома: 2010
Количество уровней: 3
Спален: 4. С/узлов: 3. Комнат всего: 7.
Опции: баня; квартира для персонала; терраса.
Материал стен: оцилиндрованное бревно, диаметр 24 см
Кровля: мягкая
Окна: стеклопакеты ПВХ (двойные, тонированные под дерево)
Стадия готовности: под ключ
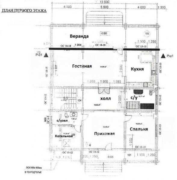
1-ый этаж: крыльцо главного входа 13 кв.м, прихожая-холл 26 кв.м, котельная 11 кв.м, с/узел с постирочной 7.8 кв.м, спальня 18.5 кв.м, второй холл 16 кв.м, с/узел 10.7 кв.м, кухня-столовая 16.7 кв.м, гостиная 45 кв.м, крытая веранда 37 кв.м
2-ой этаж: зал-гостиная 51 кв.м, спальня 18 кв.м, спальня 18 кв.м, спальня 17.9 кв.м, санузел 10 кв.м; Хозяйский блок (коридор, спальня 18 кв.м, кабинет 17.4 кв.м, ванная 17 кв.м)
3-ий этаж: мансарда: 2 комнаты по 25 кв.м
Описание внутренней отделки: стены - бревно; пол - ламинат, плитка; потолки - вагонка; лестничный марш деревянный
Инженерное обеспечение: котел Ferroli 85 кВт, фильтры очистки воды, счетчики электричества и газа, естественная вентиляция; все коммуникации разведены по дому, установлены розетки, радиаторы
Мебель, оборудование: в санузлах будет полностью установлена импортная сантехника
Дополнительные строения: Дом для гостей либо персонала со 2м этажом 50 кв.м. 1-й этаж: крыльцо, прихожая 6 кв.м, санузел 3,5 кв.м, кухня-столовая 25 кв.м; 2 этаж: комната 20 кв.м
Дополнительная информация о доме: Дом в стиле русской бревенчатой усадьбы. Фундамент ленточный, перекрытия деревянные, высота потолков 3.10 м.

Участок

Площадь участка, соток: 21.81
Тип участка: без деревьев
Благоустройство участка: сделан дренаж участка
Статус земли: ИЖС
Дополнительная информация об участке: участок прямоугольной формы, расположен в центре поселка, огорожен деревянным забором с металлическими столбами

Коммуникации

Газ: есть (магистральный)
Э/э: есть (15 кВт)
Водопровод: центральный
Канализация: централизованная
Телефон: возможно подключение (оптоволокно)
Интернет: возможно подключение (оптоволокно)
Охрана: есть (ЧОП)

Описание инфраструктуры

В поселке частный детский сад. Благоустроенная рекреационная зона, выделенные места для активного отдыха - детские игровые и спортивные площадки, многопрофильная игровая площадка со скалодромом, для игр в волейбол, бадминтон, мини-футбол, открытый теннисный корт, баскетбольная площадка, футбольное поле. Зимой площадка превращается в каток. Многоуровневая система безопасности. При въезде в поселок супермаркет "Азбука Вкуса", ресторан Магадан, аптека и фитомагазин, банк. В 1 км фитнес-клуб с бассейном и СПА-зоной, теннисным кортом и батутным центром - Теннис.ру. В 3 км школа-пансион «Летово» для одаренных детей. В 5 км г. Московский. В 5 мин езды метро Филатов Луг.

Элементы положит. окружения

Лесной массив расположен в 1 км.

Хочу посмотреть


Поделитесь с друзьями:

Собираетесь купить дом, дачу или коттедж на Калужском или Киевском направлении? Обязательно воспользуйтесь услугами компании «Белые Ветры», старейшего оператора загородной недвижимости на Юго-западе Подмосковья!
Рейтинг@Mail.ru