Дом, Антоновка к/п
Код: 171-824
Особенности объекта
Роскошный загородный коттедж, под ключ, соответствующий образу жизни современного человека. СПА-зона с бассейном, сауной и хамам. Двусветная гостиная с камином, кухня-столовая с мангалом и выходом на террасу и участок, бильярдная, кабинет, винный погреб, много спален. Качественные, проверенные временем материалы строительства, отделки и оборудование. Взрослые березы и дубы. Статусный строго охраняемый обжитой поселок.
Расположение
Ссылка на карту
Антоновка к/п (Зименки)
Калужское шоссе, от МКАД: 7 км, всего: 9 км
Киевское шоссе, от МКАД: 7 км, всего: 14 км
Тип застройки: обжитой к/п
Метро: Филатов луг, Теплый стан, Бунинская аллея; от 12 мин на авто
Коттеджный поселок «Антоновка»
Дом
Общая площадь строений: 750 м2
Год постройки дома: 2012
Количество уровней: 3
Спален: 5. С/узлов полных: 4. С/узлов неполных: 1. Комнат всего: 12.
Опции: бассейн; сауна; квартира для персонала; терраса; камин; холодный подвал; машиномест крытых: 2, в т.ч. в теплом гараже: 2.
Материал стен: кирпич+минеральный утеплитель
Облицовка стен: клинкерный кирпич, декоративный камень
Кровля: цементно-песчаная черепица (Braas)
Окна: стеклопакеты ПВХ (под дерево, витражи)
Стадия готовности: под ключ
Цоколь: подвал 16 кв.м, винный погреб 25.7 кв.м
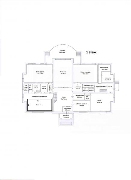
1-ый этаж: гараж на 2 а/м 42 кв.м;
входная группа: тамбур 13 кв.м, холл 42 кв.м, гардеробная 8 кв.м, гостевой с/узел, кухня-столовая с мангалом 48 кв.м и выходом на террасу и участок, двухсветная гостиная с камином 53 кв.м и выходом на террасу 16.6 кв.м, кабинет 21 кв.м, бильярдная 54 кв.м с выходом на террасу; котельная 12.7 кв.м, постирочная 8.7 кв.м.
СПА зона 74 кв.м: бассейн 55 кв.м с противотоком и гидромассажем (чаша 7x4 м), сауна, русская баня, хамам, душ и с/узел.
2-ой этаж: холл-галерея 49 кв.м, хозяйская спальня 32.6 кв.м с гардеробной 13 кв.м и с/узлом 18 кв.м, спальня 29 кв.м с гардеробной и с/узлом, две спальни 29 и 25 кв.м, с/узел 9 кв.м.
Квартира для обслуживающего персонала с отдельным входом из гаража: спальня-гостиная 26.6 кв.м, с/узел.
Описание внутренней отделки: на стенах дорогие английские обои и декоративная венецианская штукатурка; пол - паркет, плитка - керамогранит с подогревом; подвесные потолки; двери - массив дуба (Италия), подоконники мраморные (Италия). Лестничный марш деревянный (дуб) шириной 1.5 м
Инженерное обеспечение: котел Wiessman, бойлер Wiessman; система очистки воды многоуровневая; система подогрева и регенерации воды в бассейне; естественная приточно-вытяжная вентиляция, в бассейне и подвале - принудительная. В спальнях установлены кондиционеры. Все коммуникации разведены по дому.
Мебель, оборудование: В кухне-столовой вдоль стены установлен мангал с полками из мрамора и раковиной, облицованной мрамором. В санузлах установлена дорогая импортная сантехника, в хозяйском с/узле стоит 2-х местная ванна-СПА.
Дополнительная информация о доме: Дом в стиле "шале". Фундамент ленточный, монолитный; ж/б перекрытия, высота потолков от 3 до 9 метров (второй свет).
Участок
Площадь участка, соток: 40
Тип участка: лесной
Благоустройство участка: разбит газон, сделан дренаж
Статус земли: земли населенных пунктов
Дополнительная информация об участке: участок прямоугольной формы в центре поселка; огорожен кованым забором на кирпичных столбах с цоколем, по бокам и сзади - деревянный на цоколе
Коммуникации
Газ: есть (магистральный)
Э/э: есть (40 кВт)
Водопровод: центральный (централизованная скважина)
Канализация: централизованная
Телефон: возможно подключение (за доп.плату)
Интернет: возможно подключение (за доп.плату)
Охрана: есть (круглосуточная, КПП на въезде со шлагбаумом, КП огорожен по всему периметру)
Описание инфраструктуры
В поселке частный детский сад. Благоустроенная рекреационная зона, выделенные места для активного отдыха - детские игровые и спортивные площадки, многопрофильная игровая площадка со скалодромом, для игр в волейбол, бадминтон, мини-футбол, открытый теннисный корт, баскетбольная площадка, футбольное поле. Зимой площадка превращается в каток. Многоуровневая система безопасности. При въезде в поселок супермаркет "Азбука Вкуса", ресторан Магадан, аптека и фитомагазин, банк. В 1 км фитнес-клуб с бассейном и СПА-зоной, теннисным кортом и батутным центром - Теннис.ру. В 3 км школа-пансион «Летово» для одаренных детей. В 5 км г. Московский. В 5 мин езды метро Филатов Луг.
Элементы положит. окружения
Лесной массив расположен в 50 метрах.
Хочу посмотретьПоделитесь с друзьями:
Похожие предложения:
Дом, Творчество КП (Жуковка), 900 м2, 50 сот
Киевское шоссе, от МКАД: 21+14 км
Ольховая, Теплый стан - от 20 мин на автоДом, Творчество КП
Калужское ш., 14 км + 5 км
пл. участка: 50 сот
пл. дома: 900 м2
меблирован
Спален: 7. С/узлов: 5.






