Дом, Антоновка к/п
Снят с реализации
Код: 171-833
Особенности объекта
Шикарный коттедж с современной стильной архитектурой, с дизайнерской отделкой в стиле ар-деко и дорогой мебелью. Качественное строительство из импортных материалов, современная и экономичная система воздушного отопления. Бассейн, баня, квартира для персонала, в каждой спальне свой с/у и гардеробная. Престижный обжитой поселок на Калужском шоссе.
Расположение
Ссылка на карту
Антоновка к/п (Зименки)
Калужское шоссе, от МКАД: 7 км, всего: 9 км
Киевское шоссе, от МКАД: 7 км, всего: 14 км
Тип застройки: сформированный к/п
Метро: Филатов луг, Теплый стан, Бунинская аллея; от 12 мин на авто
Коттеджный поселок «Антоновка»
Дом
Общая площадь строений: 583 м2
Год постройки дома: 2012
Количество уровней: 3
Спален: 5. С/узлов: 6. Комнат всего: 7.
Опции: бассейн; сауна; квартира для персонала; терраса; холодный подвал; машиномест крытых: 2, в т.ч. в теплом гараже: 2; скиммерный бассейн 6.7 м Х 3.5 м глубиной от 1.5 м до 2.1 м с противотоком, гидромассажем, подсветкой, аквариум 1000 л, кинотеатр в бассейне..
Материал стен: керамический блок
Облицовка стен: декоративная штукатурка с элементами керамической мозаики, цоколь отделан искусственным камнем
Кровля: мягкая
Окна: стеклопакеты ПВХ (двухкамерные, с раскладкой, энергосберегающие)
Стадия готовности: меблирован
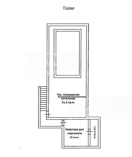
Цоколь: Котельная -тех.помещение (система водоподготовки, оборудование для бассейна, также установка центрального воздушного отопления-кондиционирвоания с рекуперацией) 51 кв.м, квартира для персонала 18 кв.м с с/узлом
1-ый этаж: Крыльцо 16.6 кв.м, холл 19.6 кв.м, гардеробная 8 кв.м ( проход из гаража в холл дома), с/узел, гостевая спальня 14 кв.м с с/узлом 5.5 кв.м, кухня 25.6 кв.м, гостиная-столовая 70 кв.м с выходом на террасу 60 кв.м, кабинет 21.5 кв.м, зона отдыха: бассейн 43 кв.м (чаша 6.7 м Х 3.5 м глубиной 1.5-2.1 м) с противотоком, гидромассажем и подсветкой, сауна 5 кв.м, с/узел, душевая; тамбур-гардероб 5 кв.м (проход из гаража в холл дома), гараж 58 кв.м
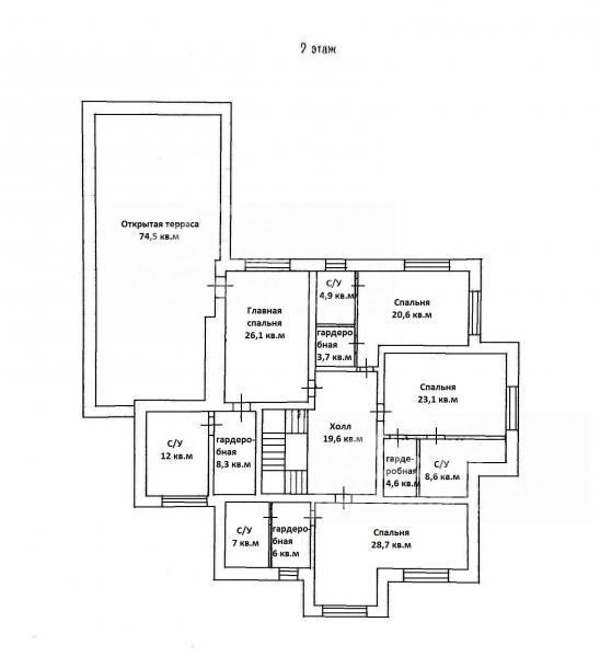
2-ой этаж: Холл 19.6 кв.м, главная спальня 26 кв.м с гардеробной 8 кв.м и с/узлом (вход через гардеробную) 12 кв.м и выходом на террасу 70 кв.м, спальня 21 кв.м с гардеробной и с/узлом 5 кв.м, спальня 23 кв.м с гардеробной и с/узлом 8.6 кв.м, спальня 28.7 кв.м с гардеробной 6 кв.м и с/у (вход через гардеробную) 7 кв.м
Описание внутренней отделки: Стильная отделка из эксклюзивных материалов в стиле ар-деко, использованы мрамор, гранит, искусственный камень "White hills", массив дерева, декоративная штукатурка, большие зеркала, венецианская штукатурка, обои ( пр-ва Англия), покраска. Кафель и керамогранит с водяным подогревом, палубный паркет (массив дуба), в бассейне рельефная мозаика (функция массажа ног). Лестничный марш железобетонный шириной 1м, облицован натуральным мрамором с чугунными литыми перилами. Потолки оштукатурены, выровнены и окрашены, с гипсовыми карнизами по периметру. Вся сантехника установлена немецких и итальянских брендов. Все коммуникации разведены под ключ.
Инженерное обеспечение: В доме функционирует воздушная система отопления, состоящая из теплового насоса "Intertherm", очистителя воздуха "Lifebreath", увлажнителей воздуха "GeneralAir" с рекуператором (уменьшает затраты на отопление в три раза).
Также есть отдельный газовый котел "Ferroli" для бассейна, бойлер на 500 л и водяные теплые полы. Система очистки воды многоступенчатая. В доме подключена сигнализация. В сауне печь с выносным пультом "Harvia".
Мебель, оборудование: Встроенный в стену красивый аквариум на 1000л (есть возможность вместо аквариума сделать камин). В бассейне во всю стену установлен экран кинопроектора. Кухня по индивидуальному заказу с островом, столешница - натуральный гранит, модель "Country House" (США).
Столовый гарнитур и журнальный стол со столешницей из натурального мрамора (фирма Ashley - США). Спальные гарнитуры "Ashley" (США). В бассейне на стене фреска.
Много роскошных зеркал, светильники итальянские, большие душевые кабины в с/узлах.
Дополнительная информация о доме: Фундамент-железобетонная монолитная плита, перекрытия-железобетонные монолитные плиты. Высота потолков от 3 м, в бассейне от 3.5 м.
Участок
Площадь участка, соток: 14
Тип участка: парковый, с садовыми и декоративными молодыми деревьями
Благоустройство участка: Выполнен ландшафтный дизайн: высажены более 20 туй, клены 7 шт., сосны 3 шт., голубые ели 2 шт., растут горные сосны, декоративные кустарники, розарии, яблони, черешни, калина. Разбит газон, сооружены альпийская горка, каменный сад; дорожки выложены из брусчатки, сделаны уличное освещение, дренаж вокруг дома и участка
Статус земли: земли населенных пунктов для ИЖС
Дополнительная информация об участке: участок прямоугольной формы в центре поселка - в его элитной части, с фасада каменный забор высотой 2 м, с других сторон - деревянный сплошной с цоколем и каменными столбами
Коммуникации
Газ: есть (магистральный)
Э/э: есть (25 кВт)
Водопровод: центральный (ВЗУ на поселок)
Канализация: централизованная
Телефон: есть (МГТС)
Интернет: есть (высокоскоростной, также спутниковое ТВ)
Охрана: есть (строгая, КПП, патрулирование)
Описание инфраструктуры
В поселке частный детский сад. Благоустроенная рекреационная зона, выделенные места для активного отдыха - детские игровые и спортивные площадки, многопрофильная игровая площадка со скалодромом, для игр в волейбол, бадминтон, мини-футбол, открытый теннисный корт, баскетбольная площадка, футбольное поле. Зимой площадка превращается в каток. Многоуровневая система безопасности. При въезде в поселок супермаркет "Азбука Вкуса", ресторан Магадан, аптека и фитомагазин, банк. В 1 км фитнес-клуб с бассейном и СПА-зоной, теннисным кортом и батутным центром - Теннис.ру. В 3 км школа-пансион «Летово» для одаренных детей. В 5 км г. Московский. В 5 мин езды метро Филатов Луг.
Элементы положит. окружения
Лесной массив расположен в 100 метрах, в 200 метрах протекает река Сосенка.
Хочу посмотретьПоделитесь с друзьями:
Похожие предложения:
Дом, Изумрудная долина к/п (Ширяево), 614 м2, 15 сот
Киевское шоссе, от МКАД: 21+9 км
Ольховая, Теплый стан - от 21 мин на автоДом, Изумрудная долина к/п
Калужское ш., 17 км + 6 км
пл. участка: 15 сот
пл. дома: 614 м2
меблирован
Спален: 8. С/узлов: 5.

Дом, Ильичевка к/п (Ильичевка), 528 м2, 15 сот
Киевское шоссе, от МКАД: 21+10 км
Крёкшино, Ольховая - от 24 мин на автоДом, Ильичевка к/п
Калужское ш., 17 км + 5 км
пл. участка: 15 сот
пл. дома: 528 м2
меблирован
Спален: 5. С/узлов: 5.








