Продажа дачи, коттеджа, дома на Киевском, Калужском шоссе — цена, описание, фото, расположение на карте.

Дом, Бачурино

Снят с реализации

Дом 230 кв.м под чистовую отделку в деревне Бачурино

Код: 103-411

Особенности объекта

Кирпичный дом, под чистовую отделку, на ухоженном лесном участке с прудом, гостевым домом с мебелью и сауной и беседкой для барбекю. Есть отдельностоящий винный погреб. Центральные коммуникации, телефон, интернет. 

Расположение

Ссылка на карту
Бачурино
Калужское шоссе, от МКАД: 4 км, всего: 7 км
Тип застройки: коттеджная застройка
Метро: Ольховая, Теплый стан, Бунинская аллея; от 10 мин на авто

Дом

Общая площадь строений: 230 м2
Год постройки дома: 2011
Количество уровней: 2
Спален: 4. С/узлов: 2. Комнат всего: 7.
Опции: баня; сауна; терраса; камин; есть отдельно-стоящий винный погреб.
Материал стен: кирпич и + пеноблок с утеплителем - основной дом, бревно - гостевой дом
Облицовка стен: кирпич (основной дом)
Кровля: металлочерепица
Окна: стеклопакеты ПВХ
Стадия готовности: под чистовую отделку (гостевой дом под ключ)
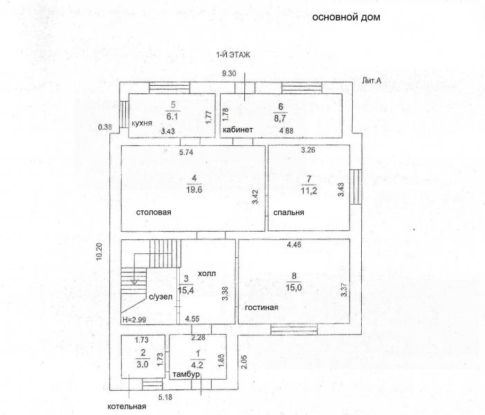
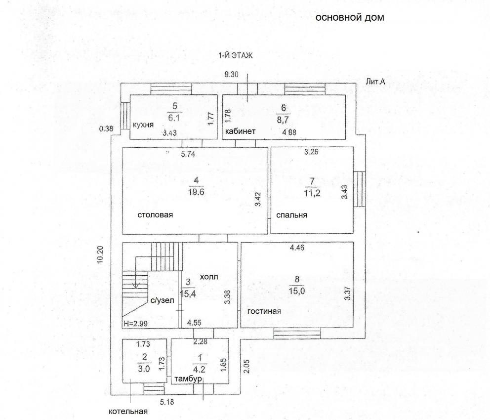
1-ый этаж: Тамбур, котельная, холл, санузел, гостиная 15 кв.м, столовая 19.6 кв.м, спальня 11 кв.м, кухня 6 кв.м, кабинет 8.7 кв.м
2-ой этаж: Спальня 14.4 кв.м, спальня 16.6 кв.м, спальня 10.7 кв.м, холл 9 кв.м, санузел 7 кв.м, подсобное помещение, лоджия 15 кв.м.
3-ий этаж: Чердак 70 кв.м
Описание внутренней отделки: Стены основного дома оштукатурены и ошпаклеваны. Полы- черновая стяжка. Лестничный марш бетонный.
Инженерное обеспечение: В доме установлен настенный двухконтурный котел марки Buderus и электрический котел на 6 кВт в гостевом доме. Вентиляция естественная.
Дополнительные строения: - Гостевой дом - из бревна, под ключ; отделан деревом. Все коммуникации разведены под ключ, установлена сантехника .1 этаж: тамбур, кухня-столовая 16 кв.м, с/узел, парная 6 кв.м. 2 этаж: спальня 22 кв.м. Мансарда: 14.5 кв.м.
- Беседка,
- Погреб отдельностоящий 3м Х 3м из кирпича.
Дополнительная информация о доме: Фундамент ленточный, перекрытия железобетонные плиты в основном доме, вагонка в гостевом. Высота потолков от 2.83 м.

Участок

Площадь участка, соток: 15
Тип участка: лесной
Благоустройство участка: На участке растут вековой дуб, 3 голубых ели, березы, яблони, садовые кусты, туи около 150 штук. Есть пруд с рыбой 6 м Х 10 м глубиной 3 м.
Статус земли: Земли населенных пунктов
Дополнительная информация об участке: Участок прямоугольной формы, расположен в центре поселка.

Коммуникации

Газ: есть (магистральный)
Э/э: есть (15 кВт)
Водопровод: индивид. скважина (124 м)
Канализация: автономная
Телефон: есть (по границе)
Интернет: есть

Описание инфраструктуры

Спортивная площадка, инфраструктура поселка Коммунарка

Хочу посмотреть


Поделитесь с друзьями:

Собираетесь купить дом, дачу или коттедж на Калужском или Киевском направлении? Обязательно воспользуйтесь услугами компании «Белые Ветры», старейшего оператора загородной недвижимости на Юго-западе Подмосковья!
Рейтинг@Mail.ru