Продажа дачи, коттеджа, дома на Киевском, Калужском шоссе — цена, описание, фото, расположение на карте.

Дом, Бельгийская Деревня к/п

Снят с реализации

Коттедж в поселке Бельгийская деревня на берегу озера

Код: 102-808

Особенности объекта

Уникальное предложение! Коттедж со своим выходом к озеру в лучшем поселке на Калужском шоссе. Прогуляйтесь по поселку Бельгийская деревня с помощью видеоролика. Поселок полностью построен, обжит, красивейшие въездная группа, общественные территории с ландшафтным дизайном в стиле старинной Европы. Все дома в едином стиле, облицованы настоящим бельгийским кирпичом в разной цветовой гамме

Расположение

Ссылка на карту
Бельгийская Деревня к/п (Летово)
Калужское шоссе, от МКАД: 7 км, всего: 12 км
Киевское шоссе, от МКАД: 7 км, всего: 14 км
Тип застройки: сформированный к/п
Метро: Филатов луг, Теплый стан, Бунинская аллея; от 16 мин на авто
Коттеджный поселок «Бельгийская Деревня»

Дом

Общая площадь строений: 2131 м2 (в т.ч.: дом 1350 кв.м, комплекс 524 кв.м - СПА зона с бассейном, гараж на 4 а/м, кв-ра для персонала)
Год постройки дома: 2012
Количество уровней: 4
Спален: 9. С/узлов: 15. Комнат всего: 20.
Опции: бассейн; баня; квартира для персонала; терраса; холодный подвал; машиномест крытых: 4, в т.ч. в теплом гараже: 4; возможно оборудовать камин, сауну.
Материал стен: ж/б монолитный каркас, заложен очаковским кирпичом+утеплитель 50 мм
Облицовка стен: натур.керам. облицовочный кирпич Vandersanden
Кровля: натуральная черепица
Окна: другое
Стадия готовности: под отделку (свободная планировка)
Цоколь: Свободная планировка, по проекту: холл 34 кв.м с лифтом, общий с/узел, винотека 29.6 кв.м, сервизная 22 кв.м, бытовая кладовая 8 кв.м, постирочная 16 кв.м; кабинет управляющего 14.5 кв.м, кухня профессиональная (для поваров) 31 кв.м, подсобная 13 кв.м, кладовая продуктов 9 кв.м, холодильная камера 8 кв.м, столовая для персонала 29 кв.м, курительная комната 4.4 кв.м, с/узел; тренажерный зал 59 кв.м, раздевалка 5 кв.м с с/узлом 4.5 кв.м, парикмахерская 6 кв.м, маникюрная 16 кв.м, массажная комната 19 кв.м с душевой и с/узлом, отдельные раздевалки - мужская и женская по 13 кв.м с душевыми и с/узлами, электрощитовая 17.5 кв.м, техническое помещение (вход с улицы) 76 кв.м, коридор 17 кв.м - подземная галерея из дома в бассейн.
1-ый этаж: Свободная планировка, по проекту: крыльцо 5 кв.м, тамбур 7 кв.м, прихожая 17 кв.м, раздевалка 17 кв.м, гардеробная 17 кв.м, холл со вторым светом 27 кв.м, лифт 2.5 кв.м, гостевой с/узел 4.6 кв.м, детская игровая 34 кв.м, кухня 35.5 кв.м, столовая 34 кв.м, гостиная 136 кв.м с выходом на открытую веранду, домашний кинозал 36 кв.м с биллиардной 34 кв.м, коридор 12 кв.м, с/узел 5 кв.м, кабинет 30 кв.м, переход-зимний сад (из дома в бассейн) 38.6 кв.м
2-ой этаж: Свободная планировка, по проекту: холл 32 кв.м с лифтом, Главная спальня 48 кв.м с выходом на балкон 12 кв.м, апартаментами 40 кв.м, с гардеробной 21.6 кв.м и ванной комнатой 22 кв.м; спальня 32 кв.м с апартаментами 31.5 кв.м, с ванной комнатой 12 кв.м с балконом, спальня 25 кв.м с гардеробной 6 кв.м, с апартаментами 34 кв.м с гардеробной 4 кв.м и с/узлом 10 кв.м, с балконом 12 кв.м, спальня 30 кв.м с апартаментами 31 кв.м, с с/узлом 8 кв.м, спальня 31.5 кв.м с с/узлом 8 кв.м
3-ий этаж: Свободная планировка, по проекту: холл с лифтом 21 кв.м, Гостевой блок: апартаменты 30 кв.м, спальня-гостиная 46 кв.м, кинозал 17 кв.м, гардеробная 10 кв.м, кухня-столовая 9.6 кв.м, с/узел 11 кв.м; хозяйственная комната 5 кв.м, две спальни по 44 кв.м с с/узлами по 15 кв.м и гардеробными, спальня 50 кв.м с с/узлом 14.5 кв.м и гардеробной 10 кв.м
Описание внутренней отделки: помещения - "под отделку" со свободной планировкой, установлены временные деревянные лестницы
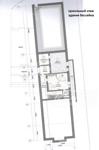
Дополнительные строения: Комплекс 524 кв.м, состоящий из СПА-зоны с бассейном (чаша 12х6, глубина 2.2 м), квартиры для персонала и гаража на 4 а/м (все помещения - "под отделку"). Цокольный этаж по проекту: переход из дома в комплекс, тамбур 7 кв.м, холл 16 кв.м, прихожая 27 кв.м, с/узел, крыльцо 8.5 кв.м (выход на улицу), бойлерная 26 кв.м, инженерное помещение 9 кв.м, технический проход вокруг чаши бассейна (отдельный вход с улици) 36 кв.м.
1 этаж (по проекту): переход из дома (зимний сад), зона бссейна (СПА зона) со вторым светом и панорамным остеклением 82 кв.м с выходом на открытое патио, тамбур 7 кв.м, раздевалка 8 кв.м, душевая, с/узел, сауна 7 кв.м, коридор (вход из перехода) 9 кв.м, гараж на 4 авто 89 кв.м
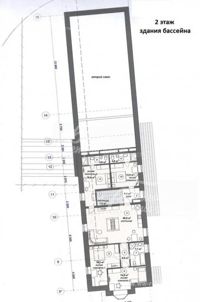
2 этаж - квартира для персонала (по проекту): холл 4 кв.м, жилая комната 13 кв.м с с/узлом 4.6 кв.м, кухня-столовая 41 кв.м, жилая комната 17 кв.м с с/узлом 4.6 кв.м, коридор, жилая комната 19 кв.м, комната 15 кв.м, с/узел 7 кв.м.
Дополнительная информация о доме: Фундамент дома - железобетонные буро-забивные сваи, перекрытия - монолитные железобетонные, высота потолков от 3.5 метров.

Участок

Площадь участка, соток: 36.5
Тип участка: прибрежный, с прибрежными деревьями
Благоустройство участка: на участке около 10 деревьев, сделан дренаж участка и вокруг дома
Статус земли: земли населенных пунктов, для дачного строительства
Дополнительная информация об участке: участок прямоугольной формы в центре поселка у озера, огорожен кованым забором на кирпичных столбах

Коммуникации

Газ: есть (магистральный)
Э/э: есть (30 кВт)
Водопровод: центральный
Канализация: централизованная
Телефон: возможно подключение (МГТС)
Интернет: возможно подключение (оптиковолокно)
Охрана: есть (строгая вооруженная, КПП, патрулирование, видеонаблюдение)

Описание инфраструктуры

На территории поселка разбит ландшафтный парк с мощеными прогулочными аллеями, детский городок, спортивные сооружения, футбольное поле. На берегу озера – пляж и организована набережная для прогулок, лодочная станция. При въезде в поселок находится частный детский сад Sun School. В 2-х километрах расположена знаменитая и современная школа для талантливых детей - "Школа Летово". Поблизости, на въезде в поселок Антоновка, есть продуктовый супермаркет Азбука Вкуса, модный ресторан, ставший уже культовым - Магадан, банк "Открытие", аптека и фитомагазин, химчистка, магазин цветов, банкомат и частный детский сад "Сказочный Садик". В 5 минутах на автомобиле г. Московский с городской инфраструктурой (школы, детские сады, поликлиника, торговые центры, фитнес-клубы, салоны красоты и др.). В 7 минутах от поселка Бельгийская Деревня находится семейный фитнес-клуб с бассейном, батутным центром и теннисным клубом - Теннис.ру. А в 10 минутах фитнес клуб с бассейном "Дубровка", рестораны Somemeat, Флорентини, Чё Хотели Пили Ели, Птицы и Пчелы и др., а также супермаркет. Удобно добираться до школ на юго-западе Москвы, в 20 минутах езды - известная школа № 109, возглавляемая Ямбургом Е.А. (в 2006 году стала лауреатом национального проекта «Образование»), также известна школа № 51.

Элементы положит. окружения

Лесной массив расположен в 350 метрах, дом на берегу озера площадью 8 Га.

Хочу посмотреть


Поделитесь с друзьями:

Собираетесь купить дом, дачу или коттедж на Калужском или Киевском направлении? Обязательно воспользуйтесь услугами компании «Белые Ветры», старейшего оператора загородной недвижимости на Юго-западе Подмосковья!
Рейтинг@Mail.ru