Продажа дачи, коттеджа, дома на Киевском, Калужском шоссе — цена, описание, фото, расположение на карте.

Дом, Бельгийская Деревня к/п

Снят с реализации

Дом премиум класса в поселке Бельгийская Деревня

Код: 102-910

Особенности объекта

Новый меблированный дом на просторном прилесном участке в жилом коттеджном поселке класса de-lux. Отделка из элитных материалов в классическом стиле, мебель известных итальянских марок. На участке также гостевой дом под чистовую отделку, также предусмотрен комплекс для отдыха и спорта с бассейном. В поселке есть чистое глубокое озеро площадью 8 га  с благоустроенной пляжной зоной, собственный поселковый ландшафтный парк для прогулок. Поселок окружен лесом.

Расположение

Ссылка на карту
Бельгийская Деревня к/п (Летово)
Калужское шоссе, от МКАД: 7 км, всего: 12 км
Киевское шоссе, от МКАД: 7 км, всего: 14 км
Тип застройки: обжитой к/п
Метро: Филатов луг, Теплый стан, Бунинская аллея; от 16 мин на авто
Коттеджный поселок «Бельгийская Деревня»

Дом

Общая площадь строений: 753 м2 (в т.ч.: основной дом 458 кв.м, гостевой дом 295 кв.м)
Год постройки дома: 2011
Количество уровней: 3
Спален: 6. С/узлов: 7. Комнат всего: 9.
Опции: квартира для персонала; терраса; камин; машиномест крытых: 2, в т.ч. в теплом гараже: 2; предусмотрены бассейн и СПА-комплекс.
Материал стен: монолитный ж/б каркас, керамический кирпич
Облицовка стен: натуральный керамический облицовочный кирпич Vandersanden
Кровля: натуральная черепица
Окна: стеклопакеты деревянные (2хкамерные, с раскладкой, энергосберегающие)
Стадия готовности: меблирован
1-ый этаж: по проекту: гостиная/каминный зал 57 кв.м с выходом на веранду, 2-я гостиная с зоной столовой 43 кв.м, кухня 14.7 кв.м, с/у 4.4 кв.м, гараж на 2 авто 44 кв.м, холл 12 кв.м, гостевой с/у 6 кв.м. По концепции древнего архитектора Визария 1-й этаж просматривается полностью по диагоналям;
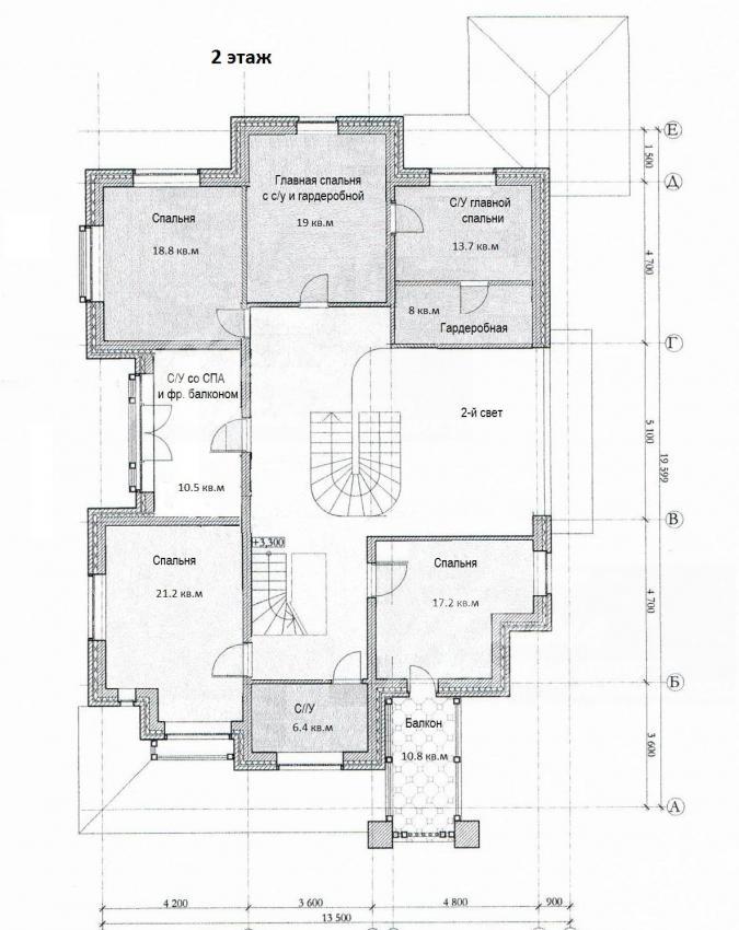
2-ой этаж: по проекту: 3 спальни 19 кв.м, балкон 10.8 спальни 21,2 кв.м, 17,2 кв.м, 2 с/у 6,4кв.м, 10,5 кв.м, главная спальня 19 кв.м с с/у 13,7кв.м и гардеробной 8кв.м
3-ий этаж: проектная площадь 100 кв.м мужская зона: спальня 17 кв.м, с/у 10 кв.м; просторная библиотека включает в себя: зона отдыха с камином 23 кв.м, кабинет 15 кв.м с с/у 6 кв.м;
Описание внутренней отделки: дорогостоящая высококлассная отделка: арки из массива дуба (Италия), камины мраморные (Италия). На стенах дизайнерские ситцевые обои, пол - паркетная доска, плитка, керамогранит с водяным подогревом. Лестница из массива дуба. Лестничный марш оборудован датчиками движения на подсветку ступеней. Разноуровневые потолки с кессонами (гипсокартон, элементы декора. покраска) Художественная авторская роспись на потолке 1 этажа. Холст - итальянский пейзаж, копия росписи венецианского полацио. Мраморные подоконники Сrema Marfill в классическом стиле. Качественные импортные двери массив дуба, золоченая фурнитура. Высота дверей на 1 этаже - 2.15 м; на 2 этаже - 1.97 м;
Инженерное обеспечение: все коммуникации разведены по дому, использованы медные трубы, котел Viessmann vitogas 050, бойлер Vitocell на 300л, оборудована система очистки воды; вентиляция естественная приточно-вытяжная. Установлена сигнализация снаружи и внутри дома.
Мебель, оборудование: дом полностью меблирован: светильники и мебель Италия. Кухонный гарнитур Италия (Francesco Molon) дерево цвета молока с бронзовой фурнитурой в классическом стиле, столешница - искусственный камень, холодильник и бытовая техника smeg. Столовый гарнитур на 6 персон. Французские шторы. Карнизы латунные. В санузлах установлена сантехника марки Villeroy&Boch
Дополнительные строения: гостевой дом 135кв.м и фундамент под спорт. комплекс с чашей под бассейн 12х6.
Гостевой дом: 3 уровня. 1 этаж - для охраны: с/у, кладовая, 1 спальни, котельная (котел электрический + газовый, бойлер) 2-й этаж - гостевой: с/у, кладовая, 3 спальни 10+14+14 + терраса, 3 этаж мансарда - биллиардная. Отделка - под чистовую. коммуникации заведены, отапливается
Дополнительная информация о доме: дом выполнен, как и весь поселок, в европейском стиле, а именно бельгийской провинции. Интерьер - в классическом английском стиле. Фундамент дома - буронабивные сваи, перекрытия железобетонные, высота потолков 1 этаж - 3.39 м, 2 этаж - 3.1 кв.м, мансарда - от 0.7 м до 5 м. Дом выполнен, как и весь поселок в европейском стиле, а именно в стиле бельгийской провинции. Интерьер: 1 и 2 этажи - в викторианском стиле, 3 этаж - в георгианском;

Участок

Площадь участка, соток: 49 (30 соток в собственности, 19 соток - аренда леса)
Тип участка: без деревьев + лесной участок в аренде
Благоустройство участка: участок высокий, выровнен и засеян газоном
Статус земли: земли населенных пунктов для дачного строительства
Дополнительная информация об участке: участок расположен в глубине поселка и граничит с лесом, огорожен прозрачным кованым забором на кирпичном цоколе;

Коммуникации

Газ: есть (магистральный)
Э/э: есть
Водопровод: центральный
Канализация: централизованная
Телефон: есть
Интернет: есть
Охрана: есть (строгая вооруженная, КПП, патрулирование, видеонаблюдение)

Описание инфраструктуры

На территории поселка разбит ландшафтный парк с мощеными прогулочными аллеями, детский городок, спортивные сооружения, футбольное поле. На берегу озера – пляж и организована набережная для прогулок, лодочная станция. При въезде в поселок находится частный детский сад Sun School. В 2-х километрах расположена знаменитая и современная школа для талантливых детей - "Школа Летово". Поблизости, на въезде в поселок Антоновка, есть продуктовый супермаркет Азбука Вкуса, модный ресторан, ставший уже культовым - Магадан, банк "Открытие", аптека и фитомагазин, химчистка, магазин цветов, банкомат и частный детский сад "Сказочный Садик". В 5 минутах на автомобиле г. Московский с городской инфраструктурой (школы, детские сады, поликлиника, торговые центры, фитнес-клубы, салоны красоты и др.). В 7 минутах от поселка Бельгийская Деревня находится семейный фитнес-клуб с бассейном, батутным центром и теннисным клубом - Теннис.ру. А в 10 минутах фитнес клуб с бассейном "Дубровка", рестораны Somemeat, Флорентини, Чё Хотели Пили Ели, Птицы и Пчелы и др., а также супермаркет. Удобно добираться до школ на юго-западе Москвы, в 20 минутах езды - известная школа № 109, возглавляемая Ямбургом Е.А. (в 2006 году стала лауреатом национального проекта «Образование»), также известна школа № 51.

Элементы положит. окружения

Участок непосредственно граничит с лесным массивом, поселковое озеро находится через линию участков, тихое место.

Хочу посмотреть


Поделитесь с друзьями:

Собираетесь купить дом, дачу или коттедж на Калужском или Киевском направлении? Обязательно воспользуйтесь услугами компании «Белые Ветры», старейшего оператора загородной недвижимости на Юго-западе Подмосковья!
Рейтинг@Mail.ru