Продажа дачи, коттеджа, дома на Киевском, Калужском шоссе — цена, описание, фото, расположение на карте.

Дом, Былово

Снят с реализации

Дом 450 кв.м на участке 20 соток на берегу большого озера в Былово

Код: 195-117

Особенности объекта

Просторный трехэтажный коттедж на берегу живописного озера с собственной набережной и местом для рыбалки. В доме 7 спален, квартира для персонала, сауна и патио-барбекю. Полностью меблированный, выполненный по индивидуальному авторскому проекту в стиле фахверк, расположен в обжитом поселке. В шаговой доступности Храм 19-го века, магазины и общественный транспорт, строится детский сад. Видеоролик о доме

Расположение

Ссылка на карту
Былово
Калужское шоссе, от МКАД: 24 км, всего: 27 км
Тип застройки: обжитой к/п
Метро: Ольховая, Теплый стан, Бунинская аллея; от 24 мин на авто

Дом

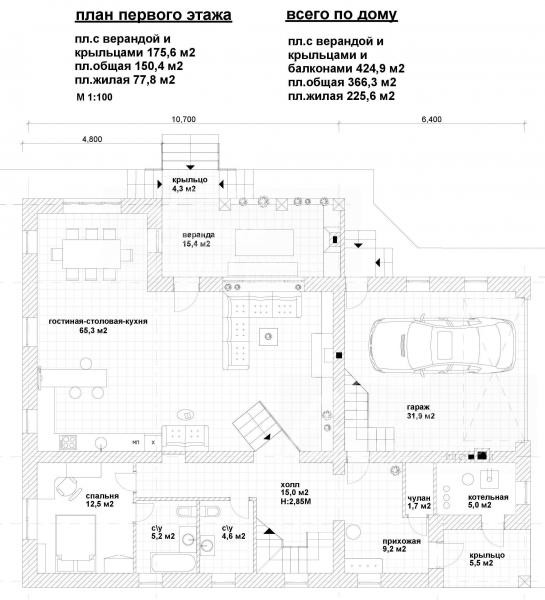
Общая площадь строений: 450 м2 (425 кв.м основной дом +25 кв.м хоз.блок)
Год постройки дома: 2011
Количество уровней: 3
Спален: 7. С/узлов полных: 4. С/узлов неполных: 1. Комнат всего: 9.
Опции: сауна; квартира для персонала; терраса; камин; машиномест крытых: 1, в т.ч. в теплом гараже: 1; патио, барбекю на террасе.
Материал стен: керамзитобетонные блоки с кирпичом и утеплителем
Облицовка стен: штукатурка, покраска, набивные деревянные балки в стиле фахверк, клинкерная плитка
Кровля: цементно-песчаная черепица
Окна: стеклопакеты ПВХ
Стадия готовности: меблирован
1-ый этаж: Гараж 32 кв.м, гостиная-столовая-кухня 65 кв.м с выходом на веранду 15 кв.м, спальня 12.5 кв.м, 2 санузла, холл 15 кв.м, прихожая 9 кв.м, чулан, котельная 5 кв.м.
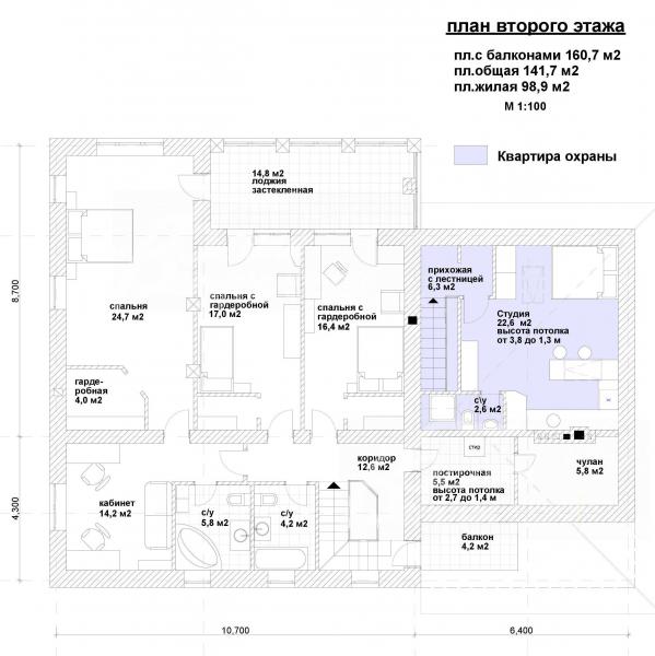
2-ой этаж: Спальня 24.7 кв.м с гардеробной, кабинет 14 кв.м, 2 санузла, спальня с гардеробной 17 кв.м, спальня с гардеробной 16.4 кв.м, лоджия 15 кв.м, постирочная 5.5 кв.м, кладовая 5.8 кв.м, балкон 4 кв.м, квартира для персонала 31.5 кв.м с отдельным входом.
3-ий этаж: Спальня 22 кв.м, спальня 10 кв.м, спальня 16.4 кв.м, санузел 5 кв.м, сауна 5 кв.м, коридор 16 кв.м, балкон 14.4 кв.м.
Описание внутренней отделки: Стены оштукатурены, покрашены. Полы из керамогранита с подогревом и паркетной доски. Потолки ГКЛ, оштукатурены. Лестничный марш на бетонном основании, отделан плиткой. Вся сантехника установлена. Все коммуникации разведены под ключ. Двери шпонированные.
Инженерное обеспечение: Вентиляция естественная. Система очистки воды многоуровневая. В доме установлены котел Thermona на 50 кВт и бойлер Ariston на 300 л, генератор на 6 кВт.
Дополнительные строения: Хозблок 24 кв.м.
Дополнительная информация о доме: Фундамент ленточный на сваях, перекрытия межэтажные железобетонные.

Участок

Площадь участка, соток: 20
Тип участка: с деревьями
Благоустройство участка: На участке разбит газон, цветники, растут лесные деревья: ольха, сосны, кустарники, сделаны дорожки, выход к воде, стоянка на 6 авто.
Статус земли: земли населенных пунктов
Дополнительная информация об участке: Участок прямоугольной формы, расположен в середине поселка, у воды, огражден кирпичным забором высотой 2.5 м.

Коммуникации

Газ: есть (магистральный)
Э/э: есть (9 кВт)
Водопровод: индивид. скважина (60 м)
Канализация: автономная
Интернет: есть

Описание инфраструктуры

В шаговой доступности находятся новый государственный детский сад и муниципальный детский клуб. Ближайший сетевой магазин расположен в 450 м от дома. В пешей доступности также находится один из лучших парков Новой Москвы - спортивно-досуговый парк Красная Пахра: в парке есть почти все для отдыха и занятия спортом: футбольное поле с искусственным покрытием, волейбольная площадка, баскетбольная площадка, теннисные корты, площадка для воркаута, детские площадки, велосипедные дорожки, превращающиеся зимой в лыжную трассу. Есть пляжная зона с беседками и мангалами. Идеальное место для отдыха всей семьей. Через деревню протекает река Желетовка с большим водоемом. В пешей доступности расположена автобусная остановка, в настоящий момент идёт строительство новой станции метро в городе Троицк. В шаговой доступности Михайло-Архангельский храм (1862 года).

Хочу посмотреть


Поделитесь с друзьями:

Собираетесь купить дом, дачу или коттедж на Калужском или Киевском направлении? Обязательно воспользуйтесь услугами компании «Белые Ветры», старейшего оператора загородной недвижимости на Юго-западе Подмосковья!
Рейтинг@Mail.ru