Дом, Бурцево КП
Код: 231-212
Особенности объекта
Совершенно новый (никто не жил) меблированный одноэтажный дом в стиле хай-тек, полностью готовый к заселению. В доме функциональная планировка, высокие потолки, много естественного света за счет большой площади остекления. Дом стоит на облагороженном компактном участке, не требующем вложений. Участок расположен в живописном месте, в прекрасной природной локации: в 300 м от большого пруда, в 500 м от леса, неподалёку протекает река Незнайка. Коттеджный посёлок – с комфортной средой для жизни, строго охраняемый, с центральными коммуникациями, рядом с городской инфраструктурой.
Расположение
Ссылка на карту
Бурцево КП (Бурцево)
Киевское шоссе, от МКАД: 14 км, всего: 15 км
Тип застройки: обжитой к/п
Метро: Филатов луг, Аэропорт Внуково, Саларьево; от 18 мин на авто
Дом
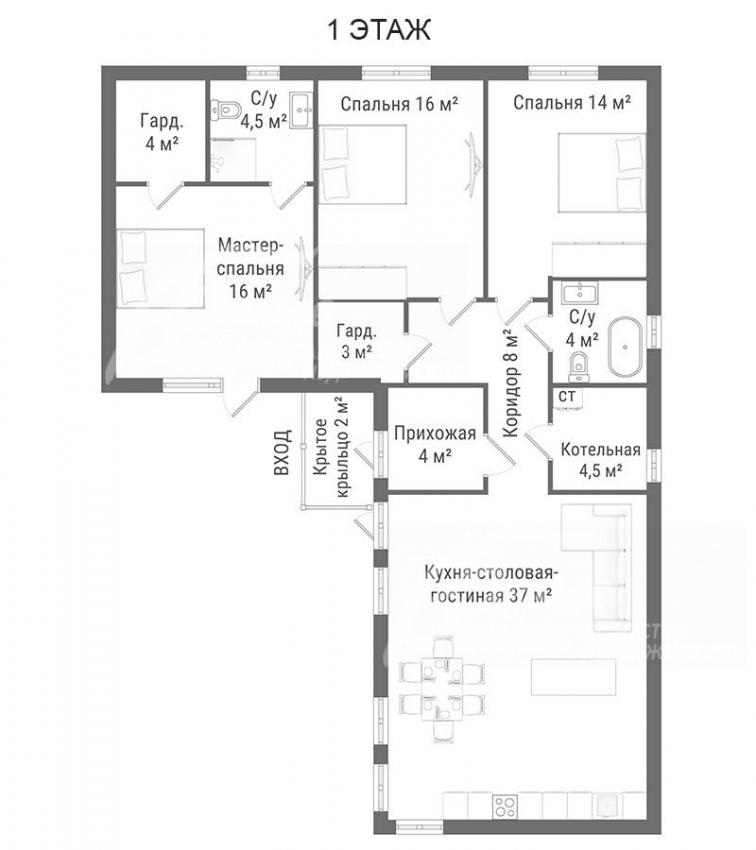
Общая площадь строений: 121 м2
Год постройки дома: 2024
Количество уровней: 1
Спален: 3. С/узлов: 2. Комнат всего: 4.
Опции: камин (биокамин); Подготовка под зарядку электрического автомобиля.
Материал стен: керамический блок (двойной кирпич) (утепление - экструдированный пенополистирол 10 см)
Облицовка стен: плитка "под камень", дерево, штукатурка
Кровля: плоская из металла (установлена пластиковая водосточная система "Docke Premium")
Окна: окна от пола, производитель - Melke. Окна двухкамерные, ламинированные снаружи в черный цвет, энергоэффективные (с напылением)
Стадия готовности: меблирован
1-ый этаж: крытое крыльцо 2 кв.м, прихожая 4 кв.м, гардеробная 3 кв.м, коридор 8 кв.м, кухня-столовая-гостиная 37 кв.м, мастер-спальня 16 кв.м с санузлом с душем 4,5 кв.м, гардеробной 4 кв.м и выходом на участок, спальня 16 кв.м, спальня 14 кв.м, санузел с ванной 4 кв.м, котельная 4,5 кв.м
Описание внутренней отделки: отделка выполнена под ключ. Интерьер оформлен с учётом актуальных тенденций дизайна в светлой цветовой гамме со светодиодной подсветкой и интеллектуальной электронной автоматикой, подстраивающейся под систему «умный дом». Стены оштукатурены и покрашены в светлые тона, с встроенным алюминиевым профилем черного цвета, использованы также эффектные 3D-панели, санузлы стильно отделаны керамогранитом. На полу – керамогранит. Потолки отделаны гипсокартоном. Установлены входная дверь со стеклопакетом, межкомнатные двери - скрытого монтажа, с чёрной фурнитурой. Гостиную украшает эффектный большой биокамин, отделанный крупноформатным керамогранитом, с порталом от пола до потолка и шириной 180 см. В доме – многоплановое освещение: точечные потолочные светильники, люстры, карнизное освещение, стеновые светильники и другие световые решения.
Инженерное обеспечение: все коммуникации разведены под ключ и функционируют. Отопление - через настенный газовый котёл Hubert (Япония) на 24 кВт. Горячее водоснабжение - через бойлер на 125 л. Установлены: фильтр жесткой очистки воды, 2 кондиционера (в спальне и гостиной), система видеоконтроля. Разведен проводной интернет.
Мебель, оборудование: Дом почти полностью укомплектован мебелью. В кухне-гостиной-столовой: кухонный гарнитур с фасадами двух цветов (белого и "под дерево"), со встроенной техникой Haier (духовой шкаф, электрическая варочная поверхность, СВЧ, холодильник, посудомойка), фартуком из крупноформатного керамогранита серого цвета, столешницей «под дерево», полубарный остров белого цвета с элементами из дерева (ДСП); раздвижной обеденный стол 140-180см со стульями; диван. Оборудованная шкафом, банкеткой и огромным зеркалом прихожая. В спальнях новые кровати, встроенные шкафы и системы хранения. В санузлах – современная сантехника, выключатели и розетки черного цвета от Schneider Electric
Дополнительная информация о доме: фундамент - монолитно-свайный ростверк, высота потолков – 3 м
Участок
Площадь участка, соток: 5
Тип участка: полевой, с ландшафтом
Благоустройство участка: участок облагорожен: высажен газон, дорожки выложены брусчаткой, установлены автоматические ворота, есть 2 парковочных места. По периметру участка проходит ливневая система
Статус земли: ижс
Дополнительная информация об участке: ровный участок прямоугольной формы с высококачественным грунтом расположен в середине коттеджного посёлка. Фасадный забор - в стилистике дома.
Коммуникации
Газ: есть (магистральный, Мосгаз)
Э/э: есть (15 кВт, Россети)
Водопровод: центральный
Канализация: централизованная (также есть септик)
Телефон: возможно подключение
Интернет: есть (оптоволокно)
Охрана: есть (охраняемый коттеджный посёлок)
Описание инфраструктуры
Инфраструктура поселка городского типа Внуково
Хочу посмотретьПоделитесь с друзьями:
Похожие предложения:
Дом, Президент к/п, 143 м2, 4 сот
Бунинская аллея, Ольховая - от 8 мин на автоДом, Президент к/п
Калужское ш., 8 км + 3 км
пл. участка: 4 сот
пл. дома: 143 м2
меблирован
Спален: 4. С/узлов: 1.
Дом, Бурцево КП (Бурцево), 120 м2, 5 сот
Филатов луг, Аэропорт Внуково - от 18 мин на автоДом, Бурцево КП
Киевское ш., 14 км + 1 км
пл. участка: 5 сот
пл. дома: 120 м2
меблирован
Спален: 3. С/узлов: 2.









