Продажа дачи, коттеджа, дома на Киевском, Калужском шоссе — цена, описание, фото, расположение на карте.

Дом, Бунин Парк КП

Снят с реализации

Дом 600 кв.м с бассейном и мебелью в КП Бунин Парк

Код: 387-206

Особенности объекта

Дом рассчитан как на две семьи, так и на одну. 4 полноценных этажа. Бассейн 9х3 м, спортзал  с бильярдной  и столом для настольного тенниса, домик для персонала. Ремонт новый, в доме не проживали. Рядом инфраструктура п.Воскресенское, КП Потапово и Южное Бутово

Расположение

Ссылка на карту
Бунин Парк КП (Столбово)
Калужское шоссе, от МКАД: 8 км, всего: 12 км
Тип застройки: формирующийся к/п
Метро: Бунинская аллея, Ольховая, Теплый стан; от 6 мин на авто
Коттеджный поселок «Бунин Парк»

Дом

Общая площадь строений: 600 м2
Год постройки дома: 2014
Количество уровней: 4
Спален: 8. С/узлов: 8. Комнат всего: 10.
Опции: бассейн; сауна; квартира для персонала; терраса; камин; машиномест крытых: 8.
Материал стен: щелевой кирпич+пенополистирол 150 мм
Облицовка стен: кирпич
Кровля: металлочерепица
Окна: стеклопакеты ПВХ
Стадия готовности: меблирован
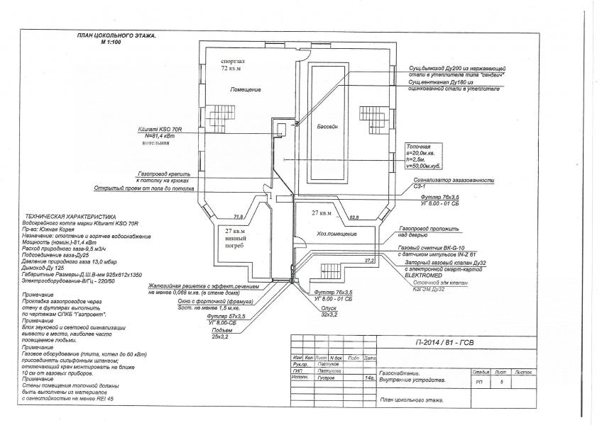
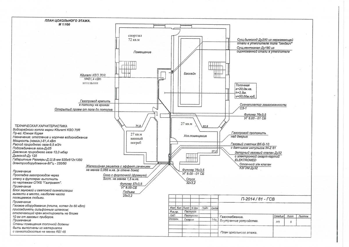
Цоколь: Котельная 20 кв.м, хозпомещение 27 кв.м, спортзал с бильярдной и столом для настольного тенниса 72 кв.м, помещение с бассейном 72 кв.м, лестница 27 кв.м, сауна 4 кв.м, санузел 4.5 кв.м, душевая, винный погреб 27 кв.м.
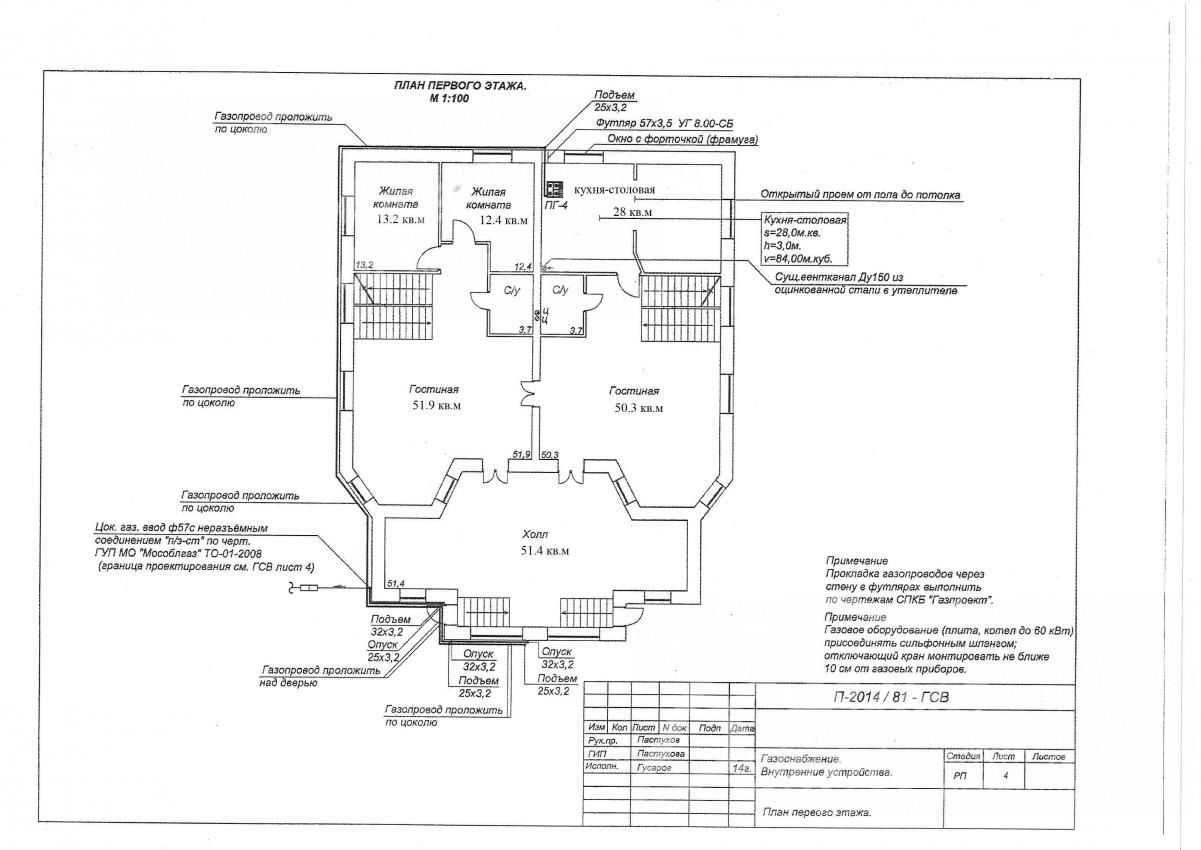
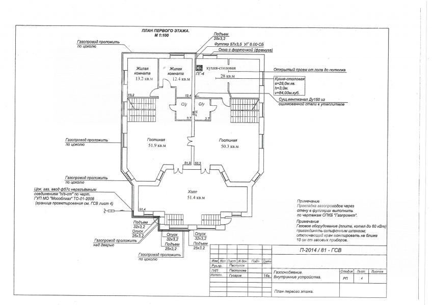
1-ый этаж: Холл 51 кв.м, тамбур 12 кв.м, 2 гостиные 52 кв.м и 50 кв.м, кухня-столовая с полным оборудованием 28 кв.м, 2 спальни 13 кв.м и 12.4 кв.м, 2 санузла по 3.7 кв.м, 2 лестницы по 13 кв.м
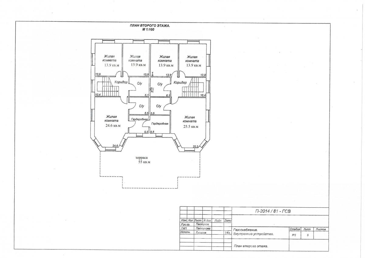
2-ой этаж: 4 спальни по 14 кв.м, 2 санузла по 6 кв.м, хозяйская спальня 24.6 кв.м со своим санузлом 5.5 кв.м и гардеробной 5.5 кв.м, спальня 25.5 кв.м со своим санузлом 5.5 кв.м и гардеробной 5.5 кв.м, 2 коридора по 5 кв.м и 2 лестницы по 10.4 кв.м, терраса 55 кв.м
3-ий этаж: С подсобными помещениями 220 кв.м
Описание внутренней отделки: Внутренние стены на 1 и 2 этажах оклеены обоями, в цоколе отделаны мраморной декоративной крошкой, в хозпомещениях окрашены. На полу в гостиной и спальнях художественный ламинированный паркет, на 2 этаже ламинат. Пол мансардного этажа отделан линолеумом. Пол в холле, санузлах, тамбуре теплый, отделан плиткой. Лестничный марш железобетонный, отделан деревом и покрыт ковровой дорожкой. Потолок гипсокартонный, армирован сеткой, оштукатурен и покрашен, в гостиной 1 этажа-зеркальный. Вся сантехника установлена импортная. Все коммуникации разведены под ключ. Двери шпонированные из красного дерева. В холле 1 этажа установлено барбекю с грилем и электрошашлычной.
Инженерное обеспечение: В доме установлены котел на 80 кВт марки Kiturami (пр-во Южная Корея), 1 дизельный и 1 твердотопливный котлы дополнительно, 2 бойлера. Для очистки воды установлены фильтры. Вентиляция естественная. Сигнализация "Гольфстрим" с видеонаблюдением и домофоном.
Дополнительные строения: На участке распложен гостевой дом с навесом на 8 авто и 2 въездными воротами. На 2 -м этаже 4 спальни по 30 кв.м и 2 санузла по 6 кв.м. Материал стен 1-го этажа - кирпич, 2-й этаж утеплен.
Дополнительная информация о доме: Фундамент ленточный на ж/б плите, перекрытия межэтажные железобетонные. Высота потолков 3 м.

Участок

Площадь участка, соток: 10
Тип участка: поле
Благоустройство участка: Сделан дренаж. Разбит газон.
Статус земли: земли населенных пунктов, ИЖС
Дополнительная информация об участке: Участок прямоугольной формы, расположен в середине поселка, огражден забором из металлопрофиля на бетонной основе с кирпичными столбами

Коммуникации

Газ: есть (магистральный)
Э/э: есть (15 кВт)
Водопровод: центральный
Канализация: централизованная
Охрана: есть (ЧОП)

Описание инфраструктуры

Рядом с поселком расположена остановка общественного транспорта, а у самого КПП остановка маршруток "нам по пути". Вблизи поселок Воскресенское, Потапово и мкр. Южное Бутово с полноценной развитой городской инфраструктурой: частные и муниципальные школы и детские сады расположены в 1 км от поселка. ТЦ Потапово, Арус-П, Бунинская аллея, Бутово Молл, МЕГА Теплый стан. Филиал № 4 ТГБ ДЗМ, Филиал № 3 ТГБ ДЗМ, Филиал Газпром Трансгаз Москва центр диагностики и реабилитации, Поликлиника № 121, филиал № 6, Детская городская поликлиника № 118, филиал № 2. Для прогулок парк Воскресенский, детский ландшафтный парк Южное Бутово.

Хочу посмотреть


Поделитесь с друзьями:

Собираетесь купить дом, дачу или коттедж на Калужском или Киевском направлении? Обязательно воспользуйтесь услугами компании «Белые Ветры», старейшего оператора загородной недвижимости на Юго-западе Подмосковья!
Рейтинг@Mail.ru