Дом, Цветочный к/п
Код: 368-437
Особенности объекта
Новый коттедж с функциональной планировкой и большой площадью остекления. Высокое качество строительства. Все центральные коммуникации. Обжитой охраняемый коттеджный поселок с развитой инфраструктурой.
Расположение
Ссылка на карту
Цветочный к/п
Калужское шоссе, от МКАД: 24 км, всего: 27 км
Тип застройки: обжитой к/п
Метро: Ольховая, Теплый стан, Прокшино; от 29 мин на авто
Коттеджный поселок «Цветочный»
Дом
Общая площадь строений: 252 м2
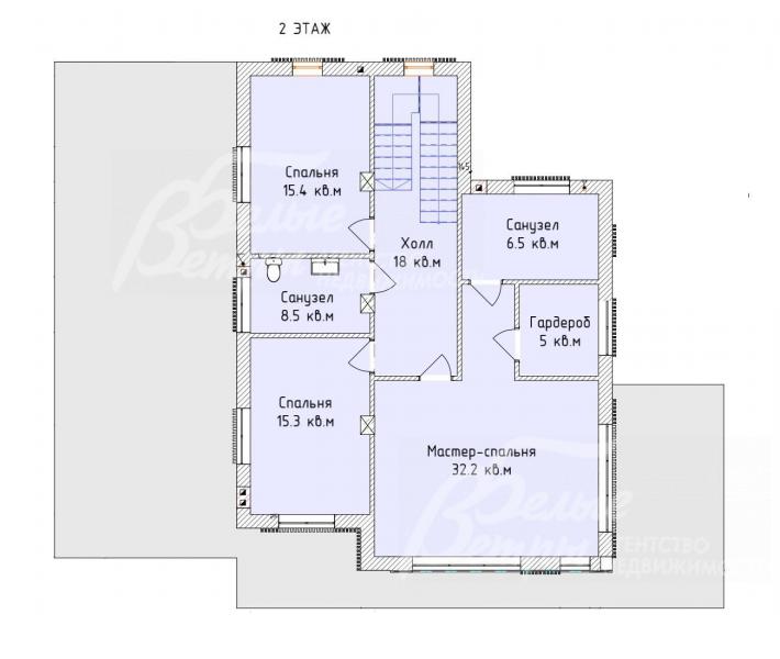
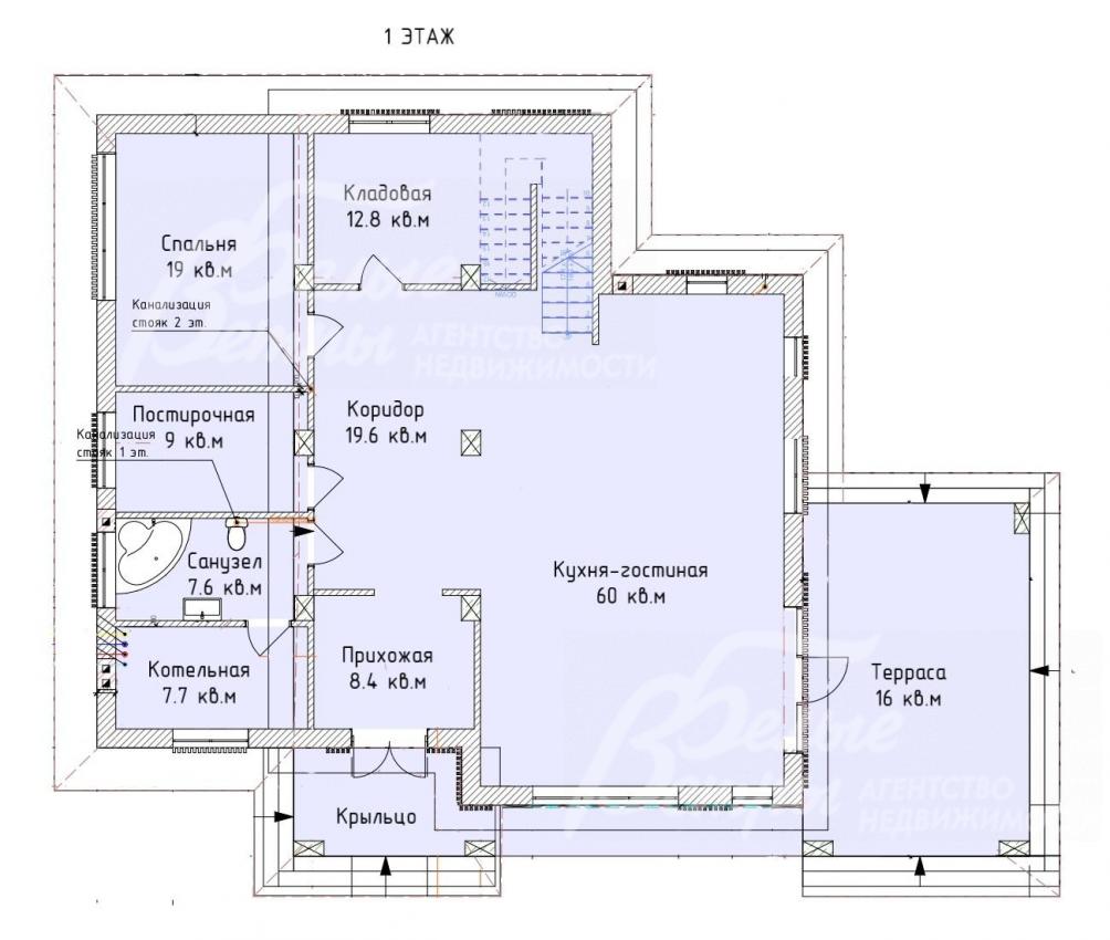
Количество уровней: 2
Спален: 4. С/узлов: 4. Комнат всего: 7.
Опции: терраса.
Материал стен: щелевой кирпич + утеплитель мин.вата 5 см. Толщина стены 45 см
Облицовка стен: облицовочная керамическая клинкерная плитка (пр-ва Польша)
Кровля: мягкая (Технониколь, металлическая подшивка свесов крыши, водосточная система Технониколь)
Окна: стеклопакеты ПВХ (2х-камерные панорамные с ламинированием, российское производство из профиля Проплекс (по австрийской технологии))
Стадия готовности: под отделку
1-ый этаж: крыльцо, холл, котельная, санузел, гардеробная, спальня, кладовая, кухня-столовая-гостиная, крытая терраса 32 кв.м.
2-ой этаж: холл 14 кв.м, мастер-спальня 16 кв.м со своими гардеробной 6,1 кв.м и санузлом 5,5 кв.м, мастер-спальня 24,3 кв.м со своими гардеробной 5,5 кв.м и санузлом 9,3 кв.м, мастер-спальня 15 кв.м со своим санузлом 5,6 кв.м (есть альтернативная планировка - с двумя одинаковыми по размеру детскими спальнями и с одним общим для них санузлом).
Описание внутренней отделки: монолитная лестница шириной 110 см. Все коммуникации заведены в дом.
Инженерное обеспечение: естественная вентиляция.
Дополнительная информация о доме: дом выполнен в современном архитектурном стиле. Фундамент свайно-ростверковый, заливные сваи из асбоцементных труб D=400мм глубиной 2 м. Железобетонные плиты перекрытия. Высота потолков: 1-й этаж - 3,46 м, 2-й этаж 3,16 м.
Участок
Площадь участка, соток: 11
Тип участка: земли населенных пунктов для ИЖС
Благоустройство участка: участок ровный, с рулонным газоном. Организован дренаж по периметру дома и гаража, а также по периметру участка, с выводом в ливневую систему.
Дополнительная информация об участке: участок правильной формы находится в центре поселка и огорожен дизайнерским забором высотой 2,2 м, на бетонной ленте со столбами с облицовкой из кирпича светлых тонов, из двойного евро-штакетника, в едином стиле с домом. Ворота откатные с электроприводом фирмы AN.Motors.
Коммуникации
Газ: есть (магистральный)
Э/э: есть
Водопровод: центральный
Канализация: централизованная
Интернет: есть (оптоволокно)
Охрана: есть
Описание инфраструктуры
в поселке организованы прогулочная зона к роднику, детская и спортивная площадки. В административном здании есть продуктовый магазин, офис эксплуатирующей компании. Есть 2 выхода в лес. Частный детский сад. Крытый теннисный корт. Рядом спортивный парк "Красная Пахра"
Хочу посмотретьПоделитесь с друзьями:
Похожие предложения:
Дом, Александровы пруды КП, 260 м2, 12 сот
Варшавское шоссе, от МКАД: 24+6 км
Подольск, Ольховая - от 26 мин на автоДом, Александровы пруды КП
Калужское ш., 25 км + 13 км
пл. участка: 12 сот
пл. дома: 260 м2
меблирован
Спален: 4. С/узлов: 2.
Дом, Ильичевка к/п (Ильичевка), 253 м2, 12.8 сот
Киевское шоссе, от МКАД: 21+10 км
Крёкшино, Ольховая - от 24 мин на автоДом, Ильичевка к/п
Калужское ш., 17 км + 5 км
пл. участка: 12.8 сот
пл. дома: 253 м2
под отделку
Спален: 5. С/узлов: 3.
Дом, Ильичевка к/п (Ильичевка), 252 м2, 12.8 сот
Киевское шоссе, от МКАД: 21+10 км
Крёкшино, Ольховая - от 24 мин на автоДом, Ильичевка к/п
Калужское ш., 17 км + 5 км
пл. участка: 12.8 сот
пл. дома: 252 м2
под отделку
Спален: 5. С/узлов: 3.
Дом, Гайд Парк к/п (Софьино), 300 м2, 10 сот
Варшавское шоссе, от МКАД: 24+10 км
Ольховая, Теплый стан - от 26 мин на автоДом, Гайд Парк к/п
Калужское ш., 25 км + 3 км
пл. участка: 10 сот
пл. дома: 300 м2
под отделку
Спален: 4. С/узлов: 3.
Дом, Гайд Парк к/п (Софьино), 300 м2, 12 сот
Варшавское шоссе, от МКАД: 24+10 км
Ольховая, Теплый стан - от 26 мин на автоДом, Гайд Парк к/п
Калужское ш., 25 км + 3 км
пл. участка: 12 сот
пл. дома: 300 м2
под отделку
Спален: 4. С/узлов: 3.
|
|



















