Продажа дачи, коттеджа, дома на Киевском, Калужском шоссе — цена, описание, фото, расположение на карте.

Дом, Десна СНТ

Снят с реализации

Дом 600 кв.м под отделку в СНТ "Десна"

Код: 361-104

Особенности объекта

Новый, кирпичный дом с большим бассейном качественно выполненный из дорогих материалов. Много комнат, высокие потолки, двухсветная гостиная, широкие лестницы, панорамное остекление, эксплуатируемая кровля. На двухуровневом участке просторный гараж с квартирой для персонала. Обжитой охраняемый коттеджный поселок. Лесной массив.

Расположение

Ссылка на карту
Десна СНТ (Городище)
Калужское шоссе, от МКАД: 8 км, всего: 11 км
Тип застройки: обжитой к/п
Метро: Ольховая, Прокшино, Теплый стан; от 9 мин на авто

Дом

Общая площадь строений: 875 м2 (Дом 783 кв.м + гараж 92.7 кв.м)
Год постройки дома: 2010
Количество уровней: 3
Спален: 6. С/узлов: 5. Комнат всего: 9.
Опции: бассейн; сауна; терраса; камин; холодный подвал; машиномест крытых: 2, в т.ч. в теплом гараже: 2; Бассейн 11.4 м Х 4 м, глубина 135-200 см..
Материал стен: кирпич+утеплитель
Облицовка стен: клинкерный кирпич
Кровля: другое (эксплуатируемая)
Окна: стеклопакеты деревянные
Стадия готовности: под отделку
Цоколь: помещения под инженерное оборудование дома 120 кв.м
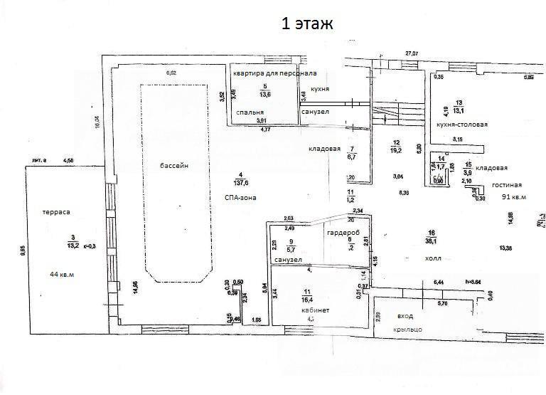
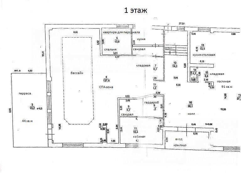
1-ый этаж: холл 38 кв.м, гардеробная 6 кв.м, с/узел 6 кв.м, гостиная 91 кв.м с камином, кухня-столовая 13 кв.м, кабинет 16 кв.м, гостевой с/узел; спа-зона с бассейном 137 кв.м с выходом на террасу 44 кв.м, квартира для персонала: спальня 13.6 кв.м, кухня, с/узел.
2-ой этаж: холл-галерея со вторым светом 84 кв.м, коридор 18 кв.м, спальня 24 кв.м с с/узлом 6 кв.м, кладовая 6 кв.м, спальня 28 кв.м с с/узлом 6 кв.м и гардеробной 6 кв.м, главная спальня 48 кв.м, спальня 20 кв.м с с/узлом 5 кв.м, спальня 15 кв.м с с/узлом 5 кв.м, с/узел 6 кв.м.
3-ий этаж: эксплуатируемая кровля, есть возможность надстройки еще одного этажа
Описание внутренней отделки: стены и потолок под черновую отделку, сделана черновая стяжка пола, лестничный марш бетонный
Инженерное обеспечение: установлены два котла Buderus G334 и бойлер Buderus, отопление временное, электричество до щитка, установлен счетчик; водопровод и канализация - до стояка; предусмотрены шахты для организации принудительной вентиляции
Дополнительные строения: Гараж на 2 автомобиля 93 кв.м с котельной и кладовой
Дополнительная информация о доме: фундамент - ленточный монолит, ж/б перекрытия, высота потолков ок. 3.6 м

Участок

Площадь участка, соток: 23
Тип участка: без деревьев
Благоустройство участка: двухуровневый участок, сделаны бетонные дорожки, организованы клумбы, дренаж участка
Статус земли: земли поселений для садоводства
Дополнительная информация об участке: участок прямоугольной формы, раположен в центре поселка; выполнено основание для ограждения - монолитные столбы с монолитным фундаментом, выведено эл-во под освещение

Коммуникации

Газ: есть (магистральный)
Э/э: есть (30 кВт)
Водопровод: центральный (+ скважина 80 м)
Канализация: централизованная (на поселок)
Телефон: возможно подключение (оптико-волокно)
Интернет: возможно подключение (оптико-волокно)
Охрана: есть (КПП)

Описание инфраструктуры

Полная городская инфраструктура поселка Воскресенское.

Хочу посмотреть


Поделитесь с друзьями:

Собираетесь купить дом, дачу или коттедж на Калужском или Киевском направлении? Обязательно воспользуйтесь услугами компании «Белые Ветры», старейшего оператора загородной недвижимости на Юго-западе Подмосковья!
Рейтинг@Mail.ru