Продажа дачи, коттеджа, дома на Киевском, Калужском шоссе — цена, описание, фото, расположение на карте.

Дом, Дубки СНТ

Снят с реализации

Код: 559-303

Особенности объекта

Двухэтажный дом с отделкой расположен рядом с небольшим прудом, в окружении леса, в садовом товариществе всего в 5 км от Москвы

Расположение

Ссылка на карту
Дубки СНТ (Газопровод)
Калужское шоссе, от МКАД: 3 км, всего: 5 км
Тип застройки: обжитой к/п
Метро: Ольховая, Теплый стан, Бульвар Дмитрия Донского; от 7 мин на авто

Дом

Общая площадь строений: 200 м2
Год постройки дома: 2010
Количество уровней: 2
Спален: 4. С/узлов: 2. Комнат всего: 6.
Опции: терраса; камин; машиномест крытых: 1, в т.ч. в теплом гараже: 1.
Материал стен: керамзитобетонный блок + утеплитель пеноплекс
Облицовка стен: штукатурка
Кровля: мягкая
Окна: стеклопакеты ПВХ
Стадия готовности: под ключ
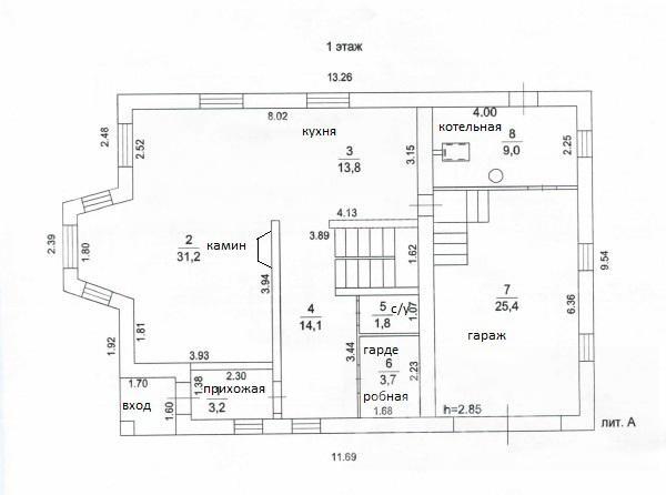
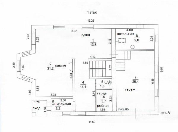
1-ый этаж: Гостиная 31 кв.м, кухня 13.8 кв.м, котельная 9 кв.м, гараж 25.4 кв.м, гардеробная 4 кв.м, с/узел, холл 14 кв.м, прихожая, вход.
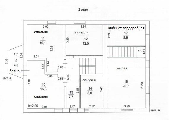
2-ой этаж: Спальня 16 кв.м, спальня 12.5 кв.м, кабинет-гардеробная 9 кв.м, жилая 20.7 кв.м, с/узел 8 кв.м, холл 7.7 кв.м, спальня 16 кв.м, балкон 5 кв.м.
3-ий этаж: Комната над гаражом 22 кв.м.
Описание внутренней отделки: Стены оклеены обоями, окрашены и оштукатурены. На полу 1 этажа плитка, на 2 этаже -ламинат. Лестничный марш из дуба. Потолки оштукатурены. Все коммуникации разведены под ключ. Вся сантехника марки Jacob Delafon.
Инженерное обеспечение: В доме установлен котел BAXI на 40 кВт.
Дополнительная информация о доме: Фундамент, перекрытия монолитные.

Участок

Площадь участка, соток: 6
Тип участка: с газоном и плодовыми деревьями
Благоустройство участка: Участок с газоном и плодовыми деревьями. Сделан дренаж.
Статус земли: земля для садоводства
Дополнительная информация об участке: Участок расположен в центре поселка. По периметру видеонаблюдение.

Коммуникации

Газ: есть (магистральный)
Э/э: есть (10 кВт)
Водопровод: индивид. скважина (120 м)
Канализация: автономная (Топаз)
Телефон: есть (МГТС)
Интернет: есть

Описание инфраструктуры

Поселок граничит с Бутовским обширным лесопарком. В пешей доступности полноценная городская инфраструктура поселка Газопровод и Коммунарка, в 10 мин на автомобиле - торговый комплекс Мега и ФУД Сити.

Хочу посмотреть


Поделитесь с друзьями:

Собираетесь купить дом, дачу или коттедж на Калужском или Киевском направлении? Обязательно воспользуйтесь услугами компании «Белые Ветры», старейшего оператора загородной недвижимости на Юго-западе Подмосковья!
Рейтинг@Mail.ru