Продажа дачи, коттеджа, дома на Киевском, Калужском шоссе — цена, описание, фото, расположение на карте.

Дом, Дубки СНТ

99 000 000
1 298 379 $
1 110 646 €
На кухне - стильный гарнитур из МДФ, остров с полубарным столом, двустворчатый холодильник с ледогенератором Samsung и второй холодильник Wiessgauff

Код: 559-903

Особенности объекта

Меблированный кирпичный дом с привлекательной архитектурой в традициях альпийского шале и большой площадью остекления. Дом наполнен светом, в нём — просторные помещения, пять спален, одна из них – на первом этаже, жилые цокольный и мансардный этажи, мастер-спальня впечатляет высокими потолками. Интерьер в стиле эклектики с элементами ар-деко и лофта дополнен дизайнерскими предметами декора и мебели, декоративными фресками, 3D-панелями из ясеня, стильной удобной лестницей. Дом стоит на благоустроенном участке с высаженными туями, елями, цветочными композициями, тёплой беседкой барбекю. Участок находится в охраняемом коттеджном посёлке рядом с городской инфраструктурой и лесопарковой зоной.

Расположение

Ссылка на карту
Дубки СНТ (Газопровод)
Калужское шоссе, от МКАД: 3 км, всего: 5 км
Тип застройки: обжитой к/п
Метро: Ольховая, Теплый стан, Бульвар Дмитрия Донского; от 7 мин на авто

Дом

Общая площадь строений: 570 м2
Год постройки дома: 2022 (коробка дома выполнена в 2008 году)
Количество уровней: 4
Спален: 5. С/узлов: 3. Комнат всего: 5.
Опции: сауна (не отделана); терраса; машиномест крытых: 2.
Материал стен: кирпич (монолитный каркас, заполнение стен - щелевой кирпич, толщина стен 60 см)
Облицовка стен: комбинированная (первый этаж отделан искусственным камнем, второй этаж - декоративной штукатуркой "короед")
Кровля: мягкая (установлена пластиковая водосточная система)
Окна: стеклопакеты деревянные (в спальня - стеклопакеты ПВХ)
Стадия готовности: меблирован
Цоколь: котельная 16 кв.м, зона сауны с комнатой отдыха, помещение свободного назначения 97 кв.м
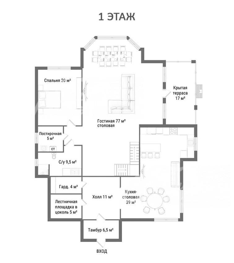
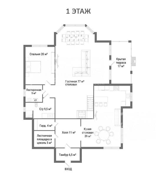
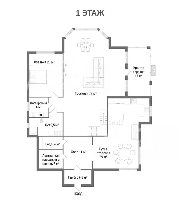
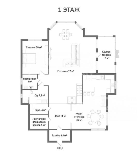
1-ый этаж: тамбур 6,5 кв.м, холл 11 кв.м, гардеробная 4 кв.м, кухня-столовая 39 кв.м, гостиная 77 кв.м с выходом на крытую террасу 17 кв.м, санузел 9,5 кв.м, спальня 20 кв.м, постирочная 5 кв.м
2-ой этаж: холл 29 кв.м, мастер-спальня 27,5 кв.м с санузлом 4,5 кв.м (с душевой) и кладовой, спальня 25 кв.м, спальня 25,5 кв.м, спальня 22 кв.м, гардеробная 14 кв.м, санузел 8 кв.м (с душевой и отдельностоящей ванной)
3-ий этаж: мансардный этаж: площадь свободного назначения 78 кв.м, кабинет 12кв.м, чемоданная 12 кв.м
Описание внутренней отделки: качественная современная отделка дома выполнена в стиле эклектики с элементами ар-деко и лофта. Стены – обои, в отдельных зонах — частично на кухне, на лестничном проёме и в спальнях — немецкие обои с имитацией штукатурки, в детских спальнях стены оформлены под кирпич, в мастер-спальне и санузле на первом этаже стены украшены фресками Affresco (в санузле - со специальной влагозащитной эмалью). Стена в гостиной за телевизором - из гипсовых панелей. Холл и гостиная дополнены декоративными рейками из ясеня, перекликающимися с дизайном лестницы, а также 3D-панелями ORAC DECOR с рейками из ясеня. Создан декоративный портал, имитирующий камин. На полу кухни уложен керамогранит Laparet Stubay Onyx Crema имитирующий оникс, в гостиной и спальнях — ламинат, во всех санузлах — керамогранит Atlas Concorde. Потолки выполнены из гипсокартона, в отдельных зонах – многоуровневые конструкции. Тёплые полы смонтированы везде, где есть плиточное покрытие. Установлены внутрипольные конвекторы Askon в гостиной, на кухне и в мастер-спальне, а также вертикальные радиаторы чёрного матового цвета Irsap (Италия). Электромонтаж выполнен с особым вниманием к удобству: количество розеток превышает стандартные требования, розетки и выключатели – чёрные, матовые, плоские. Интерьер дополняют межкомнатные двери из массива лиственницы, вандалоустойчивая двустворчатая дверь в кухню со стеклом при входе на кухню, также есть двери скрытого монтажа Инвизибл. Мощная входная дверь с терморазрывом. На второй этаж ведёт широкая и удобная монолитная лестница, отделанная массивом ясеня
Инженерное обеспечение: система отопления представлена итальянским газовым котлом Baxi мощностью 63 кВт, горячее водоснабжение обеспечивается бойлером Kospel объёмом 200 л. Для воды предусмотрена многоступенчатая система очистки BWT. На кухне установлена вытяжка KUPPERSBERG, в санузлах – принудительная вентиляция. В гостиной и на кухне смонтированы два кондиционера Haier. Есть мастер-выключатель, много проходных выключателей света. Резервный генератор.
Мебель, оборудование: Кухня-столовая зонирована на 3 части: а) столовая с обеденным столом из сатинированного стекла "под мрамор", велюровые стульями - у панорамного окна. для семейных обедов; б) зона отдыха с диваном и телевизор LG 65 дюймов; в) кухонная зона с гарнитуром с комбинированными фасадами ("под акацию", матовые черные, золотистые) со всей необходимой встроенной техникой (газовая варочная панель на 5 конфорок, духовой шкаф AEG, микроволновая печь, двустворчатый холодильник с ледогенератором Samsung, второй холодильник встроенный Wiessgauff, посудомоечная машина Electrolux, вытяжка KUPPERSBERG). Также есть кухонный остров с полубарным столом и стульями, фартук из широкоформатного керамогранита "под черный сланец". Также в кухне комод и другая мебель в стиле ар-деко, выполнено эффектное освещение. В гостиной – обеденная группа на 10-12 персон: элегантный стол с керамической столешницей, велюровые стулья, телевизор LG 85 дюймов с консолью под ТВ в стиле ар-деко, сделанной на заказ. В центре – огромный модульный диван-трансформер с обивкой из ткани букле. Интерьер гостиной дополнен дизайнерским стеллажом (Гарда Декор) в стиле ар-деко с гальваническим покрытием золотого цвета и полками из закаленного стекла, круглым зеркалом с консолью, комодами тёмного цвета, люстрой из латуни «Бусы Коко Шанель». Дополнительно выполнено трековое освещение. В постирочной – стиральная и сушильная машины AEG, гладильные принадлежности, модульные шкафы для хранения. В гардеробной на первом этаже – система хранения (ИКЕА). Все спальни полностью укомплектованы дорогостоящей мебелью: кроватями, прикроватными тумбами, комодами, телевизорами LG, шкафами, рабочими зонами. На мансардном этаже – модульный диван, обшитый антивандальным покрытием, и телевизор SONY. Шторы сшиты на заказ. В санузлах – водяные полотенцесушители Grocenberg, унитазы NOVA, гигиенический душ (в каждом санузле), оборудованы душевые, на первом этаже - смесители Boheme, на втором этаже - ванна и чёрная матовая фурнитура GRONENBERG и TECE
Дополнительные строения: навес для двух автомобилей, беседка барбекю с летним водопроводом, мангалом, двумя газовыми обогревателями, закрытая мягким стеклом
Дополнительная информация о доме: фундамент – монолитный, межэтажные перекрытия – железобетонные, высота потолков на 1-м этаже – 3 м (в зоне кухни – 3-4,3 м), 2ой этаж - 2,8 м, в Главной спальне от 3,35 до 4.7 м, на мансардном этаже – до 4,87 м, на цокольном этаже – 2,4 м

Участок

Площадь участка, соток: 12.1
Тип участка: с ландшафтом
Благоустройство участка: участок благоустроен: высажен газон с автополивом, на территории растут туи, ели, ирисы, вереск, пионы, гортензии, вымощены дорожки, площадка перед навесом выложена тротуарной плиткой, выполнена дренажная система
Статус земли: земли населенных пунктов, ИЖС
Дополнительная информация об участке: участок находится в центре коттеджного посёлка, огорожен забором NORDO с автоматическими воротами

Коммуникации

Газ: есть (магистральный, Мосгаз)
Э/э: есть (15 кВт, Мосэнерго)
Водопровод: индивид. скважина (120 м)
Канализация: автономная (септик Топаз на 12 человек)
Телефон: возможно подключение
Интернет: есть (оптоволокно)
Охрана: есть

Описание инфраструктуры

Поселок граничит с Бутовским обширным лесопарком. В пешей доступности полноценная городская инфраструктура поселка Газопровод и Коммунарка, в 10 мин на автомобиле - торговый комплекс Мега и ФУД Сити.

Хочу посмотреть


Поделитесь с друзьями:

Собираетесь купить дом, дачу или коттедж на Калужском или Киевском направлении? Обязательно воспользуйтесь услугами компании «Белые Ветры», старейшего оператора загородной недвижимости на Юго-западе Подмосковья!
Рейтинг@Mail.ru