Дом, Дубровицы
Код: 557-401
Особенности объекта
Очень красивый и стильный, без лишних деталей, качественно возведенный дом из клеёного бруса из ангарской сосны 24*27 см, без износа. С большим вкусом выполнена отделка с использованием элитных высококачественных материалов, дорогая мебель, инженерное оборудование высочайшего качества (управляемая электроникой система вентилирования, система охраны со множеством датчиков движения, умная система пожаротушения и прочее). Уникальный профессиональный ландшафт участка (вековые дубы и березы, сотни декоративных коллекционных растений и кустарников) - с автополивом, гидрантами и освещением. Капитальный теплый гараж с квартирой для персонала. Красивое место (рядом лес и река). Богатая инфраструктура Дубровиц и Подольска. Видеоролик
Расположение
Ссылка на карту
Дубровицы
Варшавское шоссе, от МКАД: 22 км, всего: 25 км
Калужское шоссе, от МКАД: 15 км, всего: 36 км
Тип застройки: обжитой к/п
Метро: Подольск, Теплый стан, Ольховая; от 22 мин на авто
Дом
Общая площадь строений: 571 м2 (в т.ч.: жилой дом 487 кв.м, гараж с квартирой персонала 84 кв.м)
Количество уровней: 3
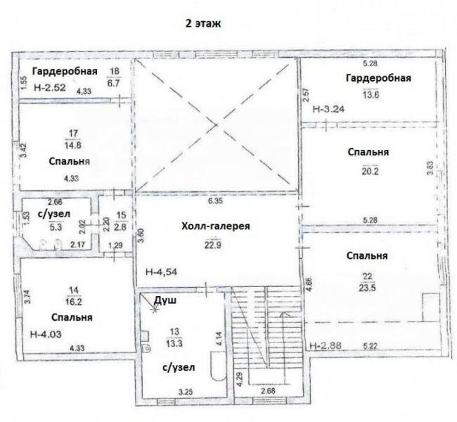
Спален: 6. С/узлов: 5. Комнат всего: 8.
Опции: сауна; купель; квартира для персонала; терраса; машиномест крытых: 2, в т.ч. в теплом гараже: 2; парная; хамам.
Материал стен: клееный брус из ангарской сосны (сечением 24х27см)
Кровля: натуральная черепица (керамическая BRAAS)
Окна: стеклопакеты ПВХ (ламинированные под дерево, тонированные с обеих сторон)
Стадия готовности: меблирован
Цоколь: холл 20 кв.м, домашний кинозал 28 кв.м с оборудованием 3D; SPA-зона: русская парная (печь обложена банным камнем), 2 душевые кабины с паровой баней, японская купель - "кедровая бочка", массажный кабинет; гардеробная-кладовая 13 кв.м, помещение свободного назначения 22 кв.м, постирочная-гладильная 13 кв.м, с/узел, аккумуляторная, котельная 17 кв.м с отдельным выходом на участок
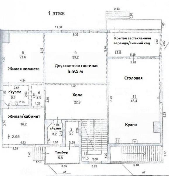
1-ый этаж: Тамбур 6 кв.м, холл 23 кв.м, с/узел, гостиная со вторым светом 33 кв.м, кухня-столовая 45 кв.м с выходом в зимний сад 13.5 кв.м с выходом на участок, кабинет 16 кв.м, с/узел 5 кв.м, спальня 21.6 кв.м
2-ой этаж: холл-галерея 23 кв.м, спальная хозяев 20 кв.м с гардеробной 13.6 кв.м, спальня 23.5 кв.м, с/узел 13 кв.м с ванной и душевой кабиной, детская спальня 15 кв.м с гардеробной 7 кв.м, с/узел 5 кв.м, спальня 16 кв.м
Описание внутренней отделки: Выполнена качественная отделка: пол в цоколе и с/узлах отделан итальянской плиткой с водяным подогревом; в холле, спальнях и гардеробных - канадская дубовая массивная доска. Стены на 1 и 2 этажах - тонированный окрашенный брус, в спальнях одна из стен оклеена коллекционными английскими обоями. Подвесные потолки оштукатурены и окрашены. Дубовая лестница ручной работы (фирма "Елисей" Фрязино). Двери с порталами и наличниками из массива сосны (Италия), подоконники деревянные (брус).
Инженерное обеспечение: немецкий газовый 2-хконтурный котел "Wolf" с отдельным стабилизатором, бойлер "Reflex" на 300л; многоступенчатая система очистки воды. В цоколе принудительная приточно-вытяжная вентиляция с рекуперацией. Противопожарная сигнализация. Охранная сигнализация с датчиками движения по дому "Цезарь Сателлит". В постирочной - блок стабилизаторов на весь дом. Английская электрика, испанские электрические выключатели (фарфор, латунь).
Мебель, оборудование: Дом полностью оборудован и обставлен: кованая и из натурального дерева мебель - в основном итальянская. В столовой - отреставрированный итальянский столовый гарнитур из ценной породы дерева: стол и 8 стульев. В цоколе французский столовый гарнитур. Итальянская кухня с островом, оборудована техникой "Мiele", 2 холодильника "Liebherr", морозильная камера в цоколе. Коллекционные шторы и многое др. Элитная сантехника (Германия, США) Kohler Artist Edition коллекция English Trellis с цветочным орнаментом в традициях английского набивного ситца, Villeroy&Boch, 2 душевые кабины Hansa: в сауне и на 2 этаже (кабина HansaColourshower со световыми эффектами из полного спектра радуги).
Дополнительные строения: - Двухэтажный гараж на 2 авто - отапливаемый, с раковиной (горячее/холодное водоснабжение) и стоком в ливневую канализацию. Изнутри стены и пол выложены итальянской плиткой. Второй этаж - квартира для персонала (холл, кухня, рабочая зона, с/у, кладовая комната).
- Беседка-барбекю с кованым каркасом, кирпичным островом со столешницей из искусственного мрамора и раковиной (подведена горячая и холодная вода).
Дополнительная информация о доме: Дом представлен в стиле "Прованс". Фундамент дома блочный, перекрытия деревянные, между цоколем и 1м этажом - монолитные. Высота потолков в цоколе и 1м этаже - 2.80 м, второй свет в гостиной - 7.60 м, 2ой этаж - 4.80 м
Участок
Площадь участка, соток: 20
Тип участка: парковый участок с деревьями и ландшафтом (5 столетних дубов, 8 вековых берез и др.)
Благоустройство участка: Участок с профессиональным дизайнерским ландшафтом. На участке около 2 000 видов разнообразных декоративных растений (включая редкие): туи, ели, розы, свыше 300 пионов, 5 дубов, 8 берез, около 50 сосен и прочее. По всему участку дорожки, освещение, розетки, автополив, гидранты, сделан дренаж.
Статус земли: земли населенных пунктов для индивидуального жилищного строительства
Дополнительная информация об участке: ровный участок правильной прямоугольной формы в центре поселка, кованое ограждение на бетонном основании, облицованном декоративным кирпичем
Коммуникации
Газ: есть (магистральный)
Э/э: есть (35 кВт)
Водопровод: центральный
Канализация: централизованная
Телефон: возможно подключение
Интернет: есть (оптиковолокно - провайдер "МТК"; спутниковое ТВ)
Охрана: есть (ворота на пульте)
Описание инфраструктуры
Инфраструктура п.Дубровицы и г.Подольска с Ледовым дворцом, хоккейным и футбольным клубом "Витязь", больницами, поликлиниками, магазинами. В 3 км (3 мин. на машине и 10 минут пешком) - в Дубровицах - детский садик (в 2014 году оборудован бассейном) и школа (именитая, отреставрированная, славится сильным преподавательским составом). Рядом в 700 метрах - лесной массив с популярной лыжной трассой и стартовой площадкой, в 2014 году здесь открывается лыжная база. В Подольске (5 мин. автомобилем) фитнес-центр "Дон-спорт", рынок "Остров сокровищ", различные Торговые Центры. Сейчас в Дубровицах строится ДК с органным залом, где будут располагаться детская школа искусств, различные кружки, боулинг. В 1.5 км находится Голицынская усадьба, где проходит музыкальный фестиваль "Славянское подворье", проводятся концерты классической музыки.
Элементы положит. окружения
Рядом - в 700 метрах - лесной массив, с популярной лыжной трассой и стартовой площадкой, река Пахра протекает в 250 метрах.
Хочу посмотретьПоделитесь с друзьями:
Похожие предложения:
Дом, Белгатой ДСК (Былово), 665 м2, 20 сот
Ольховая, Прокшино - от 24 мин на автоДом, Белгатой ДСК
Калужское ш., 24 км + 2 км
пл. участка: 20 сот
пл. дома: 665 м2
меблирован
Спален: 7. С/узлов: 7.

Дом, Фрунзевец к/п (Апрелевка), 520 м2, 23.7 сот
Апрелевка, Саларьево - от 9 мин на автоДом, Фрунзевец к/п
Киевское ш., 28 км + 1 км
пл. участка: 23.7 сот
пл. дома: 520 м2
меблирован
Спален: 5. С/узлов: 2.










