Продажа дачи, коттеджа, дома на Киевском, Калужском шоссе — цена, описание, фото, расположение на карте.

Дом, Дубровка ЖК

Снят с реализации

Код: 108-139

Особенности объекта

Оригинальный проект в стиле хай-тек с панорамным остеклением, с большим бассейном и СПА-зоной. Высокие потолки и дверные проемы, дорогие материалы, современная дорогая инженерия, центральная вентиляция. На большом участке открытый теннисный корт, квартира для персонала, гараж на два м/м, беседка с барбекю. Расположен в элитном обжитом коттеджном поселке с богатой инфраструктурой. Познакомтесь с домом ближе с помощью видеоролика.

Расположение

Ссылка на карту
Дубровка ЖК (Сосенки)
Калужское шоссе, от МКАД: 5 км, всего: 6 км
Тип застройки: обжитой к/п
Метро: Ольховая, Теплый стан, Прокшино; от 15 мин пешком
Жилой комплекс «Дубровка»

Дом

Общая площадь строений: 870 м2 (749 кв.м дом + 40 кв.м кв-ра для персонала+ 80 кв.м 2-й гараж с мастерской)
Год постройки дома: 2007
Количество уровней: 2
Спален: 5. С/узлов: 5. Комнат всего: 9.
Опции: бассейн; сауна; квартира для персонала; терраса; камин; машиномест крытых: 5, в т.ч. в теплом гараже: 3.
Материал стен: кирпич
Облицовка стен: оштукатурены, цоколь отделан диким камнем
Кровля: натуральная черепица (BRAAS)
Окна: стеклопакеты алюминиевые (з-х камерные, алюминиевый профиль, внешняя поверхность Ка-стекло (энергосберегающее), остекление от пола во всем доме)
Стадия готовности: под ключ (частично меблирован)
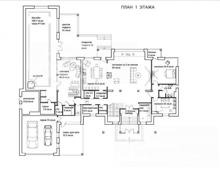
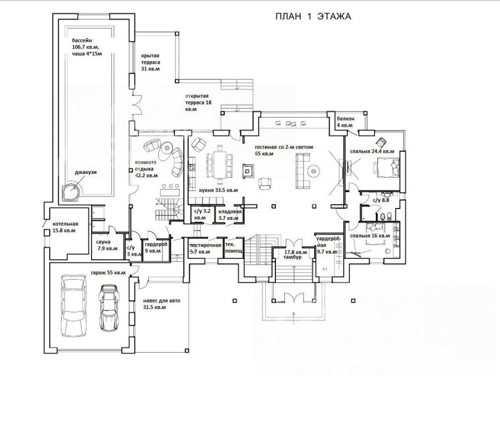
1-ый этаж: прихожая 18 кв.м, гардеробная холл 36 кв.м, двусветная гостиная 65 кв.м с оконным проемом 6х6 кв.м, с камином и элементами декора из оникса, кухня-столовая 33.5 кв.м, кладовые, санузел, прачечная, спальня 24 кв.м с балконом 4 кв.м, с/у 9 кв.м, спальня 15 кв.м. Помещение бассейна 107 кв.м (чаша 15*5, переливной), комната отдыха 42 кв.м, сауна 8 кв.м, с/у, душ, раздевалка, терраса крытая 31 кв.м, патио 18 кв.м, бойлерная 15 кв.м, гараж 33 кв.
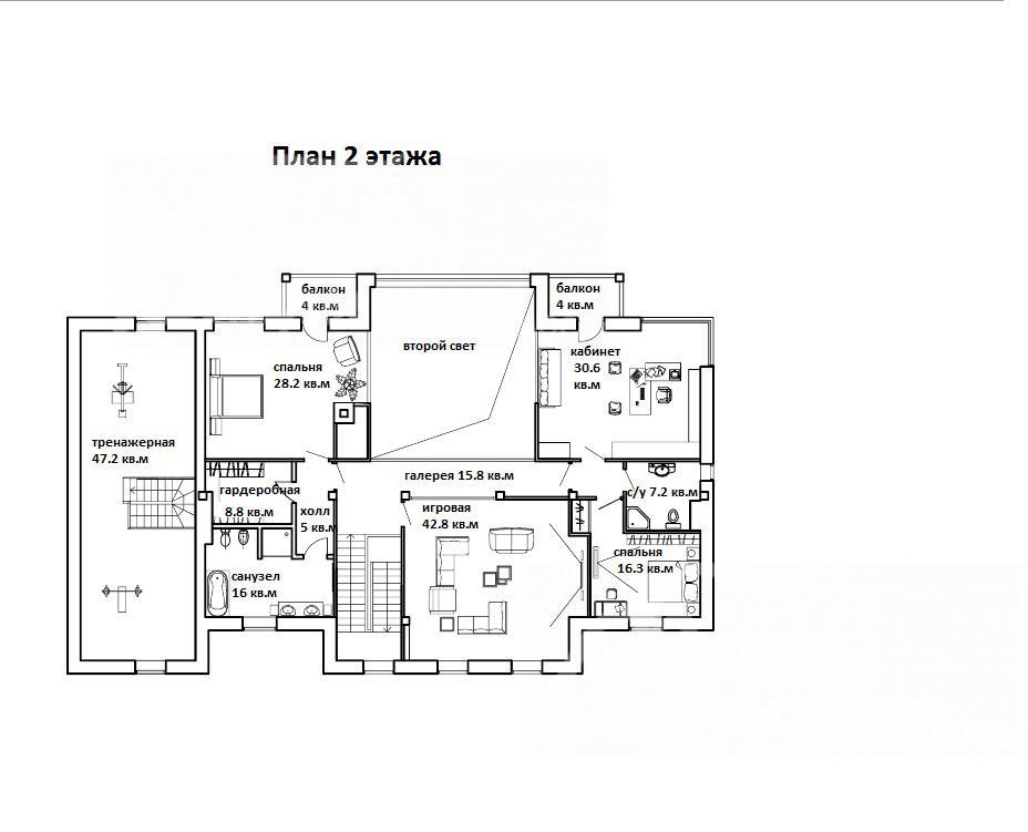
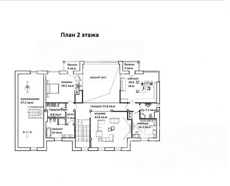
2-ой этаж: общая комната 43 кв.м, спальня 28 кв.м с балконом 4 кв.м, гардеробной 9 кв.м и санузлом 16 кв.м, кабинет 31 кв.м с балконом 4 кв.м, спальня 16 кв.м с санузлом 7 кв.м, тренажерный зал, галерея 16 кв.м
Описание внутренней отделки: качественная отделка в стиле минимализма. Стены оштукатурены, покрашены, панно из оникса зхз м; на полах палубный паркет; лестничный проем выполнен из железобетона, отделан плиткой, с ограждением из стекла и деревянными поручнями. ГКЛ многоуровневые с подсветкой, с/т DURANT, импортная сантехника. Двери из массива дерева, ширина дверных проемов 2.3 м, прдоконники из искусственного камня
Инженерное обеспечение: 2 газовых котла MIGTY TERM (Канада), медная разводка в котельной 8 насосов GRAND FOSS, бойлер VISSMAN на 800 л., многоступенчатая система очистки воды, установлена система центральной принудительной приточной вентиляции с кондиционированием DAIKIN c подогревом воздуха, видеонаблюдение со всех точек мира, лазерные датчики движения по уч-ку, дизельный генератор WILSON на 40 кВа с автоматическим включением.
Мебель, оборудование: частично меблирован: встроенная кухня белого цвета МДФ глянцевая, столешница - иск. камень, техника BOSCH высокого уровня, духовка с пиролитической очисткой, столовый гарнитур (Франция), столик из оникса, декоративные дизайнерские подсвечники
Дополнительные строения: Дом для охраны и персонала: пост видеонаблюдения охраны с с/у, 1-комнатная квартира с кухней и саузлом с душевой кабиной. Гараж на 1 а/м с генераторной, мастерской 8 кв.м, кладовой 15 кв.м. Беседка с барбекю с водопроводом. Грунтовый теннисный корт, детская площадка.
Дополнительная информация о доме: монолитный фундамент, ж/б перекрытия, высота потолков в двусветной гостиной 7.5 м, в остальных помещениях 1-го этажа 3.4 м, и 3.4 м на 2-м этаже

Участок

Площадь участка, соток: 40 (в пользовании 45 соток)
Тип участка: с лесными деревьями
Благоустройство участка: выполнен ландшафтный дизайн: дренаж, освещение, дорожки, небольшой отрезок леса, взрослые ели, декоративные кустарники, цветники, плодовые деревья, теннисный корт, детская площадка
Статус земли: земли поселений для строительства коттеджей, культурно-оздоровительного и спортивного центра
Дополнительная информация об участке: большая парковка на 10 автомобилей (покрытие- тротуарная плитка)

Коммуникации

Газ: есть (магистральный)
Э/э: есть (40 кВт)
Водопровод: центральный (+ скважина 80 м)
Канализация: централизованная
Телефон: есть (московский номер)
Интернет: есть (оптиковолокно)
Охрана: есть (безопасность жилого комплекса обеспечивается круглосуточным патрулированием службой вневедомственной охраны и сотрудниками контроля доступа, а так же пропускным режимом и современной системой видеонаблюдения)

Описание инфраструктуры

Охраняемый жилой комплекс с гостевой парковкой. На въезде большой фитнес-центр Дубровка с бассейном, СПА-зоной, салоном красоты и тренажерным залом. При въезде расположены три супермаркета один из них «Перекресток», «Азбука Вкуса», «Пятерочка». Торговый центр «Уютный дом», кулинария, банк, аптека, 3 ресторана: SomeMeat, Florentini, Чё Хотели Пили Ели, кафе Таверна и Вкусно и Точка, ветеринарная клиника, банкоматы, Дом быта, шиномонтаж, зоомагазин, офис нотариуса. Для детей жилого комплекса Дубровка работают: семейный центр и детский сад «Радость» со спортивными и творческими секциями. Частная школа Tower Bridge School (от 4 до 11 лет), где есть группа раннего развития, подготовка к школе, начальная школа и дополнительные занятия (творчество, живопись, иностранные языки и спортивные секции). Частная школа «СО-Знание Дубровка» для детей 0-11 классов, частная школа с начальными классами (1-4 класс) Эволуччи. На территории поселка благоустроена лесная прогулочная зона, места с беседками для барбекю, беловые и велосипедные дорожки, есть мини-зоопарк. Действуют пункты выдачи заказов Ozon и Яндекс Маркет, Wildberries, Сдек. Православный Храм в 10 минутах пешком. В 10 минутах пешком метро Ольховая. В 10 минутах на машине частная школа Летово (с 7 по 11 класс), теннисный клуб Теннис.ру, городская инфраструктура поселков Коммунарка, Воскресенское, Николо-Хованское (поликлиники, больницы, десткие сады и школы, торговые комплексы, рестораны, фитнес клубы, банки, Мои документы и др.)

Хочу посмотреть


Поделитесь с друзьями:

Собираетесь купить дом, дачу или коттедж на Калужском или Киевском направлении? Обязательно воспользуйтесь услугами компании «Белые Ветры», старейшего оператора загородной недвижимости на Юго-западе Подмосковья!
Рейтинг@Mail.ru