Дом, Дубровка ЖК
Код: 108-831
Особенности объекта
Современный уютный дом под ключ с функциональной планировкой. В одном из лучших поселков Калужского шоссе. С собственной городской инфраструктурой в комфортном удалении от Москвы. Видеоролик
Расположение
Ссылка на карту
Дубровка ЖК (Сосенки)
Калужское шоссе, от МКАД: 5 км, всего: 6 км
Тип застройки: сформированный к/п
Метро: Ольховая, Теплый стан, Прокшино; от 15 мин пешком
Жилой комплекс «Дубровка»
Дом
Общая площадь строений: 436 м2
Год постройки дома: 2009
Количество уровней: 2
Спален: 4. С/узлов полных: 4. С/узлов неполных: 2. Комнат всего: 7.
Опции: сауна; квартира для персонала; терраса; камин; машиномест крытых: 2, в т.ч. в теплом гараже: 2.
Материал стен: кирпич+утеплитель (базальтовая вата 50 мм)
Облицовка стен: фасадная штукатурка с элементами из дикого камня
Кровля: мягкая
Окна: стеклопакеты ПВХ (двухкамерные под дерево, рольставни на 1м этаже)
Стадия готовности: под ключ (частично меблирован)
Цоколь: котельная 21 кв.м
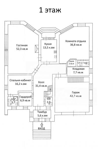
1-ый этаж: Тамбур-прихожая 5.6 кв.м, холл 31.5 кв.м, с/узел, гардеробная 7 кв.м, гостиная с камином 52 кв.м, кухня 13.5 кв.м с выходом на террасу, гостевая спальня 16 кв.м с с/узлом 4 кв.м, тренажерный зал (комната отдыха) 36.5 кв.м, сауна, с/узел 3 кв.м, кладовая 8 кв.м, гараж 43 кв.м
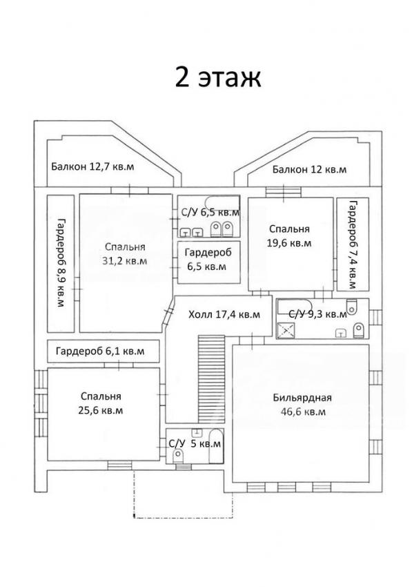
2-ой этаж: холл 17.5 кв.м, спальня 19.6 кв.м с с/узлом (с ванной) 5 кв.м и гардеробной 6 кв.м, Главная спальня 25.6 кв.м с с/узлом (с ванной) 9 кв.м, с двумя гардеробными 9 и 7.5 кв.м и выходом на лоджию 12 кв.м, спальня 17.5 кв.м с с/узлом (с ванной и душевой кабиной) 9 кв.м, с гардеробной 6 кв.м и выходом на лоджию 12 кв.м, бильярдная 39.6 кв.м
Описание внутренней отделки: Современная дизайнерская отделка с использованием дорогих импортных материалов. На стенах венецианская штукатурка, французская краска, обои под покраску, шелкография. Пол -керамогранит и кафель с водяным подогревом, паркетная доска (массив дуба). Потолки подвесные многоуровневые с различными подсветками. Металлодеревянная сборная лестница шириной 1.2 м, ступени из массива дуба; двери из массива сосны.
Инженерное обеспечение: газовый котел Wolf (Германия) 75 кВт, бойлер Reflex 300 л, оборудована система очистки воды; вентиляция естественная приточно-вытяжная, установлены кондиционеры на 2м этаже во всех спальнях. Все коммуникации разведены по дому. Центральный встроенный пылесос. Счетчики электричества и газа.
Мебель, оборудование: Установлен дорогой кухонный гарнитур со встроенной техникой, кровати во всех спальнях, в гостиной кожаный диван и камин из мрамора; в санузлах установлена импортная сантехника (пр-ва Италии, Швеции).
Дополнительные строения: Домик для персонала 65 кв.м. Летняя беседка с мангалом.
Дополнительная информация о доме: Дом представлен в стиле "Шале". Фундамент дома ленточный монолит, монолитные перекрытия, высота потолков 3 м. На втором этаже установлены мансардные окна.
Участок
Площадь участка, соток: 17.6
Тип участка: парковый с ландшафтом
Благоустройство участка: на участке газон, дорожки, уличное освещение; высажены сосны, туи, около 20 елей, декоративные кустарники, плетущиеся растения. Сделан дренаж участка.
Статус земли: земли населенных пунктов, для размещения коттеджной застройки
Дополнительная информация об участке: участок треугольной формы, расположен в центре поселка, огорожен кованым забором на каменном цоколе и столбах.
Коммуникации
Газ: есть (магистральный)
Э/э: есть (15 кВт)
Водопровод: центральный
Канализация: централизованная
Телефон: есть (МГТС)
Интернет: есть (оптиковолокно; спутниковое ТВ)
Охрана: есть (безопасность жилого комплекса обеспечивается круглосуточным патрулированием службой вневедомственной охраны и сотрудниками контроля доступа, а так же пропускным режимом и современной системой видеонаблюдения)
Описание инфраструктуры
Охраняемый жилой комплекс с гостевой парковкой. На въезде большой фитнес-центр Дубровка с бассейном, СПА-зоной, салоном красоты и тренажерным залом. При въезде расположены три супермаркета один из них «Перекресток», «Азбука Вкуса», «Пятерочка». Торговый центр «Уютный дом», кулинария, банк, аптека, 3 ресторана: SomeMeat, Florentini, Чё Хотели Пили Ели, кафе Таверна и Вкусно и Точка, ветеринарная клиника, банкоматы, Дом быта, шиномонтаж, зоомагазин, офис нотариуса. Для детей жилого комплекса Дубровка работают: семейный центр и детский сад «Радость» со спортивными и творческими секциями. Частная школа Tower Bridge School (от 4 до 11 лет), где есть группа раннего развития, подготовка к школе, начальная школа и дополнительные занятия (творчество, живопись, иностранные языки и спортивные секции). Частная школа «СО-Знание Дубровка» для детей 0-11 классов, частная школа с начальными классами (1-4 класс) Эволуччи. На территории поселка благоустроена лесная прогулочная зона, места с беседками для барбекю, беловые и велосипедные дорожки, есть мини-зоопарк. Действуют пункты выдачи заказов Ozon и Яндекс Маркет, Wildberries, Сдек. Православный Храм в 10 минутах пешком. В 10 минутах пешком метро Ольховая. В 10 минутах на машине частная школа Летово (с 7 по 11 класс), теннисный клуб Теннис.ру, городская инфраструктура поселков Коммунарка, Воскресенское, Николо-Хованское (поликлиники, больницы, десткие сады и школы, торговые комплексы, рестораны, фитнес клубы, банки, Мои документы и др.)
Элементы положит. окружения
Тихое место, лесной массив расположен в 400 метрах, в 300 метрах пруды с лебедями, прогулочная зона.
Хочу посмотретьПоделитесь с друзьями:
Похожие предложения:
Дом, Большое Покровское к/п (Большое Покровское), 490 м2, 15 сот
Филатов луг, Рассказовка - от 12 мин на автоДом, Большое Покровское к/п
Киевское ш., 15 км + 2 км
пл. участка: 15 сот
пл. дома: 490 м2
меблирован
Спален: 8. С/узлов: 6.





