Продажа дачи, коттеджа, дома на Киевском, Калужском шоссе — цена, описание, фото, расположение на карте.

Дом, Ели к/п

Код: 151-351

Особенности объекта

Беспроцентная рассрочка! Дом-усадьба, с множеством опций: зона СПА (большой бассейн с римским входом, сауна, зона отдыха), винный погреб, бильярдная, много спален и санузлов, гараж, большая гостиная с камином, беседка-барбекю, квартира персонала и другое. Усадьба расположена в приватной части поселка. Великолепный лесной ухоженный участок с ландшафтным дизайном. Стародачное место в окружении многолетнего леса, вблизи городская инфраструктура Новых Ватутинок. 

Расположение

Ссылка на карту
Ели к/п (Фоминское)
Калужское шоссе, от МКАД: 14 км, всего: 18 км
Киевское шоссе, от МКАД: 14 км, всего: 27 км
Тип застройки: обжитой к/п
Метро: Ольховая, Теплый стан, Крёкшино; от 20 мин на авто
Коттеджный поселок «Ели»

Дом

Общая площадь строений: 820 м2
Количество уровней: 2
Спален: 10. С/узлов полных: 8. С/узлов неполных: 1. Опции: бассейн (9*3.5м, с римским входом); сауна; терраса; камин; холодный подвал; машиномест крытых: 4, в т.ч. в теплом гараже: 2; Бильярдная (русский стол 12 футов) с мини-кухней и баром.
Материал стен: кирпич + утеплитель
Облицовка стен: штукатурка
Кровля: мягкая
Окна: стеклопакеты ПВХ (двухкамерные, ламинированные с двух сторон цвет "золотой дуб")
Стадия готовности: меблирован
Цоколь: подвальное помещение: винный погреб 12 кв.м, чемоданная 9 кв.м, кладовая 20 кв.м, постирочная 8 кв.м, кладовая 19 кв.м, котельная 12 кв.м, большая кладовая 57 кв.м, генераторная 6 кв.м, холл 8 кв.м, помещение для обслуживания бассейна 43 кв.м, мастерская-кладовая 33 кв.м;
1-ый этаж: крыльцо 7 кв.м, тамбур-прихожая 3 кв.м, гардеробная 7.2 кв.м, санузел 3 кв.м, холл 25 кв.м, кухня-столовая 38 кв.м с выходом на крытую террасу (патио) 20 кв.м, столовая 22 кв.м с выходом на крытую террасу 28 кв.м, гостиная 55 кв.м (с высокими потолками и с камином), СПА-зона с комнатой отдыха 40 кв.м, парной, душем, санузлом, помещением зона бассейна 64 кв.м (чаша 9*3.5м с римским входом); гостевая спальня 22 кв.м с санузлом 5 кв.м; гараж 44 кв.м на 2 а/м
2-ой этаж: мастер-спальня 35 кв.м со своими гардеробной 7 кв.м, будуаром 9 кв.м,переходящим в санузел 15 кв.м; кабинет 25 кв.м с антресолью 6 кв.м; 4 спальни - 28, 28, 25 (с антресолью 10 кв.м) и 23 кв.м; 2 общих санузла 5 кв.м и 6 кв.м; зимний сад 63 кв.м; гардеробная 7.2 кв.м, холл-коридор 28 кв.м соединяющий оба крыла;
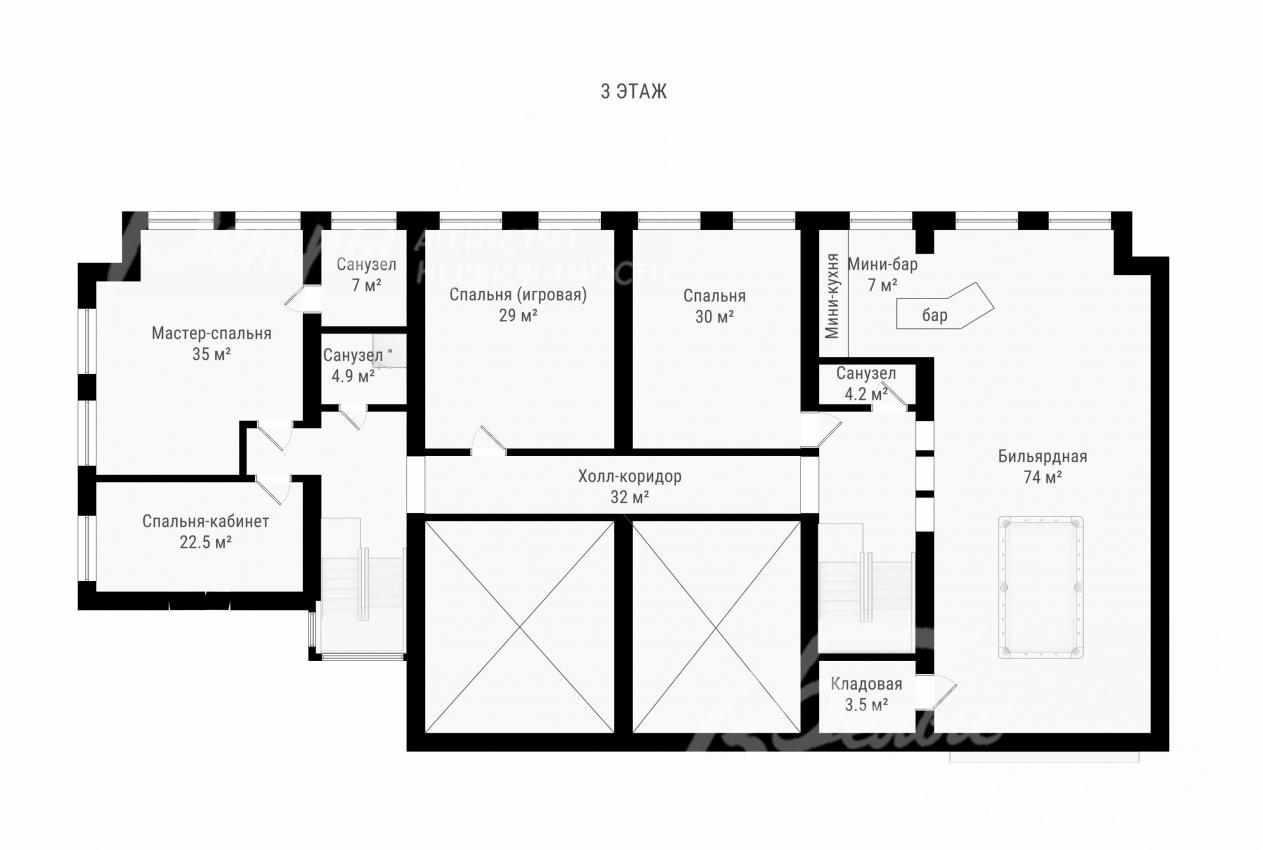
3-ий этаж: бильярдная 74 кв.м с мини-баром 7 кв.м, 4 спальни: 35кв.м со своим санузлом 7 кв.м, и 30, 29 и 22.5 кв.м; 2 общих санузла 5 и 4 кв.м, холл-коридор 32 кв.м соединяющий оба крыла, кладовая 3.5 кв.м
Описание внутренней отделки: отделка дома выполнена качественными материалами: на стенах обои и декоративная штукатурка (в кабинете английские обои). На полу плитка с водяным подогревом, керамогранит, паркетная доска, в спальнях - ковролин; в доме два лестничных марша: широкий "парадный" - на бетонном основании, ступени из дуба; второй также на бетонном основании, отделка плиткой; сантехника установлена ведущих брендов; установлены радиаторы Kermi
Инженерное обеспечение: котел De Dietrich 198 КВт, бойлер Reflex 200л; многоступенчатая система очистки воды; сплит-системы кондиционирования Fujitsu; сингализация
Мебель, оборудование: полностью меблирован: мебель в спальнях, кухне-столовой, в кабинете и гостиной
Дополнительные строения: .
- домик-барбекю 28 кв.м, с каменной печью с мангалом, мойкой, столом и мини-кухней;
- 2 мини-теплицы;
Дополнительная информация о доме: Дом состоит из двух крыльев, в каждом - своя межэтажная лестница. Архитектурный стиль - современный. Перекрытия - ж/б плиты;

Участок

Площадь участка, соток: 33 (10,1 соток - в собственности, 23 сотки - оформленная аренда леса)
Тип участка: лесной
Благоустройство участка: на участке искусственный пруд с водопадом, сухой ручей, установлено ночное освещение, выложены дорожки, есть декоративные посадки, высажен газон; многообразие уникальных лесных и декоративных деревьев и кустарников (вековые ели, березы, клены, молодые сосны, голубая ель, туи и другие)
Статус земли: земли населенных пунктов (есть прописка)
Дополнительная информация об участке: участок ровный расположен в дальней части поселка; огражден сплошным забором, лесная часть - дощатым забором на металлических столбах высотой 2.5 метра, остальная часть забором из металлопрофиля

Коммуникации

Газ: есть (магистральный)
Э/э: есть (3 фазы)
Водопровод: центральный
Канализация: централизованная
Интернет: есть
Охрана: есть (КПП, ЧОП)

Описание инфраструктуры

Спортивная площадка, детская площадка, прогулочная лесная зона, в 900 м инфраструктура к/п "Фоминское" (два продуктовых магазина), в 3 км инфраструктура микрорайона Новые Ватутинки, в 3 км г. Троицк с развитой городской инфраструктурой: школы, дет. сады, магазины, поликлиника, фитнес-центр с бассейном Резиденция.

Элементы положит. окружения

Вокруг лес

Хочу посмотреть


Поделитесь с друзьями:

Собираетесь купить дом, дачу или коттедж на Калужском или Киевском направлении? Обязательно воспользуйтесь услугами компании «Белые Ветры», старейшего оператора загородной недвижимости на Юго-западе Подмосковья!
Рейтинг@Mail.ru