Продажа дачи, коттеджа, дома на Киевском, Калужском шоссе — цена, описание, фото, расположение на карте.

Дом, Ели к/п

Снят с реализации

Меблированный дом 373 кв.м в обжитом поселке Ели

Код: 151-809

Особенности объекта

Кирпичный, готовый к проживанию дом на красивом лесном участке с ландшафтом, в обжитом охраняемом коттеджном поселке с центральными коммуникациями.

Расположение

Ссылка на карту
Ели к/п (Фоминское)
Калужское шоссе, от МКАД: 14 км, всего: 18 км
Киевское шоссе, от МКАД: 14 км, всего: 27 км
Тип застройки: обжитой к/п
Метро: Ольховая, Теплый стан, Крёкшино; от 20 мин на авто
Коттеджный поселок «Ели»

Дом

Общая площадь строений: 373 м2
Количество уровней: 3
Спален: 4. С/узлов: 2. Комнат всего: 5.
Опции: сауна; терраса; камин; машиномест крытых: 2, в т.ч. в теплом гараже: 2.
Материал стен: кирпич
Облицовка стен: сайдинг
Кровля: металлочерепица
Окна: деревянные (двухрамные)
Стадия готовности: меблирован
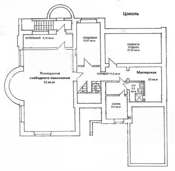
Цоколь: коридор 11 кв.м, мастерская 10 кв.м, с/узел, сауна 5 кв.м, комната отдыха 21 кв.м, кладовая 12 кв.м, помещение свободного назначения 52 кв.м, котельная 8 кв.м с выходом на улицу.
1-ый этаж: Тамбур, прихожая 10 кв.м, холл 6 кв.м, гостиная 39 кв.м с камином и вторым светом, кухня-столовая 20 кв.м с выходом на участок, спальня 10 кв.м, веранда 22 кв.м, с/узел 4 кв.м, прачечная 6 кв.м, два гаража по 23 кв.м
2-ой этаж: холл 5 кв.м, с/узел 4 кв.м, галерея 20.5 кв.м, спальня 21 кв.м с балконом 7 кв.м, спальня 22 кв.м с выходом в зимний сад 30 кв.м
Описание внутренней отделки: Стены оклеены обоями, пол - плитка, паркет, деревянная доска. Потолки выровнены и окрашены. Лестничный марш деревянный - сосна. Двери из массива дерева (сосна). Есть физический износ.
Инженерное обеспечение: котел «Ламборджини» (Италия), многоступенчатая система очистка воды, естественная приточно-вытяжная вентиляция, счетчики электричества
Мебель, оборудование: Дом полностью меблирован, в т.ч.: установлен кухонный гарнитур со встроенной бытовой техникой, 2 автоматических стиральных машины, 3 холодильника с морозильной камерой и др.
Дополнительные строения: 2 беседки, барбекю, детская площадка, деревянная часовня.
Дополнительная информация о доме: Фундамент блочный, железобетонные перекрытия. Высота потолков - 2.75 - 3.0 м

Участок

Площадь участка, соток: 25 (в т.ч. 10 соток в собственности, 15 соток - аренда земель лесного фонда)
Тип участка: парковый со взрослыми деревьями
Благоустройство участка: Красивый участок: взрослые деревья - березы, осина, рябина, можжевельник, ели, сосны, туи, плодовые деревья, цветочные клумбы, искусственный пруд, дорожки, освещение участка
Статус земли: земли населенных пунктов, для дачного строительства (с пропиской)
Дополнительная информация об участке: участок прямоугольной формы, крайний к лесу, огорожен забором

Коммуникации

Газ: есть (магистральный)
Э/э: есть (15 кВт)
Водопровод: центральный (также артезианская скважина 70 м)
Канализация: централизованная
Телефон: есть (МГТС)
Интернет: есть (оптоволокно, спутниковое ТВ)
Охрана: есть

Описание инфраструктуры

Спортивная площадка, детская площадка, прогулочная лесная зона, в 900 м инфраструктура к/п "Фоминское" (два продуктовых магазина), в 3 км инфраструктура микрорайона Новые Ватутинки, в 3 км г. Троицк с развитой городской инфраструктурой: школы, дет. сады, магазины, поликлиника, фитнес-центр с бассейном Резиденция.

Элементы положит. окружения

Лесной массив в непосредственной близости от участка, тихое красивое место.

Хочу посмотреть


Поделитесь с друзьями:

Собираетесь купить дом, дачу или коттедж на Калужском или Киевском направлении? Обязательно воспользуйтесь услугами компании «Белые Ветры», старейшего оператора загородной недвижимости на Юго-западе Подмосковья!
Рейтинг@Mail.ru