Дом, Фрунзевец к/п
Код: 217-326
Особенности объекта
Красивый проект, лесной участок 42 сотки, большой скиммерный бассейн, сервисный дом-гараж с квартирой для персонала, домик охранника, бильярдная, спортзал, спортивная площадка со специальным покрытием (теннис, баскетбол). Стародачный коттеджный поселок на Киевском шоссе
Расположение
Ссылка на карту
Фрунзевец к/п (Апрелевка)
Киевское шоссе, от МКАД: 28 км, всего: 29 км
Тип застройки: стародачное место
Метро: Апрелевка, Саларьево, Рассказовка; от 9 мин на авто
Коттеджный поселок «Фрунзевец (Апрелевка)»
Дом
Общая площадь строений: 661 м2 (Дом с крылом бассейна + сервисный дом-гараж с квартирой для персонала на 2-ом этаже + домик охранника)
Год постройки дома: 2013
Количество уровней: 3
Спален: 5. С/узлов: 4. Комнат всего: 10.
Опции: бассейн; сауна; квартира для персонала; терраса; камин; холодный подвал; машиномест крытых: 2, в т.ч. в теплом гараже: 2; бильярдная, спортзал, бассейн скиммерный 11 м Х 3 м. Глубина 1.5 м..
Материал стен: кирпич
Облицовка стен: кирпич, штукатурка, покраска
Кровля: металлочерепица
Окна: стеклопакеты ПВХ
Стадия готовности: меблирован
Цоколь: Холл 27 кв.м, прачечная-гладильная 13 кв.м, спортивный зал 30 кв.м, сейфовая комната, котельная дома 21 кв.м, мастерская 25 кв.м, бильярдная 47.6 кв.м.
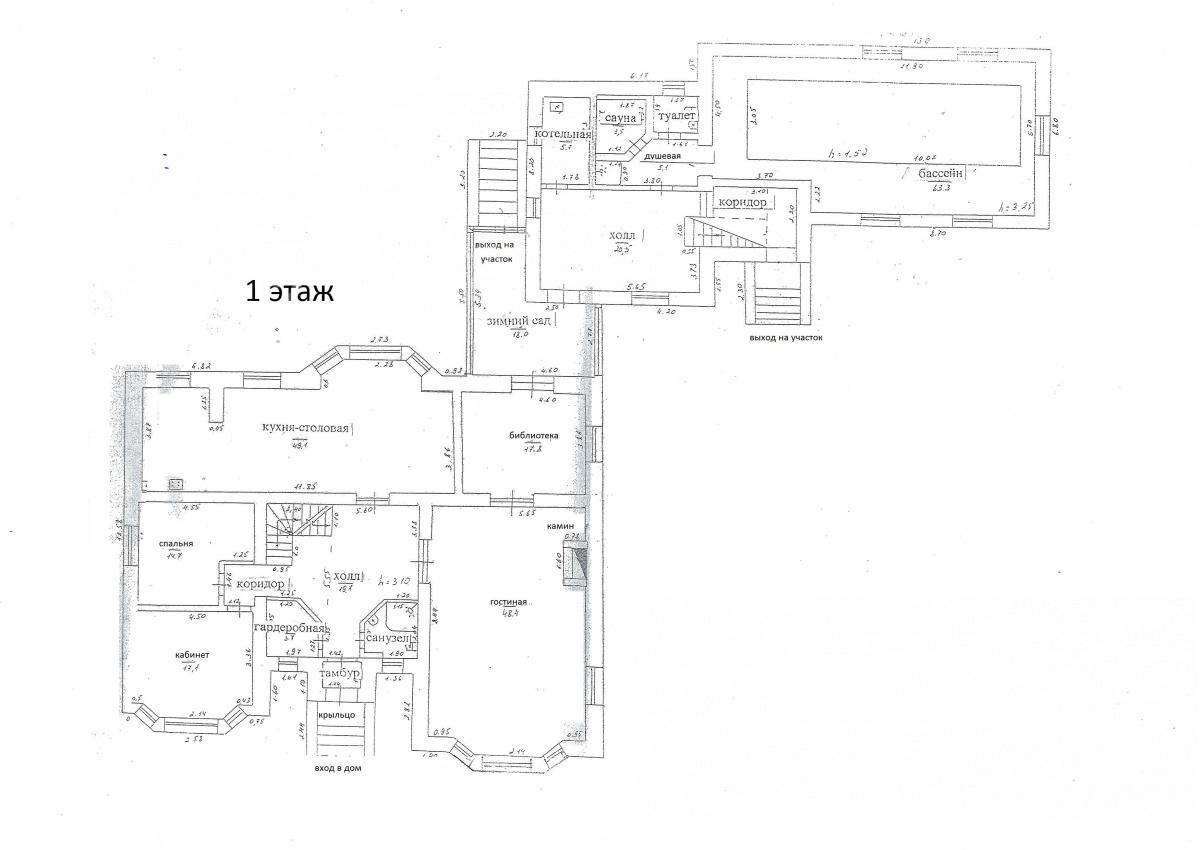
1-ый этаж: Крыльцо, тамбур, холл с лестничным маршем 19 кв.м, прихожая-гардеробная, кабинет 17 кв.м, спальня 14.7 кв.м, гостиная с камином 48 кв.м, кухня-столовая 49 кв.м, библиотека 18 кв.м, зимний сад 18 кв.м, с/узел, крыло бассейна: холл 20.5 кв.м, котельная бассейна с подвалом, сауна, с/узел, душевая, бассейн 63 кв.м.
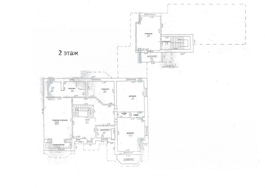
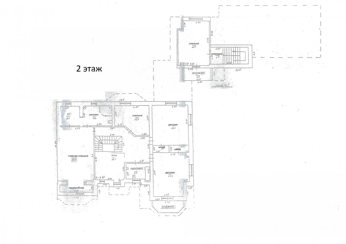
2-ой этаж: Холл 30 кв.м, санузел, главная спальня 39 кв.м с с/узлом 10 кв.м и гардеробной, спальня-детская 25 кв.м с гардеробной и лоджией, спальня 15 кв.м, детская 25 кв.м, спальня 22.5 кв.м с лоджией.
Описание внутренней отделки: Стены окрашены и оклеены обоями, в санузлах кафель. В бильярдной стены отделаны деревянными панелями, на полу ковролин. Полы в санузлах из кафеля и керамогранита с электроподогревом, в жилых комнатах паркет. В спортзале специальное покрытие для тренажерных залов. Потолки подвесные окрашенные. Лестница на металлическом каркасе, ступени отделаны деревом (дуб). Перила и поручни из дуба. Вся сантехника установлена марок Jacob Delafon, Jacuzzi, Axor, Grohe. Все коммуникации разведены под ключ. В цокольном этаже радиаторы чугунные, по дому биметаллические. Двери деревянные.
Инженерное обеспечение: В доме установлены газовый котел Vaillant на 43-78 кВт с электронной системой управления, бойлер косвенного нагрева Vaillant на 200 л, электрический бойлер Ariston на 200 л, электродизельный генератор на 20 кВт с автоматическим включением. Система очистки воды многоступенчатая. Вентиляция в доме и гараже естественно-приточная, в бассейне принудительная.
Мебель, оборудование: Кухня фасады дерево со стеклом, встроенная техника: варочная панель Bosch, электрический духовой шкаф Kuppersbusch, посудомойка Bosch, печь СВЧ, "зеркальный" холодильник Bosch.
Дополнительные строения: Гараж с квартирой для персонала 2-х этажный 120 кв.м под ключ, кирпичный в одном стиле с домом:
1 этаж - гараж на 2 авто, своя котельная (котел АКГВ -17,4; бойлер электрический Thermex), с/у для сторожа.
2 этаж - холл-коридор, кухня-столовая, спальня, с/у (душ, стиральная машина).
Летняя крытая беседка с мангалом (камин,печь) и раковиной.
Спортивная площадка со специальным покрытием (теннис, баскетбол).
Хозблок-генераторная.
Дополнительная информация о доме: Фундамент -железобетонная монолитная плита и стены цоколя. Перекрытия железобетонные монолитные.
Участок
Площадь участка, соток: 42
Тип участка: лесной
Благоустройство участка: На участке растет много вековых деревьев: сосны, березы, ели, яблони. Сделаны дорожки, уличное освещение, разбит газон. Вокруг дома и по участку сделан отвод ливневой воды. Парковочная площадка из брусчатки на 4 авто.
Статус земли: Земли поселений для ИЖС
Дополнительная информация об участке: Участок расположен в центре поселка, угловой на две улицы, огражден металлическим забором высотой более 2х метров на кирпичных столбах с бетонным цоколем. Ворота автоматические распашные. У ворот кирпичная сторожка.
Коммуникации
Газ: есть (магистральный)
Э/э: есть (20 кВт, 3 фазы)
Канализация: централизованная
Интернет: есть (оптиковолокно)
Описание инфраструктуры
В поселке — магазин, поселок Апрелевка со всей городской инфраструктурой.
Хочу посмотретьПоделитесь с друзьями:
Похожие предложения:
Дом, Лесное Озеро к/п (Кузенёво), 578 м2, 39 сот
Ольховая, Теплый стан - от 29 мин на автоДом, Лесное Озеро к/п
Калужское ш., 25 км + 4 км
пл. участка: 39 сот
пл. дома: 578 м2
меблирован
Спален: 6. С/узлов: 2.




