Дом, Фрунзевец к/п
Код: 217-827
Особенности объекта
Современная усадьба из клееного профилированного бруса с необычным дизайном, построенная по индивидуальному проекту известного московского архитектора. Роспись на стенах и другие элементы интерьера, выполненные в традициях русского творчества, внесут немного сказки в вашу жизнь. Отдельная студия-квартира для молодежи, большой переливной бассейн, русская баня, хамам, бильярдная, спортзал. Предусмотрена удобная отдельная квартира для персонала. Большой красивый участок с лесными деревьями, детской площадкой и зоной барбекю. Стародачное историческое место в хвойном лесном массиве на Киевском шоссе.
Расположение
Ссылка на карту
Фрунзевец к/п (Апрелевка)
Киевское шоссе, от МКАД: 28 км, всего: 29 км
Тип застройки: стародачное место
Метро: Апрелевка, Саларьево, Рассказовка; от 9 мин на авто
Коттеджный поселок «Фрунзевец (Апрелевка)»
Дом
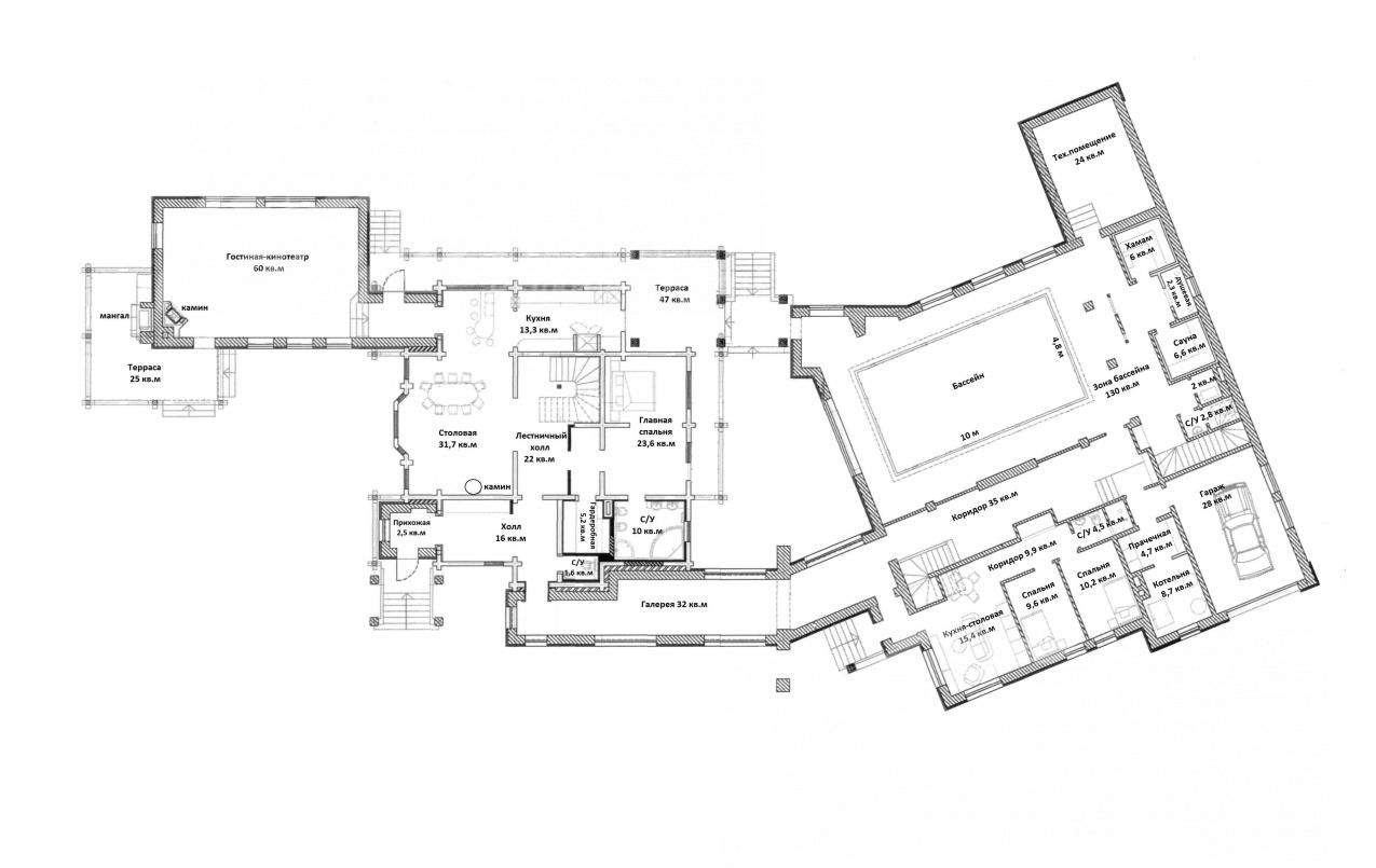
Общая площадь строений: 788 м2
Количество уровней: 2
Спален: 6. С/узлов: 6. Комнат всего: 10.
Опции: бассейн; сауна; квартира для персонала; терраса; камин; машиномест крытых: 3, в т.ч. в теплом гараже: 1; бассейн переливной 10 Х 4.8 м глубиной от 1.2 м до 3 м с противотоком,гидромассажем и водопадом, хамам, парная с электрической и дровяной печью, второй свет, бильярдная, спортзал, отдельная квартира для молодой семьи..
Материал стен: клееный профилированный брус 220 мм, пристройки из пеноблока + утеплитель
Облицовка стен: Цоколь отделан диким камнем, пристройки диким камнем и деревом (имитация бруса)
Кровля: металлочерепица
Окна: стеклопакеты ПВХ
Стадия готовности: меблирован
1-ый этаж: Основной дом: тамбур, холл-прихожая 16 кв.м, лестничный холл 22 кв.м, столовая 32 кв.м с камином и вторым светом, кухня 13 кв.м с выходом на террасу 47 кв.м, гостиная-кинотеатр 60 кв.м с камином и выходом на террасу 25 кв.м с мангалом, главная спальня 23.6 кв.м с с/узлом 10 кв.м и с гардеробной 5 кв.м и с выходом на террасу, гостевой с/узел, галерея 32 кв.м ( ведущая в вспомогательное крыло).
Вспомогательное крыло:
Блок СПА- зоны-коридор 35 кв.м, зона бассейна 130 кв.м со вторым светом и с выходом на улицу, сауна 6.6 кв.м, хамам 6 кв.м, душевая, раздевалка, с/узел, тех.помещение для бассейна 24 кв.м.
Блок квартиры для персонала ( с отдельным входом) - прихожая, кухня-столовая 15 кв.м, коридор 10 кв.м, спальня 9.6 кв.м, спальня 10 кв.м, с/узел.
Технический блок: прачечная, котельная 8.7 кв.м, гараж 28 кв.м
2-ой этаж: Основной дом: холл 12.6 кв.м, спальня 13 кв.м с балконом, спальня 22 кв.м с балконом, спальня 16 кв.м с гардеробной 10 кв.м и с балконом. Общий с/узел.
Вспомогательное крыло:
Зона отдыха-комната отдыха 45.7 кв.м с баром и кладовой 5.7 кв.м, спортзал 29.5 кв.м, бильярдная 38 кв.м.
Гостевая квартира- кухня-столовая 15 кв.м, спальня 13 кв.м, спальня 11 кв.м с с/узлом и с гардеробной, с/узел.
Описание внутренней отделки: На стенах декоративная штукатурка и ручная роспись. Полы из керамогранита с водяным подогревом и массива доски. Лестничный марш деревянный на металлическом каркасе с коваными перилами. Потолки подвесные и вагонка. Сантехника установлена. Все коммуникации разведены под ключ. Радиаторы Керми. Двери деревянные.
Инженерное обеспечение: В доме установлены два газовых котла марки Rendamax по 60 кВт, бойлер косвенного нагрева на 500 л и резервный генератор. Система очистки воды многоступенчатая. Вентиляция естественно-приточная, в зоне бассейна принудительная. В доме установлена пультовая сигнализация с датчиками движения как внутри дома, так и по периметру участка. В зоне бассейна оборудован вертикальный солярий.
Мебель, оборудование: Много дизайнерской мебели ручной работы. Кухня со встроенной техникой.
Дополнительные строения: Генераторная, хозблок с вольером, детская площадка, навес на 2 авто, зона барбекю.
Дополнительная информация о доме: Фундамент железобетонный ленточный, перекрытия деревянные.
Участок
Площадь участка, соток: 31.5
Тип участка: лесной
Благоустройство участка: Вокруг дома и по участку сделаны дренаж, дорожки и уличное освещение. Растут туи, голубые ели 30 шт., 5 берез, плодовые деревья, розарии, разбит огород, газоны.
Статус земли: Земли поселений для ИЖС
Коммуникации
Газ: есть (магистральный)
Э/э: есть (3 фазы)
Водопровод: индивид. скважина (40 м)
Канализация: централизованная
Телефон: есть (МГТС)
Интернет: есть (оптиковолокно)
Описание инфраструктуры
В поселке — магазин, поселок Апрелевка со всей городской инфраструктурой.
Хочу посмотретьПоделитесь с друзьями:
Похожие предложения:
Дом, Апрелевка Парк КП (Мартемьяново), 695 м2, 26.4 сот
Апрелевка, Аэропорт Внуково - от 13 мин на автоДом, Апрелевка Парк КП
Киевское ш., 25 км + 2 км
пл. участка: 26.4 сот
пл. дома: 695 м2
меблирован
Спален: 7. С/узлов: 6.





