Дом, Ильичевка к/п
Код: 110-464
Особенности объекта
Новый дом в стиле современной классики, построенный из керамического блока Porotherm с отделкой фасада немецким клинкерным кирпичом. В доме – высокие потолки, цокольный этаж с сауной и удобными кладовыми, высококлассная инженерная инфраструктура, в том числе центральная вентиляция и бельепровод. На 1-м этаже – зимний сад-терраса с панорамным остеклением и раздвижными окнами на 3 стороны. Оформление интерьера выполнено в светло-серых тонах из высококачественных материалов в соответствии с актуальными трендами дизайна. Гостиную с окнами в пол украшает эффектный классический камин с порталом от пола до потолка, отделанный мрамором. Дом стоит на видовом участке рядом с рекой Десна и лесом в обжитой части охраняемого коттеджного посёлка бизнес-класса.
Расположение
Ссылка на карту
Ильичевка к/п (Ильичевка)
Калужское шоссе, от МКАД: 17 км, всего: 22 км
Киевское шоссе, от МКАД: 21 км, всего: 31 км
Тип застройки: обжитой к/п
Метро: Крёкшино, Ольховая, Теплый стан; от 24 мин на авто
Коттеджный поселок «Ильичевка»
Дом
Общая площадь строений: 433 м2
Год постройки дома: 2019 (отделка выполнена в 2023 году)
Количество уровней: 3
Спален: 4. С/узлов полных: 3. С/узлов неполных: 1. Комнат всего: 8.
Опции: сауна; терраса; камин (с эффектной отделкой тёмным мрамором); машиномест крытых: 1, в т.ч. в теплом гараже: 1; холодный чердак на мансардном этаже.
Материал стен: керамический блок Porotherm (толщина 37 см, утеплитель из каменной ваты толщиной 5 см)
Облицовка стен: клинкерный кирпич ROBEN (Германия) (оранжевого цвета, декоративные элементы — выступающие архитектурные модули, отделанные штукатуркой, облицовка цоколя - керамогранитом)
Кровля: мягкая черепица (установлены пластиковые водостоки Docke)
Окна: стеклопакеты ПВХ (REHAU: двухкамерные, с раскладкой, снаружи – тёмные; в зимнем саду (на террасе) - алюминиевые тёплые раздвижные окна от пола до потолка на три стороны (4 двери)
Стадия готовности: под финишную отделку
Цоколь: холл 13 кв.м, сауна 6 кв.м, раздевалка с душевой 13 кв.м, комната отдыха 20 кв.м, санузел 3 кв.м, кладовая 17 кв.м, кладовая 11,5 кв.м, постирочная 9 кв.м, котельная 15 кв.м, гараж 30,5 в.м
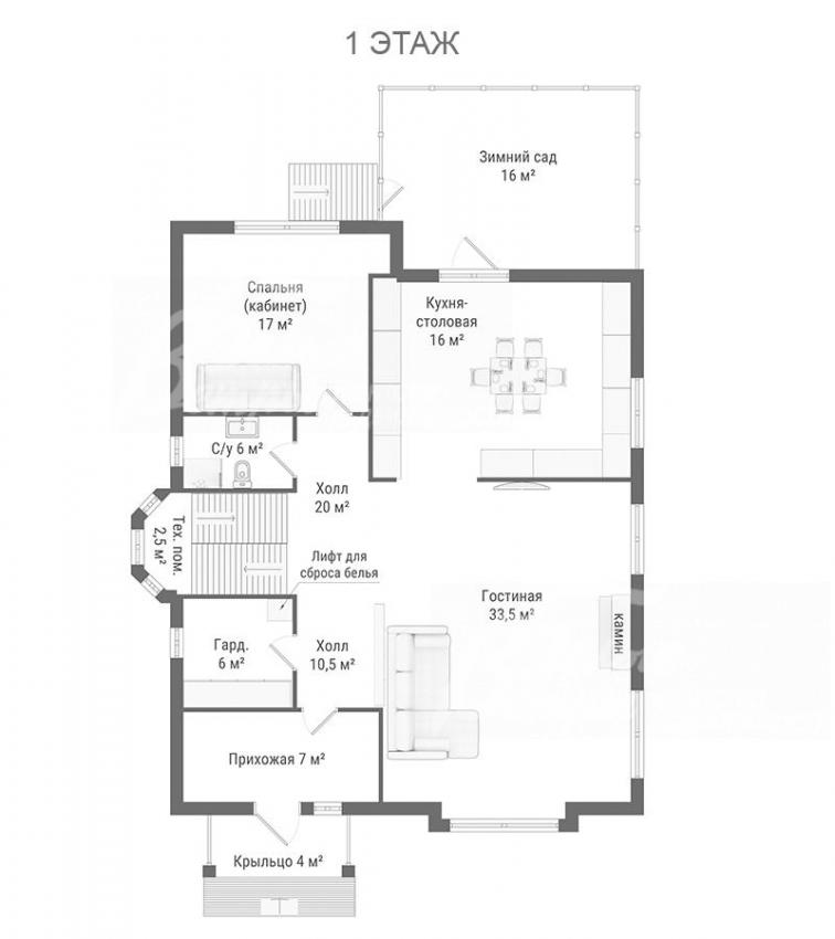
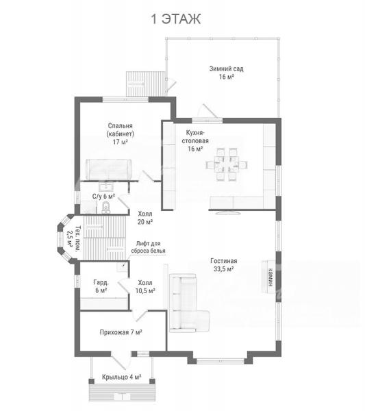
1-ый этаж: крыльцо 4 кв.м, прихожая 7 кв.м, холл 10,5 кв.м, холл 20 кв.м, гостиная 33,5 кв.м, кухня-столовая 16 кв.м с выходом в зимний сад 16 кв.м, спальня (кабинет) 17 кв.м, санузел 6 кв.м, гардеробная 6 кв.м, хозяйственное помещение 2,5 кв.м
2-ой этаж: холл 13 кв.м, мастер-спальня 26 кв.м с гардеробной 9 кв.м, санузлом 9,5 кв.м, коридором 3,5 кв.м и выходом на балкон 2 кв.м, спальня 16 кв.м с гардеробной 5 кв.м, спальня 17 кв.м с санузлом 4,5 кв.м
3-ий этаж: мансардный этаж: холодный чердак
Описание внутренней отделки: выполнена отделка под финиш в соответствии с актуальными трендами дизайна интерьера. Стены в общих помещениях на 1-м этаже подготовлены под покраску, в спальнях поклеены обои, в санузлах – керамогранит и плитка. На полу – плитка с тёплым полом (в общих помещениях на 1-м этаже и в санузлах), в спальнях – ламинат. Потолки из гипсокартона, многоуровневые с подсветкой (в зимнем саду потолки деревянные). Установлены межкомнатные двери на 2-м этаже высотой 2,4 м (серого цвета), стильная входная дверь с терморазрывом (зелёного цвета с золотой патиной и двумя стеклянными секциями), стальные радиаторы Buderus, подрозетники. На второй этаж ведёт монолитная бетонная лестница со ступенями из керамогранита (имитация дуба). Гостиную украшает эффектный камин с порталом в классическом стиле от пола до потолка, отделанным коричневым мрамором. В гараже – автоматические ворота
Инженерное обеспечение: все коммуникации разведены до точек, выполнены выводы под электрику во всех помещениях. Отопление – через напольный котёл Buderus на 32 кВт (медная обвязка котла). Горячее водоснабжение – через бойлер Reflex на 300 л (в котельной есть накопительный бак на 500 л). Установлена многоступенчатая система очистки воды Экодар. Вентиляция - принудительная центральная и приточно-вытяжная с кондиционированием и рекуперацией
Мебель, оборудование: в санузлах установлена импортная сантехника
Дополнительная информация о доме: фундамент - монолитная плита, межэтажные перекрытия монолитные. Высота потолков на 1-м этаже – 3,2 м, на 2-м этаже – 3 м, на цокольном этаже – 3 м
Участок
Площадь участка, соток: 14
Тип участка: с деревьями
Благоустройство участка: территория участка подготовлена для реализации ландшафтного дизайна, частично выполнено фасадное освещение и укладка дорожек. По периметру участка проходит дренажная система. Высажены взрослые ели и сосны.
Статус земли: ЗНП, ДНП
Дополнительная информация об участке: видовой участок с естественным уклоном расположен в тихой части коттеджного посёлка (на улице, которая полностью застроена) в 350 м от реки Десна неподалёку от лесного массива. На территории участка – 3 функциональные зоны, в том числе под 2 террасы по бокам участка. Участок огорожен по 3-м сторонам кованым забором в стиле посёлка, по 1-й стороне – профлистом
Коммуникации
Газ: есть (магистральный)
Э/э: есть (15 кВт)
Водопровод: центральный
Канализация: централизованная
Телефон: возможно подключение (Интерлогика)
Интернет: есть (оптоволокно, Интерлогика)
Охрана: есть (охраняемый коттеджный посёлок)
Описание инфраструктуры
В поселке есть административное здание с обслуживающим персоналом, детские, спортивные площадки, пляжная зона. Прекрасная транспортная доступность по двум скоростным шоссе Киевскому и Калужскому. Рядом инфраструктура г. Троицка (школы, детские сады, рынок, магазины, больница, банки, аптека и т.д.).Пос. Птичное, (2 детских сада и школа). В 5 минутах езды пятизвездочный отель "Теплеево Резорт" с богатой инфраструктурой: бассейн, сауна, SPA центр красоты и здоровья, тренажерные залы, парикмахерские и косметологические услуги, рестораны, боулинг, рыбалка и многое другое. Недалеко от комплекса расположен конный клуб с обширной лесной территорией. "Русская теннисная академия" - крупнейший современный теннисный клуб европейского уровня (8 крытых кортов с профессиональным покрытием, 6 открытых грунтовых кортов и 2 открытых корта с профессиональным покрытием) В непосредственной близости река Десна.
Хочу посмотретьПоделитесь с друзьями:
Похожие предложения:
Дом, Валуевская слобода к/п (Валуево), 415 м2, 12.8 сот
Калужское шоссе, от МКАД: 7+6 км
Филатов луг, Ольховая - от 17 мин на автоДом, Валуевская слобода к/п
Киевское ш., 7 км + 4 км
пл. участка: 12.8 сот
пл. дома: 415 м2
коробка
Спален: 5. С/узлов: 5.


Дом, Искра к/п (Ватутинки), 428 м2, 15 сот
Ольховая, Теплый стан - от 12 мин на автоДом, Искра к/п
Калужское ш., 16 км + 1 км
пл. участка: 15 сот
пл. дома: 428 м2
под отделку
Спален: 6. С/узлов: 4.
Дом, Ильичевка к/п (Ильичевка), 393 м2, 17.7 сот
Киевское шоссе, от МКАД: 21+10 км
Крёкшино, Ольховая - от 24 мин на автоДом, Ильичевка к/п
Калужское ш., 17 км + 5 км
пл. участка: 17.7 сот
пл. дома: 393 м2
под отделку
Спален: 4. С/узлов: 3.

Дом, Резиденция Николинские Ключи (Ивановское), 500 м2, 14 сот
Крёкшино, Саларьево - от 16 мин на автоДом, Резиденция Николинские Ключи
Киевское ш., 21 км + 3 км
пл. участка: 14 сот
пл. дома: 500 м2
под отделку
Спален: 5. С/узлов: 5.
Дом, Подолье КП (Шаганино), 457 м2, 16 сот
Варшавское шоссе, от МКАД: 24+6 км
Ольховая, Бунинская аллея - от 27 мин на автоДом, Подолье КП
Калужское ш., 25 км + 7 км
пл. участка: 16 сот
пл. дома: 457 м2
под ключ
Спален: 6. С/узлов: 3.


|
|



















