Дом, Искра к/п
Код: 134-207
Особенности объекта
Для обладателей развитого вкуса. Стильно отделанный и меблированный каменный дом, выполненный в английском стиле. Также на участке второй дом из бруса с мебелью, из 4 спален. Великолепный ухоженный участок, более 50 деревьев. Обжитой коттеджный посёлок в тихом живописном месте.
Расположение
Ссылка на карту
Искра к/п (Ватутинки)
Калужское шоссе, от МКАД: 16 км, всего: 17 км
Тип застройки: обжитой к/п
Метро: Ольховая, Теплый стан, Бунинская аллея; от 12 мин на авто
Коттеджный поселок «Искра (Ватутинки)»
Дом
Общая площадь строений: 342 м2
Год постройки дома: 2006
Количество уровней: 2
Спален: 3. С/узлов: 3. Комнат всего: 5.
Опции: сауна; квартира для персонала; камин; машиномест крытых: 2.
Материал стен: пеноблок Hebel
Облицовка стен: штукатурка
Кровля: натуральная черепица
Окна: стеклопакеты деревянные
Стадия готовности: меблирован
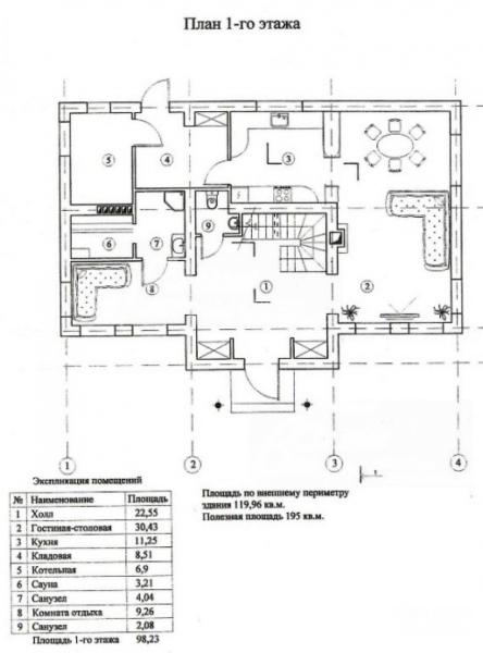
1-ый этаж: холл 23 кв.м, гостевой санузел, кухня 11 кв.м, гостиная-столовая 30 кв.м, тренажерная/комната отдыха, сауна, с/узел 3.5 кв.м, кладовая 8 кв.м, котельная
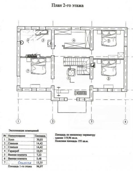
2-ой этаж: холл с выходом на балкон, спальня 15 кв.м, две спальни по 14.4 кв.м, гардеробная 10 кв.м, с/узел 13 кв.м
Описание внутренней отделки: на стенах дорогие обои, покраска; полы - штучный дубовый паркет, плитка с подогревом; потолки оштукатурены, декорированы дорогой гипсовой лепниной; лестничный марш бетонный, ступени - дубовая доска; мраморные подоконники, импортные массивные двери на заказ.
Инженерное обеспечение: установлен котел АОГВ-29, бойлер Ariston; фильтры воды, вентиляция приточно-вытяжная, чугунные батареи; установлен счетчик электричества, домофон.
Мебель, оборудование: Дом полностью укомплектован мебелью и техникой. Вся мебель подобрана с большим вкусом, в т.ч. деревянная ручной работы (Испания). Встроенная кухня, установлены встроенные шкафы, мягкая мебель и чугунный камин в гостиной, люстры, шторы, карнизы.
Дополнительные строения: Гостевой 2-хэтажный дом из бруса (15*15) 120 кв.м, обшит доской, свежий ремонт "под ключ" и меблирован:
1 этаж - кухня-гостиная 33 кв.м, 2 спальни по 10 кв.м, с/узел 5 кв.м, подсобное помещение 4 кв.м;
2 этаж - 2 спальни по 15 кв.м.
Также на участке есть красивая деревянная беседка и навес для 2 а/м.
Дополнительная информация о доме: Дом построен и отделан в классическом английском стиле; фундамент монолитный, перекрытия - пеноблок Hebel, высота потолков 3.25 - 4 метра.
Участок
Площадь участка, соток: 16
Тип участка: лесной (лесные и плодовые деревья, ок.50шт.)
Благоустройство участка: выполнен ландшафтный дизайн участка: газон, дорожки, освещение. Высажены деревья: липы, березы, молодые сосны, акации, клёны, каштаны, яблони, плакучие ивы, вишни, декоративные кустарники, клумбы.
Статус земли: земли сельскохозяйственного назначения, для садоводства
Дополнительная информация об участке: участок квадратной формы, расположен в центре поселка, огорожен деревянным забором по периметру на бетонированных столбах
Коммуникации
Газ: есть (магистральный)
Э/э: есть (3 фазы, 380 В)
Водопровод: центральный
Канализация: автономная
Телефон: есть (МГТС)
Интернет: есть (ТВ)
Охрана: есть (шлагбаум; в доме подключена сигнализация)
Описание инфраструктуры
Спортивная и детская площадки в поселке, полная городская инфраструктура поселка Ватутинки (школа, десткий сад, магазины, аптека и т.д.). В 2025 г в одном километре от поселка будет построена станция метро Ватутинки.
Элементы положит. окружения
Поселок окружен лесом, есть собственный пруд в поселке, тихое место.
Хочу посмотретьПоделитесь с друзьями:
Похожие предложения:
Дом, Академический к/п (Ватутинки), 400 м2, 15 сот
Ольховая, Прокшино - от 16 мин на автоДом, Академический к/п
Калужское ш., 16 км + 1 км
пл. участка: 15 сот
пл. дома: 400 м2
меблирован
Спален: 4. С/узлов: 4.


Дом, Фортопс КП (Былово), 328 м2, 15 сот
Ольховая, Теплый стан - от 23 мин на автоДом, Фортопс КП
Калужское ш., 24 км + 2 км
пл. участка: 15 сот
пл. дома: 328 м2
под ключ
Спален: 5. С/узлов: 4.
Дом, Райт Вилладж КП, 333 м2, 15.97 сот
Апрелевка, Пыхтино - от 18 мин на автоДом, Райт Вилладж КП
Киевское ш., 25 км + 3 км
пл. участка: 15.97 сот
пл. дома: 333 м2
меблирован
Спален: 5. С/узлов: 4.
Дом, Чистые Ключи КП (Милюково), 330 м2, 16 сот
Саларьево, Рассказовка - от 15 мин на автоДом, Чистые Ключи КП
Киевское ш., 21 км + 5 км
пл. участка: 16 сот
пл. дома: 330 м2
меблирован
Спален: 5. С/узлов: 3.
Дом, Крекшино КП (д.Крекшино), 323 м2, 13 сот
Минское шоссе, от МКАД: 22+2 км
Крёкшино, Рассказовка - от 9 мин на автоДом, Крекшино КП
Киевское ш., 21 км + 4 км
пл. участка: 13 сот
пл. дома: 323 м2
под ключ
Спален: 4. С/узлов: 3.



















