Продажа дачи, коттеджа, дома на Киевском, Калужском шоссе — цена, описание, фото, расположение на карте.

Дом, Искра к/п

190 000 000
2 598 201 $
2 230 491 €
Новый меблированный дом из клеёного бруса, построенный и оформленный в духе современной архитектуры

Код: 134-936

Особенности объекта

Новый меблированный дом из клеёного бруса, построенный в духе современной архитектуры. В едином ансамбле площадью более 1400 кв.м – главный дом, просторная спа‑зона с большим бассейном, гостевой дом, квартира для персонала и гараж. Дом окружают террасы площадью 370 кв.м. Интерьер оформлен в актуальных дизайнерских тенденциях отделочными материалами премиального уровня. Высокие потолки, большая площадь остекления и декоративные детали из ценных пород дерева создают атмосферу простора и уюта. В планировке: гостиная со вторым светом, кинозал с экраном 135″, летняя кухня с печью, спортзал, хамам, баня, купель на террасе. Дом стоит на большом лесном участке с сохранённым и облагороженным природным ландшафтом. Участок находится в живописном охраняемом коттеджном посёлке рядом с Москвой.

Расположение

Ссылка на карту
Искра к/п (Ватутинки)
Калужское шоссе, от МКАД: 16 км, всего: 17 км
Тип застройки: обжитой к/п
Метро: Ольховая, Теплый стан, Бунинская аллея; от 12 мин на авто
Коттеджный поселок «Искра (Ватутинки)»

Дом

Общая площадь строений: 1438 м2
Год постройки дома: 2019
Количество уровней: 3
Спален: 7. С/узлов полных: 5. С/узлов неполных: 2. Комнат всего: 11.
Опции: бассейн (скиммерный, размером 15×5 м, глубина 1,2-1,8 м); баня; сауна; купель (3×3 м, глубина 1,7 м); квартира для персонала; терраса (4 террасы общей площадью около 370 кв.м); камин (двухсторонний); машиномест крытых: 4, в т.ч. в теплом гараже: 2; двухсветная гостиная, кинозал с экраном 135″.
Материал стен: брус (клеёный, толщина 20 см)
Облицовка стен: масло Osmo
Кровля: цементно-песчаная черепица (Braas)
Окна: деревянные (лиственница, фурнитура Roto)
Стадия готовности: меблирован (зона бассейна и спа-зоны - под отделку: оборудование для бассейна и приточно-вытяжной вентиляции закуплено)
1-ый этаж: холл 30 кв.м, двухсветная гостиная 70 кв.м, кухня-столовая 68 кв.м, кинозал 42 кв.м, кабинет 13 кв.м с выходом на крытую террасу 21 кв.м, хамам 16 кв.м, комната отдыха 20 кв.м, спортзал 104 кв.м с выходом на участок и с выходом в зону бассейна, санузел 4 кв.м, летняя кухня с печью 41 кв.м с выходом крытую террасу 44 кв.м и террасу 210 кв.м, котельная 11 кв.м, мини-кухня 12 кв.м, постирочная 14 кв.м с выходом на крытую террасу, гардеробная 14 кв.м, санузел 4 кв.м, гараж 78 кв.м;
зона бассейна 172 кв.м с выходом на террасу 94 кв.м;
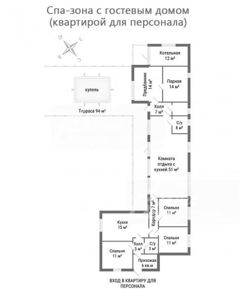
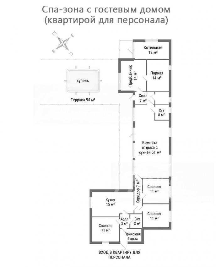
спа-зона с гостевым домом: холл 7 кв.м, бассейн 172 кв.м, предбанник 14 кв.м, парная 14 кв.м, комната отдыха с кухней 51 кв.м, коридор 7 кв.м, спальня 11 кв.м, спальня 11 кв.м, санузел 8 кв.м, котельная 12 кв.м, терраса 94 кв.м с купелью;
гостевой дом (квартира для персонала): прихожая 6 кв.м, холл 3 кв.м, кухня 15 кв.м, спальня 11 кв.м, санузел 3 кв.м
2-ой этаж: холл 40 кв.м, мастер-спальня 34 кв.м, с санузлом 16 кв.м, гардеробной 10 кв.м и выходом на балкон 18 кв.м, спальня 20 кв.м, спальня 20 кв.м, спальня 26 кв.м с выходом на тёплую веранду 21 кв.м, санузел 17 кв.м, санузел 10 кв.м
Описание внутренней отделки: пространство дома оформлено в современной эстетике. Внутренняя отделка стен сочетает дерево и краску, панно из ценных пород создают выразительные акценты в лестничном холле и кинозале. Полы выложены итальянским керамогранитом с индивидуальным подбором рисунка и массивом американского ореха. Потолки комбинированные: дерево и гипсокартон. Установлены деревянные подоконники и дорогостоящие межкомнатные двери Union скрытого монтажа (высота 2,35 м) с вставками из ценных пород дерева. На второй этаж ведет лестница из массива дуба
Инженерное обеспечение: коммуникации из сшитого полиэтилена Rehau (полностью разведены по дому). Отопление основного дома – через 2 котла Baxi на 60 кВт каждый, спа-зоны и гостевого дома – через 2 котла Baxi на 80 кВт каждый. Система горячего водоснабжения – через бойлеры косвенного нагрева Smart на 200 л. Установлена многоуровневая система фильтрации и смягчения воды, пожарная и охранная сигнализации. В зоне бассейна запланирована приточно-вытяжная система с осушителем
Мебель, оборудование: на кухне – немецкий гарнитур SEGMÜLLER с островом и встроенной техникой марки Smeg и Gaggenau (варочная панель с интегрированной вытяжкой, духовой шкаф, холодильник с лёдогенератором, пароварка, посудомойка, кофемашина, подогреватель посуды – техника напрямую подключена к водоснабжению), обеденный стол из карагача с «речкой» (пролив из цветной эпоксидной смолы, имитирующий русло реки). На летней кухне – печь, облицованная немецким бесшовным кирпичом, с мангалом и казаном, кухонный гарнитур с мраморной столешницей. В спальнях – немецкие спальные гарнитуры, современное трековое освещение с возможностью добавления света в разных зонах. В санузлах – сантехника Villeroy & Boch, большие душевые кабины и ванны из мрамора
Дополнительная информация о доме: фундамент выполнен на буронабивных сваях с монолитной лентой и плитой. Высота потолков на 1-м этаже – до 7 м, на 2-м этаже – до 5 м

Участок

Площадь участка, соток: 45
Тип участка: с деревьями
Благоустройство участка: на участке сохранён естественный лесной ландшафт, установлен автополив, вокруг дома проходит дренажная система
Статус земли: земли населённых пунктов (для садоводства)
Дополнительная информация об участке: участок расположен в середине коттеджного посёлка, граничит с лесополосой между очередями посёлка. Территория ограждена стальным 3D-штакетником высотой 2м со столбами на монолитном основании, ограждение отделано дагестанским камнем белого цвета; по левой стороне участка – прозрачный забор высотой 2 м

Коммуникации

Газ: есть (автономный; магистральный - на стадии подключения)
Э/э: есть (55 кВт)
Водопровод: центральный
Канализация: автономная (2 станции биоочистки)
Телефон: возможно подключение
Интернет: есть (проводной)
Охрана: есть

Описание инфраструктуры

Спортивная и детская площадки в поселке, полная городская инфраструктура поселка Ватутинки (школа, десткий сад, магазины, аптека и т.д.). В 2029 г в одном километре от поселка будет построена станция метро Ватутинки.

Хочу посмотреть


Поделитесь с друзьями:

Собираетесь купить дом, дачу или коттедж на Калужском или Киевском направлении? Обязательно воспользуйтесь услугами компании «Белые Ветры», старейшего оператора загородной недвижимости на Юго-западе Подмосковья!
Рейтинг@Mail.ru