Дом, Изумрудная долина к/п
Снят с реализации
Код: 560-204
Особенности объекта
На красивом участке со взрослыми деревьями и ландшафтом. Гармоничная внешняя архитектура дома. Все сделано качественно и недешево. С большим вкусом отделан и обставлен в духе английской классики (расцветка обоев, плитки, штор, обивки мебели, старинный чугунный камин, хорошо подобранные картины и гобелены и др.) - в спокойных, не надоедающих тонах. Большие оконные проемы, высокие потолки, резные деревянные порталы. В таком доме можно жить долгие годы, получая удовольствие от жизни. Дом расположен в одном из лучших на направлении и полностью обжитом коттеджном поселке, с хорошей охраной и солидными соседями.
Расположение
Ссылка на карту
Изумрудная долина к/п (Ширяево)
Калужское шоссе, от МКАД: 17 км, всего: 23 км
Киевское шоссе, от МКАД: 21 км, всего: 30 км
Тип застройки: обжитой к/п
Метро: Ольховая, Теплый стан, Рассказовка; от 21 мин на авто
Коттеджный поселок «Изумрудная Долина (Ширяево)»
Дом
Общая площадь строений: 672 м2
Количество уровней: 3
Спален: 5. С/узлов полных: 4. С/узлов неполных: 3. Комнат всего: 10.
Опции: бассейн; сауна; квартира для персонала; терраса; камин; машиномест крытых: 3, в т.ч. в теплом гараже: 3.
Материал стен: кирпич
Облицовка стен: оштукатурены и окрашены
Кровля: металлочерепица
Окна: стеклопакеты ПВХ (двухкамерные большие с раскладкой)
Стадия готовности: меблирован
1-ый этаж: крыльцо с широкой лестницей, прихожая 25 кв.м, гардеробная 9 кв.м, кухня-столовая 34 кв.м с выходом на террасу 24.6 кв.м, гостиная 64 кв.м с чугунным камином, с/узел, комната отдыха/кинозал 39 кв.м, зона бассейна 83 кв.м (скиммерный бассейн с чашей 5.8х5 м глубиной 1.6м), сауна, душевая и с/узел; из бассейна выход на просторное патио ок.100кв.м, гараж 45 кв.м с помещением под мини-технику
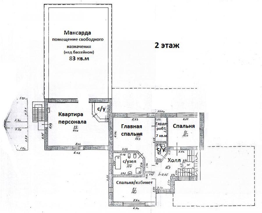
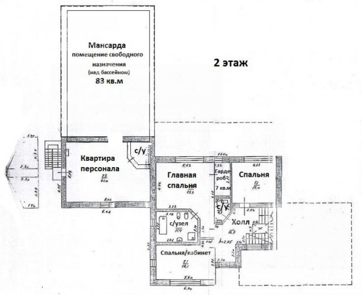
2-ой этаж: холл 17 кв.м, Главная спальня 29 кв.м с гардеробной 7 кв.м и с/узлом 11.5 кв.м, спальня 17 кв.м, с/узел 5 кв.м, кабинет/спальня 20 кв.м; квартира персонала с отдельным входом с улицы 41 кв.м с с/узлом; мансардное помещение свободного назначения (над бассейном) 83 кв.м
3-ий этаж: холл 17 кв.м, спальня 18.5 кв.м, с/узел 5.5 кв.м, постирочная, кладовая 5 кв.м, спальня 22 кв.м с с/узлом 9.5 кв.м, спальня/кабинет 20 кв.м
Описание внутренней отделки: Выполнена дорогая отделка с использованием качественных материалов: элитные обои, покраска. На полу паркетная доска, плитка с подогревом, ковролин на 2-3м этажах и лестнице. Потолки окрашены, декорированы карнизом, встроенное освещение. Двери деревянные белого цвета с резными порталами.
Инженерное обеспечение: 2 газовых котла Rinnai, бойлер Vaillant, многоступенчатая система очистки воды Ecowater. В бассейне принудительная вентиляция. Установлены датчики движения. Все коммуникации разведены по дому.
Мебель, оборудование: Дом полностью обставлен качественной импортной мебелью, карнизы, шторы, светильники и люстры. Кухонный гарнитур из светлого дерева с островом, полностью оборудован необходимой техникой: 2 двухкам. холодильника, 2 мойки и др.
Дополнительная информация о доме: Дом представлен в стиле английской классики. Фундамент - ленточный монолит, перекрытия - железобетонные плиты, высота потолков 3.29 м
Участок
Площадь участка, соток: 20
Тип участка: с деревьями и ландшафтом
Благоустройство участка: на участке множество взрослых деревьев: ели, туи, липа, яблони, декоративные кустарники, участок с небольшим рельефом, со стороны двора находится патио площадью около 100кв.м с лестницей для выхода во двор
Статус земли: земли населенных пунктов, для индивидуального жилищного строительства
Дополнительная информация об участке: ровный участок прямоугольной формы, огорожен металлическим кованым забором с кирпичными столбами на бетонной основе с фасада, по периметру прозрачный металлический забор на бетонном основании
Коммуникации
Газ: есть (магистральный)
Э/э: есть (15 кВт)
Водопровод: центральный
Канализация: централизованная
Телефон: есть (оптоволокно)
Интернет: есть (оптоволокно)
Охрана: есть (ЧОП)
Описание инфраструктуры
Инфраструктура п.Птичное и Горчаково (магазины, банк, школа, детские сады и д.р.). Рядом Русская Теннисная Академия, ресторан Весна, частная школы Vnukovo School. Отель Империал. В г.Троицке: фитнес-центр бизнес-класса с бассейном Резиденция, рестораны Заречье, Пикник на обочине, школы, детские сады, развивающие центры для детей (Центр Буракова), больницы
Элементы положит. окружения
Лесной массив расположен в 300 метрах, пруд - в 500 метрах.
Хочу посмотретьПоделитесь с друзьями:
Похожие предложения:
Дом, Белгатой ДСК (Былово), 665 м2, 20 сот
Ольховая, Прокшино - от 24 мин на автоДом, Белгатой ДСК
Калужское ш., 24 км + 2 км
пл. участка: 20 сот
пл. дома: 665 м2
меблирован
Спален: 7. С/узлов: 7.




