Продажа дачи, коттеджа, дома на Киевском, Калужском шоссе — цена, описание, фото, расположение на карте.

Дом, Капитолий к/п

41 500 000
579 058 $
498 214 €
В гостиной - панорамные окна от пола, есть выход на крытую террасу площадью 20 кв.м

Код: 448-242

Особенности объекта

Меблированный дом с привлекательной архитектурой в стиле шале. В доме — удобная функциональная планировка: предусмотрено 4 спальни, одна из них расположена на первом этаже, а общая площадь крытых террас — более 60 кв.м. Одна из террас — на втором этаже двухэтажной пристройки, в которой также запланированы баня с комнатой отдыха. В доме выполнена стильная уютная отделка уровня бизнес-класса, весь пол – тёплый, с водяным подогревом. Дом стоит на благоустроенном участке в престижной локации в 100 м от леса и в 100 в от реки. Участок находится в охраняемом обжитом коттеджном посёлке с рекреационными зонами, центральными коммуникациями, в пешей доступности – остановка общественного транспорта и инфраструктура Новой Москвы.

Расположение

Ссылка на карту
Капитолий к/п (Первомайское)
Киевское шоссе, от МКАД: 21 км, всего: 24 км
Тип застройки: обжитой к/п
Метро: Рассказовка, Филатов луг, Теплый стан; от 19 мин на авто
Коттеджный поселок «Капитолий»

Дом

Общая площадь строений: 313 м2 (пристройка - 75 кв.м, терраса - 18 кв.м, терраса на втором этаже - 41,5 кв.м)
Год постройки дома: 2017 (отделка выполнена в 2019 году)
Количество уровней: 2
Спален: 4. С/узлов: 2. Комнат всего: 6.
Опции: терраса (крытая терраса на 1-м этаже; крытая терраса на 2-м этаже); машиномест крытых: 1; пристройка white box с баней.
Материал стен: газобетон (BONOLIT, плотность D400, толщина стен - 40 см)
Облицовка стен: на 1-м этаже - термопанели толщиной 8,5 см с клинкерной плиткой; на 2-м этаже - штукатурка с покраской (на 1-м этаже: утеплитель — пенополистирол, произведённый в г. Одинцово; на 2-м этаже - утеплитель толщиной 8,5 см)
Кровля: цементно-песчаная черепица (Braas; утепление минеральной ватой 200 мм)
Окна: стеклопакеты ПВХ (двухкамерные; ламинированные с двух сторон; в гостиной - остекление от пола)
Стадия готовности: меблирован
1-ый этаж: прихожая 12 кв.м, коридор 16 кв.м, кухня-столовая 18,5 кв.м, гостиная 28 кв.м с выходом на крытую террасу 20 кв.м, спальня (кабинет) 13 кв.м, санузел с душем 4,5 кв.м, котельная 5,5 кв.м;
пристройка (баня): прихожая 9 кв.м, холл 5 кв.м, парная 4,5 кв.м, зона отдыха 36 кв.м, санузел 2,5 кв.м
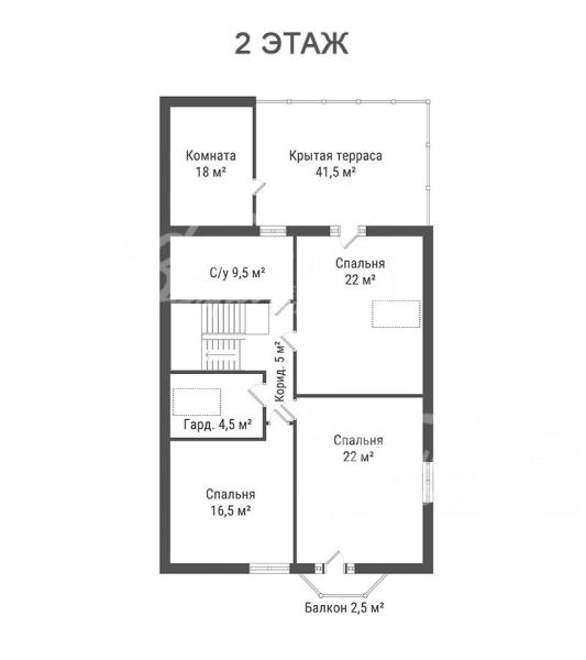
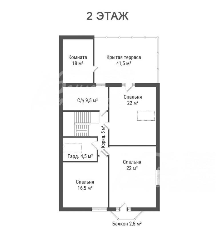
2-ой этаж: коридор 5 кв.м, спальня 22 кв.м с выходом на крытую террасу 41,5 кв.м и с выходом в пристройку, спальня 22 кв.м с выходом на балкон 2,5 кв.м, спальня 16,5 кв.м, гардеробная 4,5 кв.м, санузел с ванной 9,5 кв.м;
пристройка (баня): комната 18 кв.м, соединённая с террасой 41,5 кв.м
Описание внутренней отделки: в доме выполнена современная отделка уровня бизнес-класса. Стены на первом этаже окрашены краской Tikkurila Eurocolor, на втором этаже поклеены обои. Пол полностью выложен керамогранитом с интегрированной системой тёплого пола с водяным подогревом. Стены санузлов и части других помещений облицованы плиткой до потолка. Потолки натяжные, с системой встроенных светильников. В гостиной — панорамное остекление от пола. Входная группа — с дорогостоящей дверью с элементами стекла и художественной ковки. Межкомнатные двери — ProfilDoors из массива дерева, шпонированные и окрашенные в белый цвет. Высокие плинтусы выполнены в тон дверям, подоконники ламинированы в цвет оконных рам. Лестница на второй этаж — монолитная с отделкой ступеней керамогранитом, перила выполнены из художественной ковки
Инженерное обеспечение: система отопления реализована с помощью электрического котла Protherm Скат RAY 9 KE/14 мощностью 9 кВт — одноконтурного котла нового поколения. Горячее водоснабжение обеспечивается накопительным электрическим водонагревателем Electrolux EWH 100 Roya. Установлена система очистки воды
Мебель, оборудование: на кухне установлен гарнитур производства «Кухонный дом» со всей встроенной техникой, а также стол на 8 персон со стульями. В гостиной размещены диван и стол ручной работы из ценных пород дерева с эпоксидной смолой. Во всех спальнях — спальные гарнитуры и платяные шкафы. В санузлах установлена качественная сантехника
Дополнительные строения: двухэтажная пристройка формата «white box» общей площадью 75 кв.м, включающая баню. На втором этаже расположена комната площадью 18 кв. м, которая имеет выход на террасу второго этажа
Дополнительная информация о доме: фундамент - утепленная шведская плита с теплыми полами, межэтажные перегородки – железобетонные монолитные плиты. Высота потолков – 3 м

Участок

Площадь участка, соток: 6
Тип участка: с деревьями
Благоустройство участка: участок облагорожен, выполнен дренаж
Статус земли: земли населенных пунктов, для дачного строительства
Дополнительная информация об участке: участок расположен в престижной тихой локации, удалённой от шума дорог, — на второй линии от леса и реки: до каждого из них всего 100 метров. Территория огорожена со всех сторон забором, выполненным в едином стиле коттеджного посёлка

Коммуникации

Газ: есть (Мособлгаз)
Э/э: есть (10 кВт, Моэск)
Водопровод: центральный (ТСН Капитолий)
Канализация: централизованная (ТСН Капитолий)
Телефон: возможно подключение
Интернет: есть (оптоволокно)
Охрана: есть (охрана коттеджного посёлка)

Описание инфраструктуры

Вблизи КП Капитолий - около 300 м - поселок Первомайское, где расположена вся инфраструктура: школа, детский сад, поликлиника; на территории поселка детская и спортивная площадки, прогулочная аллея, а также будет организован собственный выход в лес и к реке с пешеходными дорожками. Пяти звездочный Отель и СПА-комплекс «Теплеево Резорт», включающий в себя: детский сад «Империя Знаний», выездной туристический клуб, спортивные и творческие кружки, подготовительные занятия к школе и тп., бизнес-центр с конференц-залами, рестораны, фитнес-центр, SPA-клуб, 25-метровый бассейн с гейзером и массажными противотоками, детский бассейн с горкой, финские сауны и турецкий хамам, арома-баня, косметология, солярий, имидж-студия, банкоматы, прачечная, химчистка. А также рыбалка, катание на лошадях, квадроциклы, пейнтбол, тир, теннисные корты, баскетбол, залы единоборств, парковка. В деревне Рогозинино, расположены Торговый центр, магазин «Перекресток», "Русская теннисная академия" (кроме тенниса: единоборства, детский клуб, студия фитнеса), ресторан «Весна», СПА-комплекс и Международная школа Внуково. Доехать до коттеджного поселка удобно как на автомобиле, так и общественным транспортом от м. Юго-западная, м. Теплый стан или м.Саларьево (автобус и маршрутка №304) - остановка автобуса находится в 300 метрах от КП Капитолий.

Хочу посмотреть


Поделитесь с друзьями:

Собираетесь купить дом, дачу или коттедж на Калужском или Киевском направлении? Обязательно воспользуйтесь услугами компании «Белые Ветры», старейшего оператора загородной недвижимости на Юго-западе Подмосковья!
Рейтинг@Mail.ru