Дом, Капитолий к/п
Код: 448-750
Особенности объекта
Возможна льготная ипотека! Новый небольшой уютный дом под ключ 135 кв.м в охраняемом коттеджном поселке Капитолий. 3 спальни, кухня-гостиная, 2 санузла. Качественное строительство, дорогостоящие материалы отделки. В доме везде теплые полы, Панарамные окна в пол. Удобно совмещенные кухня-столовая-гостиная с выходом на террасу. Центральные коммуникации. В пешей доступности школа, детский сад, остановка общественного транспорта. Московская прописка. Дом построен.
Расположение
Ссылка на карту
Капитолий к/п (Первомайское)
Киевское шоссе, от МКАД: 21 км, всего: 24 км
Тип застройки: сформированный к/п
Метро: Рассказовка, Филатов луг, Теплый стан; от 19 мин на авто
Коттеджный поселок «Капитолий»
Дом
Общая площадь строений: 135 м2
Год постройки дома: 2025
Количество уровней: 2
Спален: 3. С/узлов: 2. Комнат всего: 4.
Опции: терраса; Большие панорамные окна.
Материал стен: газобетонный блок D500, толщиной 25см + утеплитель
Облицовка стен: 1-й этаж - термопанель 8,5 см с клинкерной плиткой (утеплитель - пенополистирол, производство - Одинцово), 2-й этаж - утеплитель 8,5 см, оштукатурен, покрашен.
Кровля: цементно-песчаная черепица (Braas, утепление мин.ватой 200 мм)
Окна: стеклопакеты ПВХ (2-камерные, ламинированные с двух сторон. В гостиной остекление от пола)
Стадия готовности: под ключ
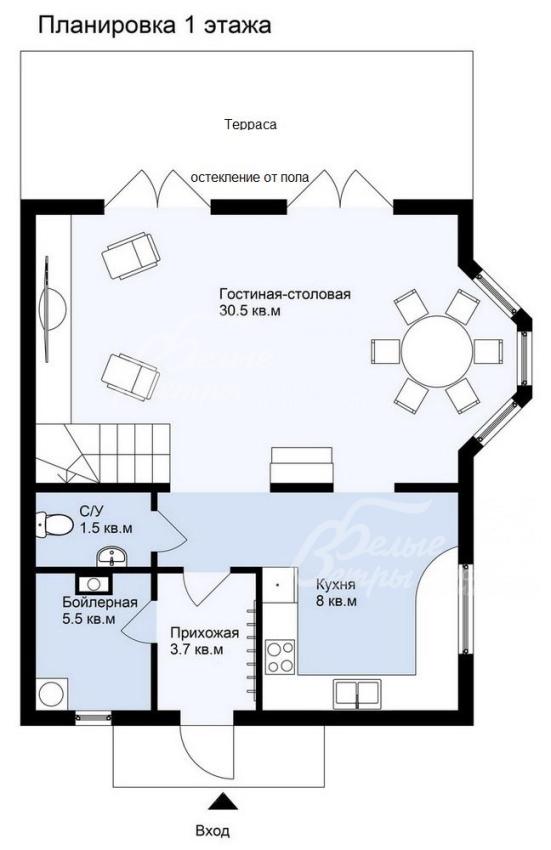
1-ый этаж: прихожая 4 кв.м, техническое помещение 5 кв.м, гостевой санузел 2 кв.м, кухня 8 кв.м, гостиная 31 кв.м.
2-ой этаж: коридор 3 кв.м, санузел 7 кв.м с ванной и душевой, спальня 15 кв.м, спальня 12 кв.м, cпальня 12 кв.м.
Описание внутренней отделки: выполнена современная отделка бизнес-класса. Весь пол - керамогранит с водяным подогревом, стены санузлов и части других помещений - плитка до потолка. В гостиной - остекление от пола. Стены окрашены краской Tikkurila eurocolor. Дорогая входная дверь со стеклом и ковкой. Натяжные потолки со встроенными светильниками. Лестница монолит, отделка ступеней керамогранит, перила художественная ковка. Установлена качественная сантехника. Теплые полы на всех этажах. Межкомнатные двери ProfilDoors,шпонированные окрашены белой краской, высокие плинтуса того же цвета. Подоконники ПВХ, ламинированные под цвет окон.
Инженерное обеспечение: в доме установлены электрический котел Protherm Скат RAY 9 KE /14, 9 кВт, одноконтурный нового поколения, накопительный электрический водонагреватель Electrolux EWH 100 Royal. Естественная вентиляция. В котельной установлена дополнительная мокрая точка для подключения стиральной машины.
Дополнительная информация о доме: дом выполнен в современном архитектурном стиле. Фундамент - утепленная шведская плита с теплыми полами, плиты перекрытия ж/б монолит.
Участок
Площадь участка, соток: 4
Тип участка: Полевой
Благоустройство участка: участок выровнен, стоянка для авто, отмостка и дорожка к дому вымощены брусчаткой
Статус земли: земли населенных пунктов для дачного строительства
Дополнительная информация об участке: ровный участок правильной формы расположен в середине поселка и огорожен забором из металлического штакетника
Коммуникации
Газ: нет (Подключение магистрального газа 2027г)
Э/э: есть (380Вт, 14кВт)
Водопровод: центральный
Канализация: централизованная
Интернет: возможно подключение
Охрана: есть (ЧОП)
Ипотека:
возможна (Возможна льготная ипотека!)
Описание инфраструктуры
Вблизи КП Капитолий - около 300 м - поселок Первомайское, где расположена вся инфраструктура: школа, детский сад, поликлиника; на территории поселка детская и спортивная площадки, прогулочная аллея, а также будет организован собственный выход в лес и к реке с пешеходными дорожками. Пяти звездочный Отель и СПА-комплекс «Теплеево Резорт», включающий в себя: детский сад «Империя Знаний», выездной туристический клуб, спортивные и творческие кружки, подготовительные занятия к школе и тп., бизнес-центр с конференц-залами, рестораны, фитнес-центр, SPA-клуб, 25-метровый бассейн с гейзером и массажными противотоками, детский бассейн с горкой, финские сауны и турецкий хамам, арома-баня, косметология, солярий, имидж-студия, банкоматы, прачечная, химчистка. А также рыбалка, катание на лошадях, квадроциклы, пейнтбол, тир, теннисные корты, баскетбол, залы единоборств, парковка. В деревне Рогозинино, расположены Торговый центр, магазин «Перекресток», "Русская теннисная академия" (кроме тенниса: единоборства, детский клуб, студия фитнеса), ресторан «Весна», СПА-комплекс и Международная школа Внуково. Доехать до коттеджного поселка удобно как на автомобиле, так и общественным транспортом от м. Юго-западная, м. Теплый стан или м.Саларьево (автобус и маршрутка №304) - остановка автобуса находится в 300 метрах от КП Капитолий.
Хочу посмотретьПоделитесь с друзьями:
Похожие предложения:
Дом, Капитолий к/п (Первомайское), 135 м2, 3.57 сот
Рассказовка, Филатов луг - от 19 мин на автоДом, Капитолий к/п
Киевское ш., 21 км + 3 км
пл. участка: 3.57 сот
пл. дома: 135 м2
под ключ
Спален: 3. С/узлов: 2.
Дом, Капитолий к/п (Первомайское), 135 м2, 4 сот
Рассказовка, Филатов луг - от 19 мин на автоДом, Капитолий к/п
Киевское ш., 21 км + 3 км
пл. участка: 4 сот
пл. дома: 135 м2
под ключ
Спален: 3. С/узлов: 2.







