Продажа дачи, коттеджа, дома на Киевском, Калужском шоссе — цена, описание, фото, расположение на карте.

Дом, Киселево

Снят с реализации

Дом 280 кв.м под отделку в Киселево

Код: 533-201

Особенности объекта

Новый дом в обжитом охраняемом коттеджном поселкена большм участке. Два уровня, большие спальни, терраса.

Расположение

Ссылка на карту
Киселево
Калужское шоссе, от МКАД: 29 км, всего: 45 км
Варшавское шоссе, от МКАД: 30 км, всего: 31 км
Тип застройки: обжитой к/п
Метро: Ольховая, Теплый стан, Бунинская аллея; от 38 мин на авто

Дом

Общая площадь строений: 280 м2
Количество уровней: 2
Спален: 5. С/узлов: 2. Комнат всего: 6.
Опции: терраса; камин.
Материал стен: пеноблок
Облицовка стен: штукатурка
Кровля: металлочерепица
Окна: стеклопакеты ПВХ
Стадия готовности: под отделку
1-ый этаж: крыльцо-веранда 35 кв.м, прихожая 7.5 кв.м, холл 14 кв.м, гостиная 36 кв.м с выходом на террасу, кухня-столовая 24 кв.м, с/узел 11 кв.м, кабинет/cпальня 18 кв.м, котельная 10 кв.м
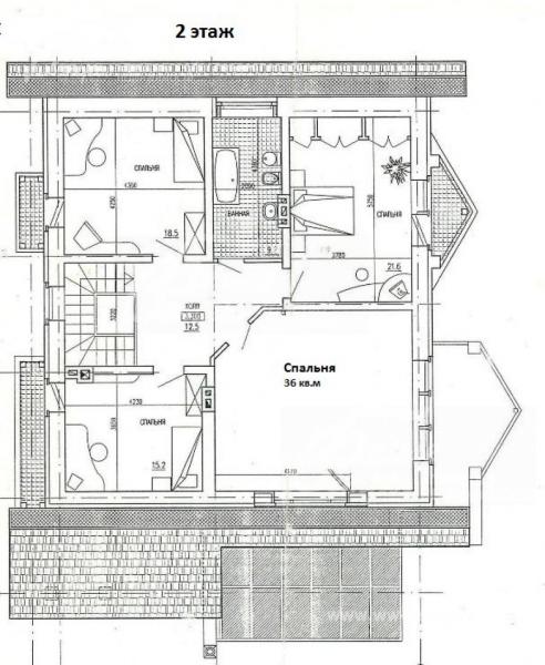
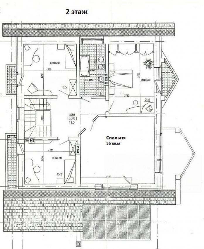
2-ой этаж: спальня 15 кв.м с балконом, спальня 18.5 кв.м с балконом, ванная комната 9 кв.м, спальня 21.5 кв.м с балконом, спальня 36 кв.м
Описание внутренней отделки: стены оштукатурены, сделана черновая стяжка пола, лестничный марш железобетонный
Инженерное обеспечение: вентиляция естественная приточно-вытяжная, установлен счетчик электричества
Дополнительная информация о доме: Фундамент дома ленточный со сваями, сверху плита; перекрытия монолитные, высота потолков 3 метра.

Участок

Площадь участка, соток: 10
Тип участка: без деревьев
Статус земли: земли поселений, для ИЖС
Дополнительная информация об участке: ровный участок прямоугольной формы, расположен в центре поселка, огорожен металлопрофилем по периметру

Коммуникации

Газ: есть (в стадии подключения, входит в стоимость)
Э/э: есть (8 кВт)
Водопровод: индивид. скважина
Канализация: автономная
Охрана: есть

Описание инфраструктуры

Инфраструктура д.Кленово.

Элементы положит. окружения

Лесной массив расположен в 150 метрах от поселка.

Хочу посмотреть


Поделитесь с друзьями:

Собираетесь купить дом, дачу или коттедж на Калужском или Киевском направлении? Обязательно воспользуйтесь услугами компании «Белые Ветры», старейшего оператора загородной недвижимости на Юго-западе Подмосковья!
Рейтинг@Mail.ru