Дом, Клубничные поля к/п
Код: 272-904
Особенности объекта
Оригинальный, качественно построенный кирпичный дом в обжитом охраняемом коттеджном поселке с центральными коммуникациями. Снаружи полностью облицован камнем, внутри подготовлен под чистовую отделку. На участке березовая аллея, парковочная площадка на 4 м/м. Остановка общественного транспорта до м. Теплый Стан в 100м от поселка.
Примечание. Возможен обмен с доплатой на: ликвидная
Расположение
Ссылка на карту
Клубничные поля к/п (Анкудиново)
Боровское шоссе, от МКАД: 21 км, всего: 21 км
Киевское шоссе, от МКАД: 21 км, всего: 23 км
Тип застройки: сформированный к/п
Метро: Кокошкино, Рассказовка, Саларьево; от 9 мин на авто
Коттеджный поселок «Клубничные Поля»
Дом
Общая площадь строений: 372 м2
Год постройки дома: 2014
Количество уровней: 3
Спален: 4. С/узлов: 3. Комнат всего: 7.
Опции: терраса; камин; второй свет, библиотека/зимний сад, тренажерный зал, парковка на 4 машины.
Материал стен: кирпич + утеплитель
Облицовка стен: облицовочный декоративный камень
Кровля: мягкая
Окна: стеклопакеты ПВХ (2-х камерные ПВХ, на 3 этаже мансардные окна Velux)
Стадия готовности: под чистовую отделку
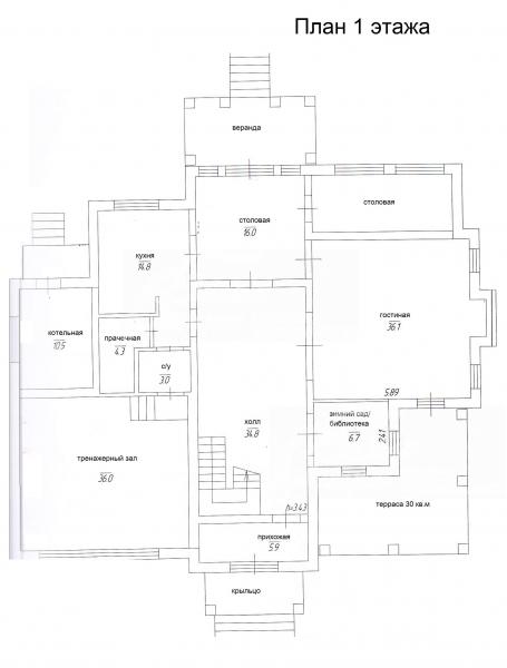
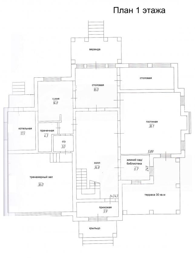
1-ый этаж: крыльцо, прихожая 5.9 кв.м, холл 34.8 кв.м, библиотека 6.7 кв.м, терраса 30 кв.м, гостиная со вторым светом 36.1 кв.м, столовая 16 кв.м, веранда, столовая 16+11.3 кв.м, кухня 14.8 кв.м, постирочная 4.3 кв.м, с/у 3 кв.м, котельная 10.5 кв.м, тренажерный зал 36 кв.м
2-ой этаж: холл 28.8 кв.м с выходом на балкон 1.7 кв.м, главная спальня 22.7 кв.м с гардеробной 2.3 кв.м, балконом и с с/у 9.7 кв.м, с/у 2.1 кв.м, спальня 11.4 кв.м, спальня 10.1 кв.м с гардеробной 2.5 кв.м спальня 10.9 кв.м, с/у 4.6 кв.м
3-ий этаж: гардеробная 10.1 кв.м, помещение свободного назначения 61.9 кв.м, (потолки от 1.8 м до 4.5 м)
Описание внутренней отделки: стены оштукатурены, выполнена черновая стяжка, на 1 этаже уложен теплый пол: в столовой, в кухне и в гостиной. С 1 на 2 этаж установлена монолитная лестница, со 2 на 3 этаж временная.
Инженерное обеспечение: коммуникации разведены по дому. Трубы - армированный металлопластик, радиаторы алюминиевые производства Италии (Globul). Установлены откатные ворота на электроприводе.
Дополнительная информация о доме: Межэтажные перекрытия для 1 и 2 этажа - железобетонные, для мансардного этажа - деревянные. Высота потолков 1 этажа 3.4 метра, 2 этажа 3 метра, 3 этажа от 1.8 до 4.5 метра. Разработан дизайн - проект помещений с подбором материалов, визуализацией и сметами.
Участок
Площадь участка, соток: 15
Тип участка: лесной (с взрослыми березами)
Благоустройство участка: перед домом парковка на 3-4 м/м, выполнен дренаж участка, организован газон, разработан ландшафтный дизайн (есть видеоролик).
Статус земли: ИЖС (Московская прописка)
Дополнительная информация об участке: участок расположен на возвышенности. По периметру установлено ограждение из металлопрофиля на кирпичных столбах и фундаменте
Коммуникации
Газ: есть (магистральный)
Э/э: есть (15 кВт)
Водопровод: центральный
Канализация: централизованная
Телефон: возможно подключение
Интернет: есть (оптиковолокно (провайдер Optik.net.))
Охрана: есть (КПП, строгая пропускная система)
Описание инфраструктуры
В поселке детская и спортивная площадки. В пешей доступности магазин «Перекрёсток». Через дорогу расположен загородный клуб Александр", в 5 км "Империал-Отель". Современная школа, а так же ясли и детские сады в Марушкино.
Элементы положит. окружения
неподалеку река Незнайка и Крекшинские пруды, рядом торговый центр, в 5 минутах зона отдыха "Александр" с рестораном, зоопарком, бильярдом, сауной.
Хочу посмотретьПоделитесь с друзьями:
Похожие предложения:
Дом, Власово, 298.2 м2, 12.1 сот
Минское шоссе, от МКАД: 22+5 км
Крёкшино, Пыхтино - от 16 мин пешкомДом, Власово
Киевское ш., 21 км + 2 км
пл. участка: 12.1 сот
пл. дома: 298.2 м2
коробка
Спален: 5. С/узлов: 5.



