Продажа дачи, коттеджа, дома на Киевском, Калужском шоссе — цена, описание, фото, расположение на карте.

Дом, Красная пахра кп

Снят с реализации

Дом 253 кв.м под ключ в обжитом поселке Красная пахра

Код: 708-702

Особенности объекта

Кирпичный дом на прилесном ухоженном участке в обжитом коттеджном поселке Красная Пахра. Отличная функциональная планировка, есть спальня на первом этаже, хорошо продуманная инженерия. Высокие потолки. На участке растут вековые деревья, розы вдоль дорожек. Есть свой выход в лес. Низкие поселковые платежи. Тихое и спокойное место. 

Расположение

Ссылка на карту
Красная пахра кп (Былово)
Калужское шоссе, от МКАД: 25 км, всего: 35 км
Тип застройки: обжитой к/п
Метро: Ольховая, Теплый стан; от 27 мин на авто

Дом

Общая площадь строений: 253 м2
Количество уровней: 3
Спален: 5. С/узлов: 3. Комнат всего: 8.
Опции: баня (есть фундамент 6х5 м); камин; холодный подвал; машиномест крытых: 1, в т.ч. в теплом гараже: 1; выход в лес.
Материал стен: кирпич (утеплитель мин.вата 10 см)
Облицовка стен: облицовочный кирпич
Кровля: мягкая
Окна: стеклопакеты деревянные (2-камерные)
Стадия готовности: под ключ
Цоколь: погреб 5 кв.м.
1-ый этаж: просторный холл 17 кв.м, спальня-1 11 кв.м, гостевой санузел 2 кв.м, санузел 5 кв.м, просторная гостиная 39 кв.м с панорамным видом на лес, кухня-столовая 16 кв.м, гараж 27 кв.м с отоплением, котельная 8 кв.м, тамбур второго входа с участка 2 кв.м.
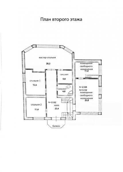
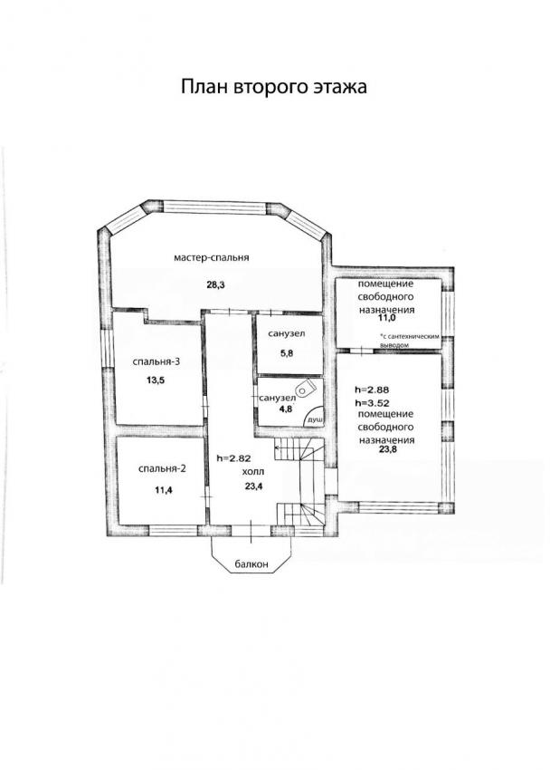
2-ой этаж: просторный холл 23 кв.м с выходом на балкон, спальня-2 11 кв.м, спальня-3 14 кв.м, полный санузел 5 кв.м, мастер-спальня 28 кв.м с отдельным полным санузлом 6 кв.м, надгаражное помещение-1 24 кв.м, надгаражное помещение с поведёнными сантехническими коммуникациями-2 11 кв.м.
Описание внутренней отделки: выполнена частично под ключ. Стены оштукатурены и покрашены, в спальнях поклеены обои. На полу в прихожей, санузлах и кухне - плитка; в гостиной и спальнях - ламинат. Лестничный марш деревянный, массив сосны, стандартной ширины. Покрашенный отштукатуренный потолок. Установлена вся необходимая сантехника. Все коммуникации разведены. Отопление - радиаторы стальные панельные. Двери межкомнатные из массива вишни (Россия). Подоконники - покрашенный массив сосны.
Инженерное обеспечение: в доме установлены газовый котел Viessmann Vitopend 30 кВт двухконтурный, электрический котел ЭВАН WARMOS 24 кВт одноконтурный (резервный) и накопительный косвенный водонагреватель Drazice OKC 200 литров + накопитель 100 л. Комплексные системы очистки воды из скважины WiseWater. Естественная вентиляция.
Дополнительные строения: есть фундамент бани 6х5 м, жб бетонный ленточный.
Дополнительная информация о доме: дом выполнен в классическом архитектурном стиле. Фундамент ленточный, глубиной 2 метра с перекрестием. На фундамент и межэтажные перекрытия уложены полые плиты 25 см и залиты бетоном с щебнем 10 см. Высота потолков: погреб - 2.4 метра, первый этаж - 3 метра, гараж - 2.5 м, второй этаж 2.8 метра, надгаражное помещение от 2.9 м до 3.5 м.

Участок

Площадь участка, соток: 12
Тип участка: прилесной
Благоустройство участка: участок ухоженный, имеет большое количество высаженных роз вдоль дорожек, есть несколько вековых берез. Собственный выход в лес. Организована дренажная система по правой стороне участка.
Статус земли: земли населенных пунктов
Дополнительная информация об участке: участок правильной формы граничит с лесом и огорожен забором из доски высотой 1.8 метра. Задняя линяя участка - бетонный забор.

Коммуникации

Газ: есть (магистральный)
Э/э: есть (15 кВт)
Водопровод: индивид. скважина
Канализация: централизованная
Интернет: есть (оптоволокно)
Охрана: есть (охраняемый, КПП)

Хочу посмотреть


Поделитесь с друзьями:

Собираетесь купить дом, дачу или коттедж на Калужском или Киевском направлении? Обязательно воспользуйтесь услугами компании «Белые Ветры», старейшего оператора загородной недвижимости на Юго-западе Подмосковья!
Рейтинг@Mail.ru