Продажа дачи, коттеджа, дома на Киевском, Калужском шоссе — цена, описание, фото, расположение на карте.

Дом, Крекшино к/п

Снят с реализации

Код: 220-219

Особенности объекта

Новый, отлично спланированный кирпичный дом, под финишную отделку, с прекрасным панорамным видом из окон. 4 уровня, гостиная с эркером, кухня-столовая, кабинет, 7 комнат, зона отдыха с бильярдной, тренажерным залом и сауной, 5 с/узлов, гардеробные, балкон. Лесной массив, пруды.

Расположение

Ссылка на карту
Крекшино КП (д.Крекшино)
Киевское шоссе, от МКАД: 21 км, всего: 25 км
Минское шоссе, от МКАД: 22 км, всего: 24 км
Тип застройки: сформированный к/п
Метро: Крёкшино, Рассказовка, Саларьево; от 9 мин на авто
Коттеджный поселок «Крекшино»

Дом

Общая площадь строений: 664 м2
Год постройки дома: 2009
Количество уровней: 4
Спален: 5. С/узлов: 5. Комнат всего: 12.
Опции: сауна; терраса.
Материал стен: кирпич
Облицовка стен: оштукатурен и покрашен
Кровля: металлочерепица
Окна: стеклопакеты ПВХ
Стадия готовности: под финишную отделку
Цоколь: бильярдная 51 кв.м, тренажерный зал 56 кв.м, комната отдыха 36 кв.м, сауна 6 кв.м, с/узел 5.5 кв.м, кладовая 15 кв.м, постирочная 12 кв.м
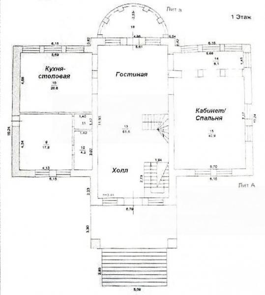
1-ый этаж: патио 3 кв.м, гостиная 62 кв.м, кухня—столовая 27 кв.м, спальня 18 кв.м с гардеробной и с/узлом, кабинет-спальня 41 кв.м, с/узел 6 кв.м
2-ой этаж: холл 53.5 кв.м, гостевая спальня 26 кв.м с выходом на балкон, 2 зеркально расположенных спальни по 29 кв.м с собственными с/узлами по 6 кв.м и гардеробными по 5 кв.м, с балконами по 12 кв.м
3-ий этаж: холл 78 кв.м, жилые комнаты 17, 16 и 36 кв.м
Описание внутренней отделки: стены оштукатурены; сделана черновая стяжка полов; лестничный марш бетонный
Инженерное обеспечение: установлен котел Vaillant(75 кВт), счетчики воды и электричества
Дополнительная информация о доме: классический архитектурный стиль

Участок

Площадь участка, соток: 14.54
Тип участка: без деревьев
Благоустройство участка: сделан дренаж участка
Статус земли: земли населенных пунктов
Дополнительная информация об участке: участок прямоугольный, расположен в центре поселка, огорожен металлическим забором по периметру

Коммуникации

Газ: есть (магистральный)
Э/э: есть (15 кВт)
Водопровод: центральный
Канализация: централизованная
Телефон: возможно подключение (оптоволокно)
Интернет: есть (телевидение: ТВ-антенна)
Охрана: есть (ЧОП)

Описание инфраструктуры

Удобная транспортная доступность по 3-м шоссе: Минское шоссе, вт.ч. Платная трасса - до Москва-Сити 25 мин, Киевское шоссе и Боровское шоссе. В поселке есть собственная лесопарковая зона отдыха на 5Га, гостевая парковка, несколько детских игровых площадок, многофункциональная спортивная площадка для баскетбола, волейбола, мини-футбола. На территории поселка находится Храм Воздвижения Креста Господня, где проходят службы и занятия для детей в Воскресной школе. В шаговой доступности располагается фермерский рынок, продуктовые магазины, аптеки. Рядом есть несколько частных и муниципальных школ и детских садов. Частная школа и детский сад «МЭШ» Московская экономическая школа в 7 минутах на машине (5.9км), Гимназия Святителя Василия Великого в 8 минутах на машине (6.1 км.) ГБОУ школа № 2057 в 12 мин на машине, Премьерский лицей в 20мин пешком (1,9км). Многофункциональный спортивный комплекс для занятий гимнастикой, акробатикой, спортивными танцами, плаванием «Жаворонки» всего в 6 минут на машине (3.6 км.), загородный клуб «Усадьба Крёкшино» менее чем в 700 метрах от КП. В 5 минутах езды находится магазин Перекресток. В 1 км - Загородный клуб Александр с ресторанами, барами, банями, озером с пляжем, зоопарком, фермой, салоном красоты и пр. Также доступна инфраструктура пос.Крекшино, Марушкино, г.Апрелевка (в 5 мин езды), г.Одинцово и Ново-Переделкино (в 10 км). В шаговой доступности остановка общественного транспорта – автобусы и маршрутные такси до ж/д станции Крекшино, м.Саларьево, м.Румянцево, м.Ново-Переделкино, г.Одинцово, г.Троицк.

Элементы положит. окружения

В 150 м расположен лесной массив, поблизости пруды.

Хочу посмотреть


Поделитесь с друзьями:

Собираетесь купить дом, дачу или коттедж на Калужском или Киевском направлении? Обязательно воспользуйтесь услугами компании «Белые Ветры», старейшего оператора загородной недвижимости на Юго-западе Подмосковья!
Рейтинг@Mail.ru