Продажа дачи, коттеджа, дома на Киевском, Калужском шоссе — цена, описание, фото, расположение на карте.

Дом, Лесные поляны КП

Снят с реализации

Дом в коттеджном поселке Лесная поляна, Калужское шоссе, 2 км от МКАД

Код: 111-101

Особенности объекта

Коттедж класса de-luxe всего в 2-х км от МКАД по Калужскому шоссе, в обжитом охраняемом КП. Коттедж можно рассматривать как аналог элитной квартире в Москве. Дом разработан известными архитектором и декоратором. Видеоролик. В основе концепции интерьера лежит образ загородной виллы. Дом разделен на 4 зоны: СПА-зона в цоколе с бассейном и хамамом, 1-ый этаж гостевой, «детский» этаж и этаж для хозяев.
Эксклюзивная итальянская мебель, итальянские дубовые двери с эффектом старения и витражами, дорогое высококачественное оборудование (лифт, центральный пылесос, центральное кондиционирование, охранная система), эксклюзивная отделка (камин, плитка из травертина, подоконники из мрамора,  светильники из бронзы и многое др.).

Примечание. Возможен обмен с доплатой на: квартиру в Москве

Расположение

Ссылка на карту
Лесные поляны КП (Газопровод)
Калужское шоссе, от МКАД: 2 км, всего: 2 км
Тип застройки: обжитой к/п
Метро: Ольховая, Теплый стан, Бульвар Дмитрия Донского; от 6 мин на авто

Дом

Общая площадь строений: 835 м2
Количество уровней: 4
Спален: 7. С/узлов: 6. Комнат всего: 9.
Опции: бассейн; сауна; купель; квартира для персонала; камин; машиномест крытых: 4, в т.ч. в теплом гараже: 4; хамам.
Материал стен: кирпич
Облицовка стен: оштукатурен, покрашен, отделан диким камнем
Кровля: металлочерепица
Окна: стеклопакеты деревянные
Стадия готовности: меблирован
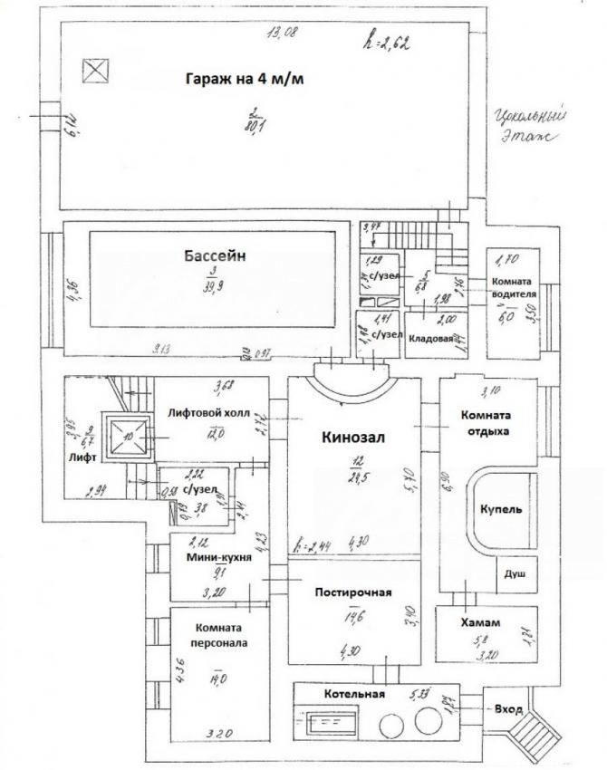
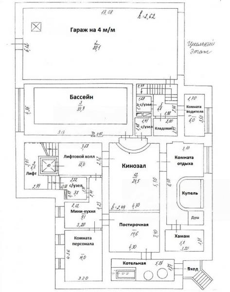
Цоколь: лифтовой холл 12 кв.м, кинозал 24.5 кв.м, бассейн 40 кв.м (чаша 8х3.5м с противотоком и гидромассажем), с/узел, СПА-зона: комната отдыха с купелью и душевой, хамам; блок персонала: мини-кухня 9 кв.м, спальня 14 кв.м, с/узел 4 кв.м, постирочная 14.6 кв.м, бойлерная с отдельным входом с улицы; гараж на 4 м/м 80 кв.м, комната водителя 6 кв.м с с/узлом, кладовая
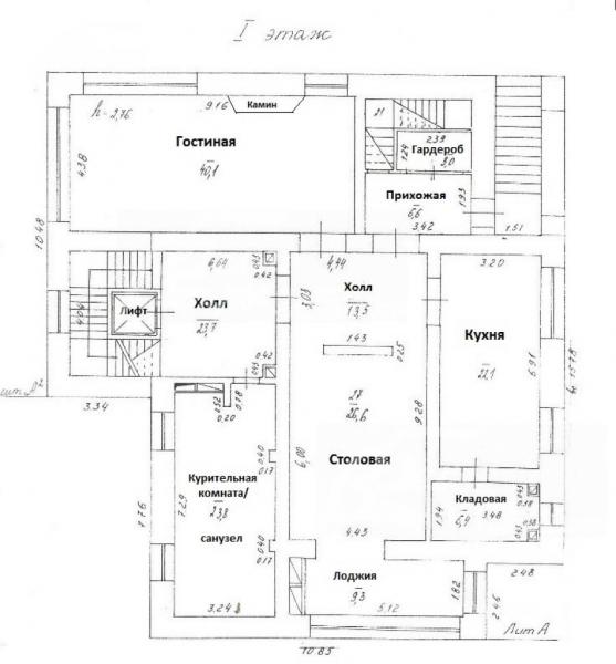
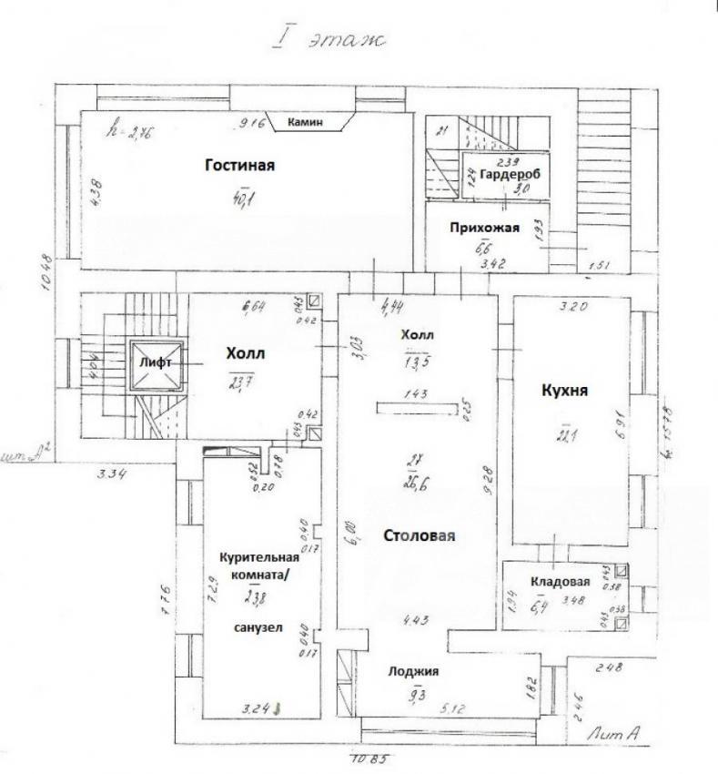
1-ый этаж: прихожая 7 кв.м, гардеробная 5 кв.м, холл 13.5 кв.м, столовая 27 кв.м с выходом на лоджию 9 кв.м, кухня 22 кв.м с кладовой 6 кв.м, гостиная с камином 40 кв.м, курительная комната/гостевой санузел 24 кв.м, лифтовой холл 24 кв.м
2-ой этаж: холл 24 кв.м, детский этаж: игровой зал 42 кв.м с выходом на лоджию 9.5 кв.м, спальня 20 кв.м с гардеробной 5 кв.м, спальня 19 кв.м с гардеробной, детский общий с/узел с ванной 9.5 кв.м, спальня 22.5 кв.м с гардеробной 5 кв.м, спальня 16 кв.м со своими гардеробной и с/узлом
3-ий этаж: холл 15 кв.м, спальня хозяев 29 кв.м с будуаром 10 кв.м, ванной комнатой 20 кв.м (с ванной, душевой, с/узлом) и гардеробной 15 кв.м, кабинет 47.5 кв.м с камином и выходом на лоджию 20 кв.м, где оборудована тренажерная, комната отдыха 16 кв.м, балкон 9 кв.м
Описание внутренней отделки: в отделке использовались дорогие эксклюзивные материалы: дубовые итальянские двери с витражами, камин, подоконники из мрамора, плитка, кухонная столешница из травертина, светильники и камин в кабинете из бронзы, на полу паркет и плитка из натурального камня. Лестница отделана дубом. Бронзовые перила.
Инженерное обеспечение: котел Buderus (Германия), импортная система фильтрации и очистки воды, центральное кондиционирование и вентиляция, сигнализация, видеонаблюдение, центральный пылесос, гидравлический немецкий лифт
Мебель, оборудование: Итальянская мебель Baxter, Imart, Bakokko, Cantoni, техника Miele, Sub-zerо.
Дополнительная информация о доме: Фундамент дома - монолитный, монолитные перекрытия, высота потолков - не менее 3х метров. Интерьер дома разработан известным архитектором Сройковым А. и декоратором Егоровой Н.

Участок

Площадь участка, соток: 12
Тип участка: с высаженными деревьями
Благоустройство участка: на участке высажены сосны-крупномеры, организован газон, сделан дренаж
Статус земли: Земли поселений для дачного строительства
Дополнительная информация об участке: Участок правильной формы, расположен на центральном проезде в глубине поселка, огорожен высоким забором,окрашенным в тон дома.

Коммуникации

Газ: есть
Э/э: есть (40 кВт)
Водопровод: центральный (+скважина)
Канализация: централизованная
Телефон: есть
Интернет: есть
Охрана: есть (КПП при въезде)

Описание инфраструктуры

В поселке свой магазин, небольшая церковь, детская и спортивная площадки. Школа и детский сад в 100 метрах от дома. В 300 метрах городская инфраструктура (ЖК Испанские кварталы). При въезде в поселок фитнес-клуб в бизнес центре К-2. В 2 км до ТЦ Мега, Ашан, Икеа.

Элементы положит. окружения

В 200 метрах от участка - лесной массив, солидные соседи.

Хочу посмотреть


Поделитесь с друзьями:

Собираетесь купить дом, дачу или коттедж на Калужском или Киевском направлении? Обязательно воспользуйтесь услугами компании «Белые Ветры», старейшего оператора загородной недвижимости на Юго-западе Подмосковья!
Рейтинг@Mail.ru