Продажа дачи, коттеджа, дома на Киевском, Калужском шоссе — цена, описание, фото, расположение на карте.

Дом, Лесное Озеро к/п

Снят с реализации

Код: 131-842

Особенности объекта

Небольшой, но очень уютный дом из клееного профилированного бруса, полностью готов для проживания. Чудесный участок с ландшафтным дизайном, утопающий в зелени.  Высококачественные экологические материалы строительства, дизайнерский проект. Дом расположен в обжитом поселке со своим озером в глубине лесного массива

Расположение

Ссылка на карту
Лесное Озеро к/п (Кузенёво)
Калужское шоссе, от МКАД: 25 км, всего: 29 км
Тип застройки: обжитой к/п
Метро: Ольховая, Теплый стан, Подольск; от 29 мин на авто
Коттеджный поселок «Лесное Озеро (Кузенево)»

Дом

Общая площадь строений: 203 м2
Количество уровней: 2
Спален: 4. С/узлов: 2. Комнат всего: 6.
Опции: терраса; камин.
Материал стен: клееный профилированный брус
Кровля: мягкая (Тегола)
Окна: стеклопакеты деревянные
Стадия готовности: меблирован
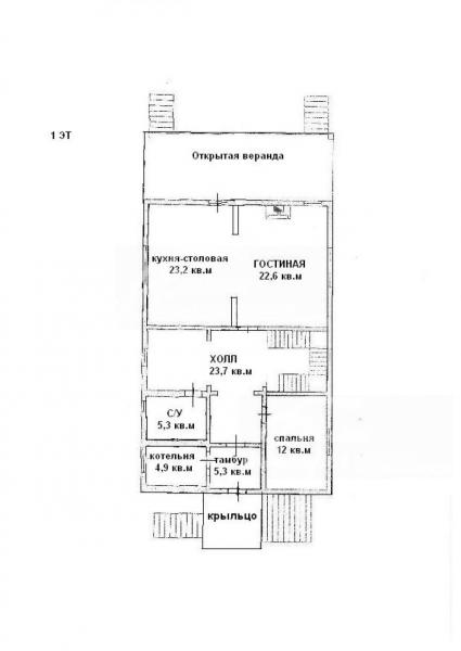
1-ый этаж: крыльцо, тамбур 5 кв.м, котельная 5 кв.м, холл 23 кв.м, спальня 12 кв.м, с/узел 5 кв.м, гостиная с камином 22.6 кв.м, кухня-столовая 23 кв.м с выходом на открытую веранду
2-ой этаж: холл 8 кв.м, общий с/узел 7.6 кв.м, две спальни 18.5 кв.м и 18 кв.м, спальня 23 кв.м с выходом в зимний сад 24 кв.м
Описание внутренней отделки: Современная дизайнерская отделка с использованием экологических материалов. Клееный брус, пропитанный водными лаками, в холле 1-ого этажа и гостиной стены отделаны искусственным камнем. Полы: кафель с водяным подогревом, половая доска (лиственница), на верандах палубная лиственница. Дубовый лестничный марш шириной 0,9 м. Стеклянные витражи - мозаика
Инженерное обеспечение: установлены газовый котёл и бойлер на 300л Viessmann; многоступенчатая система очистки воды, естественная приточная-вытяжная система вентиляции
Мебель, оборудование: Дом полностью укомплектован мебелью. Итальянская кухня со встроенной техникой Bosch.
Дополнительные строения: На участке фундамент под баню 5Х6 и площадка под беседку.
Дополнительная информация о доме: Фундамент - ленточный ж/б монолит, перекрытия из ценных пород дерева. Высота потолков 2.8 м

Участок

Площадь участка, соток: 18.5
Тип участка: парковый с ландшафтом
Благоустройство участка: На участке выполнен ландшафтный дизайн, возле дома 3 вековые липы и 3 вековые ивы, также высажены декоративные деревья: туи, различные виды сосен, каштаны, клены, яблони, вишни, декоративные кустарники. Пруд с лилиями и гиацинтами. Дорожки из дикого камня, газон, сделано уличное освещение. Вокруг дома и участка дренаж.
Статус земли: земли поселений для ИЖС

Коммуникации

Газ: есть
Э/э: есть
Водопровод: центральный
Канализация: централизованная
Телефон: есть (МГТС)
Интернет: есть (оптиковолокно, спутниковое ТВ)
Охрана: есть

Описание инфраструктуры

В коттеджном поселке: собственное большое озеро с зоной отдыха вокруг него: детские и универсальная спортивные площадки

Элементы положит. окружения

Поселок с четырёх сторон окружён лесом (преимущественно хвойным), в посёлке природное озеро с общественной зоной отдыха.

Хочу посмотреть


Поделитесь с друзьями:

Собираетесь купить дом, дачу или коттедж на Калужском или Киевском направлении? Обязательно воспользуйтесь услугами компании «Белые Ветры», старейшего оператора загородной недвижимости на Юго-западе Подмосковья!
Рейтинг@Mail.ru