Продажа дачи, коттеджа, дома на Киевском, Калужском шоссе — цена, описание, фото, расположение на карте.

Дом, Лесной ручей к/п

Снят с реализации

Особняк-резиденция премиум-класса 1156 кв.м

Код: 144-204

Особенности объекта

Особняк-резиденция премиум-класса. Состоит из трех строений: основной жилой дом, здание бассейна, теннисный корт. Авторская архитектура и дизайн. Экслюзивные материалы, оборудование и мебель. Камерный охраняемый коттеджный поселок. Уникальный по красоте участок с вековыми деревьями, прудом и ландшафтным дизайном.

Расположение

Ссылка на карту
Лесной ручей к/п (Пучково)
Калужское шоссе, от МКАД: 17 км, всего: 20 км
Киевское шоссе, от МКАД: 21 км, всего: 33 км
Тип застройки: обжитой к/п
Метро: Ольховая, Теплый стан, Прокшино; от 26 мин на авто

Дом

Общая площадь строений: 1156 м2 (в т.ч.: основной дом 642 кв.м, здание бассейна 514 кв.м)
Количество уровней: 3
Спален: 9. С/узлов: 11. Комнат всего: 17.
Опции: бассейн; сауна; купель; квартира для персонала; терраса; камин; машиномест крытых: 2, в т.ч. в теплом гараже: 2; хамам, кинозал, спортзал, теннисный корт.
Материал стен: кирпич
Облицовка стен: клинкерный кирпич
Кровля: металлочерепица
Окна: стеклопакеты деревянные (двухкамерные)
Стадия готовности: меблирован (мебель и ковры эксклюзивного качества, индивидуальный заказ, единый авторский стиль)
Цоколь: Основной дом: гараж 37 кв.м; с/узел; СПА зона: сауна с купелью, душевая, комната отдыха; спортзал 25 кв.м; кинозал 19 кв.м; котельная 7 кв.м, дополнительная кухня 21 кв.м, постирочная 7 кв.м; гладильная/хозяйственная 16 кв.м; кабинет 13 кв.м с с/узлом.
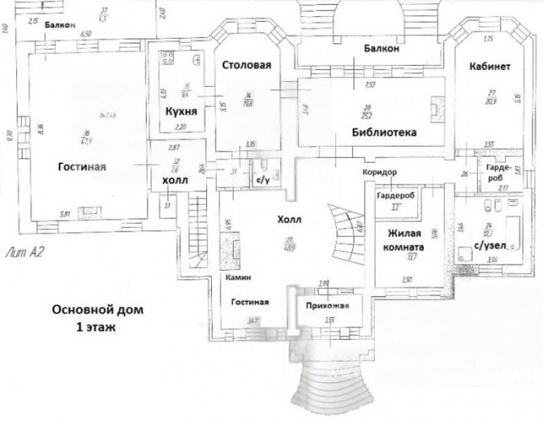
1-ый этаж: Основной дом: тамбур-прихожая, холл-гостиная с камином 49 кв.м, гостевой с/узел, кухня-столовая 10+20 кв.м, библиотека/зал 25 кв.м с камином, Главная гостиная 48 кв.м, кабинет 21 кв.м, гостевая спальня 14 кв.м с с/узлом 12 кв.м, 2 гардеробные по 4 кв.м.
2-ой этаж: Основной дом: холл-галерея 17.5 кв.м, мужская спальня 27 кв.м со своей ванной комнатой 8 кв.м и балконом, женская спальня 32 кв.м со своей ванной комнатой 14 кв.м, гардеробной 12 кв.м и балконом, спальня 22 кв.м с с/узлом 8 кв.м и расположенным над спальней кабинетом/комнатой отдыха 27 кв.м, спальня 20 кв.м с с/узлом 4 кв.м
Описание внутренней отделки: отделка класса люкс выполнена по авторскому дизайну
Инженерное обеспечение: В основном доме установлены 2 спаренных котла Slant Fin (пр-во США) 76 кВт и 90 кВт + бойлер Buderus на 500 л; в здании бассейна - котел Buderus на 240 кВт и бойлер на 400 л. В обоих строениях многоступенчатая система очистки воды, центральное кондиционирование. Система видеонаблюдения по всему участку с выводом на центральный пульт
Мебель, оборудование: Дом полностью оборудован, обставлен мебелью, аксессуарами. Авторские ковры, подушки расшиты оригинальными орнаментами. В гостиной - шахматный стол из мрамора. Мебель в том числе итальянских фирм Cappellini и Francesco Molon. Кинозал оборудован системами от B&W, ONKYO Dolby Digital DTS. Кухня оборудована шкафами и буфетами Luciano Zonta и Colombostile и техникой ведущих мировых производителей Miele, Siemens.
Дополнительные строения: Здание бассейна 514 кв.м: чаша бассейна 20м*8м; зона отдыха вокруг чаши 104 кв.м; вспомогательные помещения: кухня 7 кв.м, раздевалки с душевыми и санузлами, комната отдыха на антресольном этаже 19 кв.м, хамам. В цокольном этаже: бар с каминным залом 40 кв.м, кухня, санузел.
Также в здании с другого входа: квартира персонала; помещение охраны с пунктом видеонаблюдения за всем объектом, техпомещения.
Теннисный корт с качественным покрытием и с раздевалкой.
Дополнительная информация о доме: Дом построен по авторскому проекту архитектурного бюро VIP HOUSE, дизайнер интерьеров Марина Дьяченко. Присутствуют несколько стилей. Так, например, во входном холле и гостиной создан дух средневекового замка, роскошная гостиная - в византийском стиле, столовая выполнена в прованском стиле, в женской спальне - французская роскошь барокко времен расцвета монархии, еще одна спальня - в ярком марокканском стиле, в некоторых помещениях - стили 19 века и другие.

Участок

Площадь участка, соток: 110
Тип участка: с лесными деревьями
Благоустройство участка: проведен профессиональный ландшафтный дизайн: декоративный пруд, выложены дорожки, организовано освещение участков; сделан дренаж
Статус земли: ИЖС
Дополнительная информация об участке: состоит из трех участков (под домом, под бассейном и под теннисным кортом)

Коммуникации

Газ: есть (магистральный)
Э/э: есть (не ограничено. Резервный дизель генератор John Deer 35 kW.)
Водопровод: индивид. скважина (2 индивидуальные скважины 30м и 55м)
Канализация: централизованная
Интернет: есть (оптоволокно; спутниковое TV)
Охрана: есть (ЧОП при въезде в к/п, своя охрана на участке+видеонаблюдение по периметру)

Описание инфраструктуры

В поселке Ново-Троицкое частный детский сад "Яблоневый сад". Инфраструктура д.Пучково и г.Троицка, рядом остановка общественного транспорта

Элементы положит. окружения

В 50 метрах расположен лесной массив, в поселке пруд. Рядом Храм Казанской иконы Божией Матери.

Хочу посмотреть


Поделитесь с друзьями:

Собираетесь купить дом, дачу или коттедж на Калужском или Киевском направлении? Обязательно воспользуйтесь услугами компании «Белые Ветры», старейшего оператора загородной недвижимости на Юго-западе Подмосковья!
Рейтинг@Mail.ru