Продажа дачи, коттеджа, дома на Киевском, Калужском шоссе — цена, описание, фото, расположение на карте.

Дом, Летово-2 к/п

Снят с реализации

Меблированный коттедж 424 кв.м в обжитом к/п Летово-2

Код: 128-816

Особенности объекта

Меблированный коттедж высокого качества строительства, со стильными архитектурой и внутренней отделкой  в соременной стиле. Дорогие отделочные материлы. Функциональная планировка - все спальни большого размера, со своими гардеробными и просторными ванными комнатами, большинство комнат - с эркерами. Высокие потолки. Квартира персонала, бильярдная с зоной отдыха, сауна. На красивом лесном участке с вековыми деревьями и ландшафтом. Все центральные коммуникации. Полностью обжитой поселок в тихом месте. Удобная транспортная доступность с двух шоссе.

Расположение

Ссылка на карту
Летово-2 к/п (Летово)
Калужское шоссе, от МКАД: 7 км, всего: 9 км
Киевское шоссе, от МКАД: 7 км, всего: 14 км
Тип застройки: сформированный к/п
Метро: Ольховая, Теплый стан, Прокшино; от 8 мин на авто

Дом

Общая площадь строений: 464 м2
Год постройки дома: 2011
Количество уровней: 3
Спален: 4. С/узлов полных: 5. С/узлов неполных: 1. Комнат всего: 7.
Опции: сауна; квартира для персонала; терраса; камин; машиномест крытых: 2, в т.ч. в теплом гараже: 2; бильярдная.
Материал стен: пеноблок, утеплитель - пенополистирол 50 мм
Облицовка стен: фасадная штукатурка, клинкерная плитка, 2 этаж - лиственница
Кровля: мягкая (Тегола)
Окна: стеклопакеты ПВХ (двухкамерные с раскладкой)
Стадия готовности: меблирован
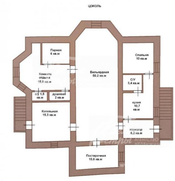
Цоколь: Бильярдная 50 кв.м со столом 9 футов и металлическим камином; СПА-зона: комната отдыха 16 кв.м, с/узел, душевая, сауна 6 кв.м с русской печью; постирочная 10.6 кв.м, котельная 15 кв.м с отдельным выходом. Квартира персонала (с отдельным входом): кухня 11 кв.м, с/узел, спальня 10 кв.м
1-ый этаж: Крыльцо, прихожая 7.5 кв.м, с/узел 3 кв.м, гостиная 37 кв.м с камином, кухня-столовая 47 кв.м с выходом на летнюю террасу 15 кв.м, кабинет 15 кв.м, спальня 22.5 кв.м с с/узлом 12 кв.м (с ванной-джакузи и душевой кабиной) проход через гардеробную 10 кв.м
2-ой этаж: холл-библиотека 17.6 кв.м, Главная спальня с эркером 29 кв.м с ванной комнатой 25 кв.м (с ванной-джакузи и душевой кабиной) проход через гардеробную 10.6 кв.м, спальня 28 кв.м с с/узлом 7 кв.м (с ванной) и выходом на балкон 8 кв.м, спальня 17 кв.м с с/узлом 5 кв.м
Описание внутренней отделки: Дорогостоящая отделка в современном стиле. Все стены окрашены, в кабинете оклеены обоями, в санузлах кафель. Пол - паркетная доска, в спальнях ковролин, в кухне керамогранит с водяным подогревом. Потолки выровнены и окрашены, с карнизами, на 2м этаже отделаны лиственницей. Лестница монолитная шириной 1.2 м, ступени деревянные (орех) в металлической окантовке, перила металлические. Подоконники мраморные, двери из массива дерева.
Инженерное обеспечение: Газовый котел Ferroli на 60 кВт, бойлер газовый на 580 л Eh-Trading. Многоступенчатая система водоподготовки. Вентиляция естественная приточно-вытяжная, в гостиной и спальнях установлены кондиционеры; в доме оборудована пожарная сигнализация, в котельной и в зоне сауны система пожаротушения.
Мебель, оборудование: Дом полностью меблирован: кухня выполнена на заказ (пр-ва Италии) со встроенной бытовой техникой: духовой шкаф, микроволновка и посудомойка Bosch, газовая варочная панель Kaiser, холодильник Liebherr, морозильная камера Electrolux. Столешница из натурального гранита. Люстра в холле 2-го этажа дизайнерская, ручной работы (Италия). Огромные зеркала в некоторых комнатах и холле. Уличная мебель на террасе. Сантехника следующих марок: Hatria (Италия), Swell (Испания), Eago, Aquatica и др.
Дополнительные строения: Гараж кирпичный на 2 авто 40 кв.м с автоматическими воротами, в нем также генератор на 6 кВт
Дополнительная информация о доме: Дом отличает очень гармоничная современная архитектура и стильная отделка интерьеров также в современном стиле. Фундамент и перекрытия дома железобетонные монолитные плиты, высота потолков в цоколе - 2.8 м, 1 этаж - 3.3 м, 2 этаж - до 4 м

Участок

Площадь участка, соток: 15
Тип участка: парково-лесной с ландшафтом
Благоустройство участка: на участке 5 вековых лип, 2 вековые березы и вековой дуб, высажены взрослые сосны - около 10 шт., вишневый сад - около 10 деревьев, сад яблонь и груш - около 10 шт., множество плодовых и декоративных кустарников. На участке дорожки, уличное освещение, газон.
Статус земли: земли поселений для ИЖС
Дополнительная информация об участке: участок "Г" образной формы, огорожен деревянным забором 2.4 м на металлических столбах, с одной стороны кирпичный с кованным верхом.

Коммуникации

Газ: есть (магистральный)
Э/э: есть (15 кВт)
Водопровод: центральный
Канализация: централизованная
Телефон: есть (МГТС)
Интернет: есть (выделенная линия, спутниковое ТВ)
Охрана: есть (КПП, ЧОП)

Описание инфраструктуры

В 3 км школа-пансион для одаренных детей "Летово", в 2 км спортивный центр "Теннис". В 5 км инфраструктура поселков «Дубровка» и «Московский»

Элементы положит. окружения

Лесной массив расположен в 1 км, в 2 км водоем.

Хочу посмотреть


Поделитесь с друзьями:

Собираетесь купить дом, дачу или коттедж на Калужском или Киевском направлении? Обязательно воспользуйтесь услугами компании «Белые Ветры», старейшего оператора загородной недвижимости на Юго-западе Подмосковья!
Рейтинг@Mail.ru