Дом, Лукоморье к/п
Код: 115-602
Особенности объекта
Шикарный, полностью укомплектованный оборудованием и мебелью особняк по авторскому проекту в камерном поселке премиум-класса, расположенном на территории дубовой рощи. Роскошный бассейн с чашей джакузи, зоной сауны, комнатой отдыха и др. Эксклюзивные материалы, мебель и оборудование. Просторный участок с собственным выходом в лес. Вглядитесь в детали, посмотрите видеоролик о доме.
Расположение
Ссылка на карту
Лукоморье к/п (Бачурино дер)
Калужское шоссе, от МКАД: 4 км, всего: 6 км
Тип застройки: сформированный к/п
Метро: Ольховая, Теплый стан, Прокшино; от 10 мин на авто
Коттеджный поселок «Лукоморье»
Дом
Общая площадь строений: 832.2 м2
Год постройки дома: 2004 (отделка 2008 г.)
Количество уровней: 3
Спален: 7. С/узлов: 5. Комнат всего: 11.
Опции: бассейн; терраса; камин; машиномест крытых: 2, в т.ч. в теплом гараже: 2; парная; лифт.
Материал стен: монолит
Облицовка стен: кирпич
Кровля: натуральная черепица
Окна: стеклопакеты алюминиевые
Стадия готовности: меблирован
Цоколь: зона бассейна 164 кв.м с чашей 15*4м и глубиной до 2.5 м и джакузи диаметром ок.4 м. Зона сауны с парной и комнатой отдыха 18 кв.м. Душевая и туалет. Постирочная-гладильная 14 кв.м. Две кладовые.
1-ый этаж: крыльцо, прихожая, гардероб 13 кв.м, лифт, с/узел 3 кв.м, с/узел 4 кв.м с душевой кабиной, кабинет 28 кв.м, гостевая спальня 18 кв.м, жилая комната 17 кв.м, кухня-столовая 26 кв.м с выходом на веранду 38 кв.м, гостиная 52 кв.м с камином, гараж на 2 авто, котельная, кладовая/мини-гараж
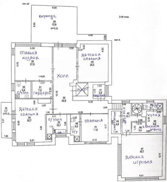
2-ой этаж: холл 43 кв.м с выходом на террасу 42 кв.м, спальня хозяев 28 кв.м с с/узлом 6 кв.м и гардеробной 7.5 кв.м, спальня 18 кв.м с с/узлом 5.5 кв.м, 2 детских спальни 31 и 26 кв.м, общий с/узел 10.7 кв.м, игровая детская 43 кв.м, комната няни с кухней и с/узлом, лифт, кладовая, подсобное помещение.
3-ий этаж: технический этаж
Описание внутренней отделки: на стенах обои; полы - керамогранит; потолки натяжные, в детских - "звездное небо"; установлен лифт AKRON на 9 персон; 6-ти контурное отопление, импортная сантехника
Инженерное обеспечение: установлен котел Buderus Logano GE434 мощностью 200 кВт, дополнительная 4-х ступенчатая система очистки воды. Центральный пелесос. Элементы системы "умного дома". 3 системы отопления: водяные теплые полы, конвекторы, центральная вентиляция с обогревом и кондиционированием (чиллер во избежание шума в доме установлен в углу двора). 12 камер видеонаблюдения по периметру дома
Мебель, оборудование: Кухонный гарнитур Италия, техника Leibher и Gaggenau, большой кожаный диван в гостиной, вся мебель под заказ из Италии, Испании. Картины художника Сергея Брюханова. Значительная часть мебели - роскошного белого цвета.
Дополнительные строения: детская площадка, навес на 4 а/м, большая беседка-барбекю
Дополнительная информация о доме: Высота потолков 3,5 м, высокие дверные проемы - для высоких людей. Стилистика дома: классика, минимализм
Участок
Площадь участка, соток: 31.03
Тип участка: с деревьями и ландшафтом, граничит с лесом
Благоустройство участка: на участке выполнен ландшафтный дизайн, сделан глубокий дренаж, организован газон, автополив, по периметру высажены ёлочки, туи, дуб. Дорожки выложены тротуарной плиткой, фонарики.
Статус земли: для дачного строительства
Дополнительная информация об участке: участок прямоугольной формы, расположен в центре поселка и по границе с лесом с собственным выходом в лес. Огорожен кованым забором на кирпичных столбах.
Коммуникации
Газ: есть (магистральный)
Э/э: есть (25 кВт)
Водопровод: центральный
Канализация: централизованная
Телефон: есть (МГТС)
Интернет: есть (скоростной, телевидение НТВ +)
Охрана: есть (профессиональная круглосуточная охрана)
Описание инфраструктуры
В поселке административное здание, теннисный корт, детская площадка. В нескольких километрах "АШАН", "Мега", "ИКЕА", п.Коммунарка
Элементы положит. окружения
Камерный коттеджный посёлок в едином архитектурном стиле, на участке свой выход в лес.
Комментарий к цене
ТОРГ!
Хочу посмотретьПоделитесь с друзьями:
Похожие предложения:
Дом, Антоновка к/п (Зименки), 750 м2, 28.6 сот
Киевское шоссе, от МКАД: 7+7 км
Филатов луг, Теплый стан - от 12 мин на автоДом, Антоновка к/п
Калужское ш., 7 км + 2 км
пл. участка: 28.6 сот
пл. дома: 750 м2
меблирован
Спален: 5. С/узлов: 6.


Дом, Антоновка к/п (Зименки), 930 м2, 28.5 сот
Киевское шоссе, от МКАД: 7+7 км
Филатов луг, Теплый стан - от 12 мин на автоДом, Антоновка к/п
Калужское ш., 7 км + 2 км
пл. участка: 28.5 сот
пл. дома: 930 м2
под ключ
Спален: 6. С/узлов: 5.

Дом, Променад КП (Бурцево), 680 м2, 26 сот
Аэропорт Внуково, Кокошкино - от 17 мин на автоДом, Променад КП
Киевское ш., 14 км + 3 км
пл. участка: 26 сот
пл. дома: 680 м2
меблирован
Спален: 5. С/узлов: 5.












