Продажа дачи, коттеджа, дома на Киевском, Калужском шоссе — цена, описание, фото, расположение на карте.

Дом, Мартемьяново к/п

Снят с реализации

Меблированный коттедж 250 кв.м в к/п Мартемьяново

Код: 256-306

Особенности объекта

В высшей степени практичный и комфортный для жизни, но еще и симпатичный дом, на красивом ухоженном участке с лесными деревьями. В отличие от большинства других домов в этом поселке, строился не Застройщиком, а самим хозяином, что определяет высокое качество строительства - заводское исполнение элементов дома, хорошая инженерия (в частности, система вентиляции).  В доме - домашний кинотеатр, сауна, на участке беседка-барбекю, сборный бассейн, навес на авто. Современный сформированный коттеджный поселок в тихом месте, широкие дороги, качественные центральные коммуникации. Видео

Расположение

Ссылка на карту
Мартемьяново КП (Мартемьяново)
Киевское шоссе, от МКАД: 27 км, всего: 29 км
Тип застройки: сформированный к/п
Метро: Апрелевка, Рассказовка, Саларьево; от 12 мин на авто
Коттеджный поселок «Мартемьяново»

Дом

Общая площадь строений: 250 м2
Год постройки дома: 2008
Количество уровней: 2
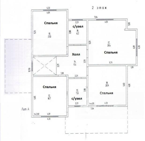
Спален: 4. С/узлов полных: 2. С/узлов неполных: 2. Комнат всего: 7.
Опции: сауна; терраса; машиномест крытых: 2; холодная кладовая.
Материал стен: каркасный (SIP-панели)+утеплитель
Облицовка стен: декоративная фактурная штукатурка, лепнина, цоколь отделан клинкерной плиткой
Кровля: мягкая (черепица Tegola)
Окна: стеклопакеты ПВХ (Trokal двухкамерные)
Стадия готовности: меблирован
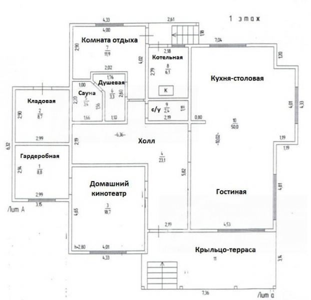
1-ый этаж: крыльцо-терраса 20 кв.м, холл 23 кв.м, кухня/столовая-гостиная 50 кв.м, домашний кинотеатр 19 кв.м, гостевой с/узел, зона сауны: комната отдыха 12 кв.м с выходом на участок, душевая, сауна, гардеробная 9 кв.м, кладовая 9 кв.м, котельная 6 кв.м с отдельным входом
2-ой этаж: холл 11 кв.м, спальни 19 кв.м и 21 кв.м, с/узел 7 кв.м с ванной, спальни 21 кв.м и 28 кв.м, с/узел 6 кв.м с ванной
3-ий этаж: чердак
Описание внутренней отделки: Стильная отделка: стены оклеены обоями, в с/узлах плитка, комната отдыха в зоне сауны - имитация бруса. Пол в холле, кухне и сауне отделан плиткой, в гостиной и столовой - массив доски (22 мм), ковролин в спальнях и кинотеатре. Потолки отделаны вагонкой, окрашены; лестничный марш из сосны шириной 90 см, окрашен. Входная дверь металлическая с отделкой деревом, межкомнатные деревянные.
Инженерное обеспечение: газовый котел BAXI (Италия), бойлер на 120 л; есть резервный электрокотёл; оборудована система водоочистки (фильтр грубой очистки, обезжелезивание, умягчение, УФО-лампа, угольный фильтр). Централизованная принудительная система вентиляция AirEco (Франция), установлен домофон, молниезащита; стабилизатор напряжения (3-х фазный) и резервный дизель генератор (16 кВт).
Мебель, оборудование: Дом полностью меблирован и оборудован всем необходимым для жизни.
Дополнительные строения: Летняя беседка со стационарной печью-барбекю. Навес на 2 автомашины (8х8м). Сборно-разборный уличный бассейн (D=5.7 м; V=28 куб.м)
Дополнительная информация о доме: Дом в классическом стиле с ж/б монолитным ленточным фундаментом, деревянными перекрытиями, состоящими из SIP-панелей, выполненных в заводских условиях, OSB плиты с обеих сторон с утеплителем (Пенополистирол), высота потолков 2.7 м

Участок

Площадь участка, соток: 21
Тип участка: с деревьями и ландшафтом
Благоустройство участка: выполнен ландшафтный дизайн участка: высажены крупномерные лесные деревья - сосна, ель, береза, липа, ива, туи, декоративные кустарники, цветники, зона отдыха с лавочкой и искусственным прудиком, дорожки и отмостка выложены тротуарной плиткой, сделан дренаж участка
Статус земли: земли населённых пунктов, для малоэтажного жилищного строительства
Дополнительная информация об участке: участок трапециевидной формы в глубине поселка, огорожен деревянным забором с автоматическими распашными воротами

Коммуникации

Газ: есть (магистральный)
Э/э: есть (22 кВт)
Водопровод: центральный (также индивидуальная скважина 64 м)
Канализация: централизованная
Телефон: возможно подключение (оптиковолокно)
Интернет: есть (оптиковолокно, телевидение)
Охрана: есть (3 КПП)

Описание инфраструктуры

Спортивные и детские площадки, парковые зоны отдыха для всей семьи, каток. Специально оборудованные площадки для волейбола, баскетбола, бадминтона, теннисный корт, ледяные горки и другие развлечения. Частный детский сад-начальная школа "Ласточкино гнездо". В шаговой доступности в ЖК "Весна" открыта новая муниципальная общеобразовательная школа, оснащенная по всем современным требованиям. Так же в шаговой доступности магазины, рестораны, маршрутное такси до станции Апрелевка. Инфраструктура г.Апрелевка

Элементы положит. окружения

Лесной массив расположен в 300 метрах.

Хочу посмотреть


Поделитесь с друзьями:

Собираетесь купить дом, дачу или коттедж на Калужском или Киевском направлении? Обязательно воспользуйтесь услугами компании «Белые Ветры», старейшего оператора загородной недвижимости на Юго-западе Подмосковья!
Рейтинг@Mail.ru