Продажа дачи, коттеджа, дома на Киевском, Калужском шоссе — цена, описание, фото, расположение на карте.

Дом, Михайловское

Код: 527-802

Особенности объекта

Поселок расположен на территории принадлежавшей усадьбе Михайловское, что объясняет уникальный растительный и природный ландшафт этого места. В поселке центральные коммуникации от пансионата. Очень тихое место, на участке дубы. Красивая архитектура дома. Уютная обстановка в доме. Функциональная планировка. Дорогая мебель. Второй свет в гостиной.

Расположение

Ссылка на карту
Михайловское
Калужское шоссе, от МКАД: 29 км, всего: 32 км
Тип застройки: обжитой к/п
Метро: Ольховая, Теплый стан, Бунинская аллея; от 32 мин на авто

Дом

Общая площадь строений: 200 м2
Спален: 4. С/узлов: 2. Комнат всего: 5.
Опции: квартира для персонала; терраса; камин; второй свет.
Материал стен: Кирпич + 50 мм утеплитель пеноплекс
Облицовка стен: Облицовочный кирпич
Кровля: металлочерепица
Окна: стеклопакеты ПВХ (двухкамерные с раскладкой, автоматические рольставни на первом этаже, в гостиной на втором свете мансардные окна Velux)
Стадия готовности: меблирован
1-ый этаж: гостиная 30 кв.м с камином и вторым светом, кухня 17 кв.м с выходом на террасу 10 кв.м, спальня 15 кв.м, санузел 8 кв.м с душевой, котельная-прачечная 9 кв.м. помещение 23 кв.м с отдельным входом (возможно переоборудовать в квартиру для персонала) крыльцо 4 кв.м, прихожая 7 кв.м, холл 17 кв.м;
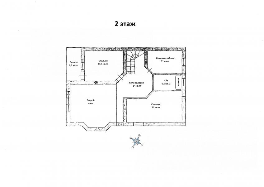
2-ой этаж: спальня 23 кв.м, спальня 16 кв.м с выходом на балкон 7 кв.м, спальня-кабинет 11 кв.м, санузел 7 кв.м с ванной, холл 14 кв.м;
3-ий этаж: свободной планировки чердак около 30 кв.м;
Описание внутренней отделки: классическая отделка в светлых тонах; стены окрашены, в спальнях обои, в санузлах плитка; на первом этаже и в санузлах на полу керамогранит с водяным подогревом; на втором этаже полы покрыты ковролином; лестничный марш ж/б монолит, ступени отделаны деревом (лиственница), перила также деревянные; потолки подвесные; сантехника Laufen и Jacob Delafon; коммуникации разведены; радиаторы стальные Kermi, э/э Legrand; мраморные подоконники;
Инженерное обеспечение: газовый двух контурный котел Thermona 24 кВт + бойлер косвенного нагрева на 30 л; многоуровневая система очистки воды; установлены датчики движения;
Мебель, оборудование: прилагается вся встроенная техника, мебель в гостиной производства Италия (кроме мягкой мебели), карнизы, люстры и шторы. Кухня (Италия), фасады массив красного дерева голубого цвета, посудомоечная машина и духовой шкаф - Siemens, варочная панель - Bosch, холодильник -Liebherr. Гостиная мебель (Италия), спальные гарнитуры;
Дополнительная информация о доме: фундамент ленточный ж/б, перекрытия межэтажные ж/б монолитные; архитектурный стиль: классический современный;

Участок

Площадь участка, соток: 12
Тип участка: с лесными деревьями
Благоустройство участка: парковый с лесными деревьями (вековые: дубы 7 шт, ели 8 шт, липы 4 шт); дренаж вокруг дома и по участку; устроен газон, выложены дорожки, есть уличное освещение, автополив, высажено большое количество кустарников, и растут деревья: каштан, туи вдоль забора около 25 шт высотой 3 м;
Статус земли: земли населенных пунктов для ИЖС
Дополнительная информация об участке: участок расположен в середине поселка, огорожен со всех сторон глухим деревянным забором на металлических столбах с бетонным цоколем;

Коммуникации

Газ: есть
Э/э: есть (15 кВт 380)
Водопровод: центральный
Канализация: централизованная
Интернет: есть (оптоволокно)
Охрана: есть (КПП со шлагбаумом + пультовая)

Описание инфраструктуры

Санаторий-курорт "Михайловское". Конно-спортивная база, бассейн, сауны, поликлиника. В 1,5 км ПГТ "Шишкин Лес" (больницы, школы, детский сад, магазины, клуб).

Элементы положит. окружения

Лес, пруды.

Хочу посмотреть


Поделитесь с друзьями:

Собираетесь купить дом, дачу или коттедж на Калужском или Киевском направлении? Обязательно воспользуйтесь услугами компании «Белые Ветры», старейшего оператора загородной недвижимости на Юго-западе Подмосковья!
Рейтинг@Mail.ru