Продажа дачи, коттеджа, дома на Киевском, Калужском шоссе — цена, описание, фото, расположение на карте.

Дом, Милорадово

Код: 371-102

Особенности объекта

Роскошная резиденция с бассейном в классическом стиле в элитном обжитом коттеджном поселке, в окружении леса. Авторский проект дома, эксклюзивные строительные материалы и инженерные системы. Одно из наиболее престижных мест Калужского шоссе.

Расположение

Ссылка на карту
Милорадово
Калужское шоссе, от МКАД: 10 км, всего: 11 км
Тип застройки: сформированный к/п
Метро: Ольховая, Теплый стан, Бунинская аллея; от 8 мин на авто
Коттеджный поселок «Милорадово»

Дом

Общая площадь строений: 1277 м2 (в т.ч: основной дом - 836 кв.м, дом с бассейном - 441 кв.м)
Год постройки дома: 2007
Количество уровней: 5
Спален: 3. С/узлов: 8. Комнат всего: 9.
Опции: бассейн; квартира для персонала; терраса; камин; машиномест крытых: 4, в т.ч. в теплом гараже: 4; подземный переход, объединяющий основной жилой дом со зданием бассейна. бильярдная, кинотеатр, комната отдыха с баром, тренажерный зал.
Материал стен: кирпич
Облицовка стен: гранит, гипсовая плитка, штукатурка
Кровля: медь
Окна: стеклопакеты деревянные
Стадия готовности: под финишную отделку (остались покрасочные работы, паркет; с/у готовые с сантехникой)
Цоколь: бильярдная 49 кв.м, кинотеатр 33 кв.м, комната отдыха с баром 49 кв.м, раздевалка, душевая, с/узел, прачечная 18 кв.м, гардеробная 18 кв.м, подземный переход, объединяющий основной жилой дом со зданием бассейна
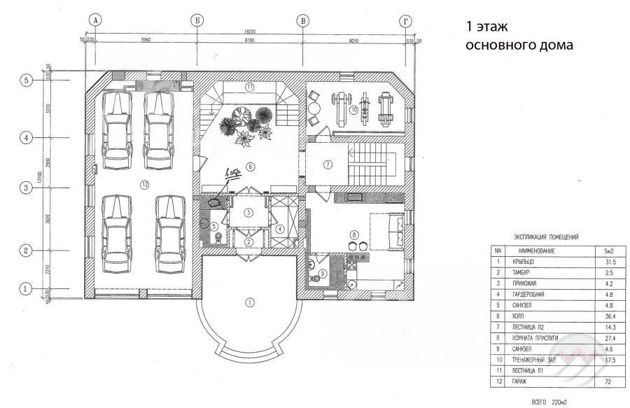
1-ый этаж: крыльцо 32 кв.м, тамбур, прихожая, гардеробная 5 кв.м, гостевая квартира-студия 27 кв.м с кухней и собственной ванной комнатой, двусветный холл 36 кв.м, тренажерный зал 18 кв.м, с/узел 5 кв.м,
гараж на 4 машины.
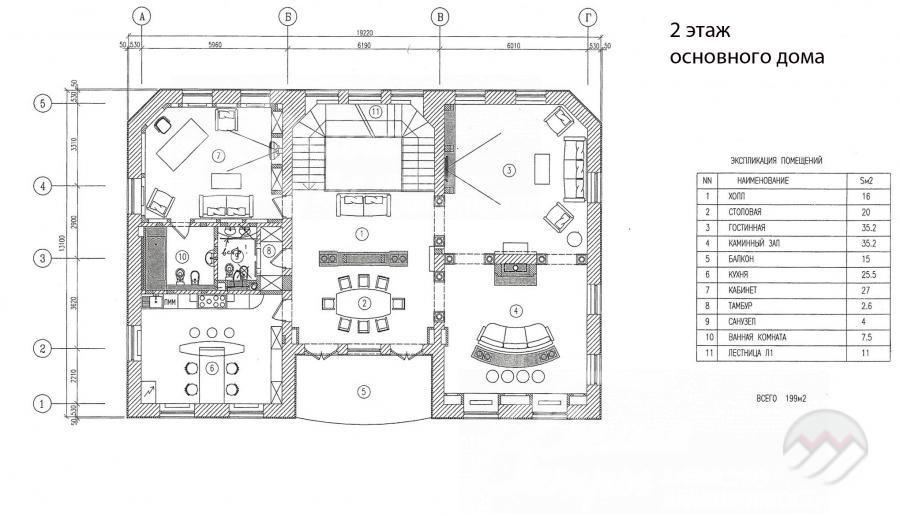
2-ой этаж: гостиная 35 кв.м, каминный зал 35 кв.м, столовая 20 кв.м, кухня 26 кв.м, кабинет 27 кв.м с ванной комнатой 8 кв.м; с/узел 4 кв.м
3-ий этаж: главная спальня 33 кв.м с собственной ванной комнатой 15 кв.м, гардеробной 6.5 кв.м и выходом на летнюю веранду 39 кв.м; две спальня (27 и 24 кв.м) с собственными ванными комнатами; холл 29 кв.м с выходом на летнюю веранду; мансарда 30 кв.м
Описание внутренней отделки: внутренние стены готовы под покраску и обои; на полах уложена вся подложка под паркет; потолки под финишную покраску; выполнена разводка коммуникаций по дому; сантехника импортная; гранитные подоконники, гипсовая лепнина.
Инженерное обеспечение: 2 котла Viessmann по 130 кВт, бойлер Viessmann; установлены многоступенчатая система очистки воды, система центрального пылесоса, рукавная центральная система принудительной приточно-вытяжной вентиляции с кондиционированием, установлены счетчики воды и электричества; есть разводка под сигнализацию и камеры по периметру.
Дополнительные строения: Дом с бассейном - 441 кв.м:
- цоколь: подземный переход, объединяющий основной жилой дом со зданием бассейна; технические помещения для обслуживания бассейна 37 кв.м + 54 кв.м; машинное отделение 8 кв.м; бойлерная 26 кв.м;
- 1 этаж: чаша бассейна 54 кв.м с зоной отдыха 45 кв.м и купелью; русская баня; душевая.
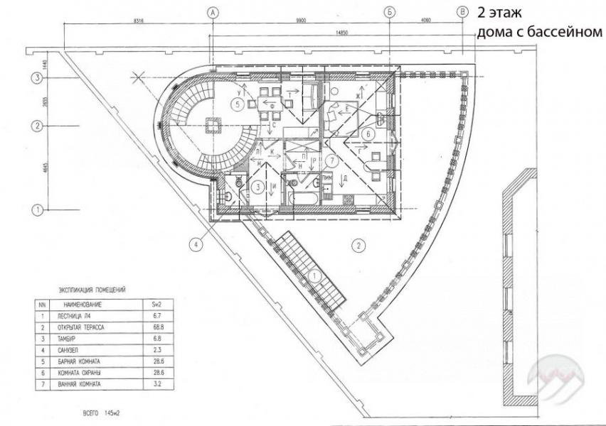
- 2 этаж: открытая терраса 69 кв.м; тамбур 7 кв.м; гостевая комната 29 кв.м; барная комната 29 кв.м; два с/узла (2 и 3 кв.м).
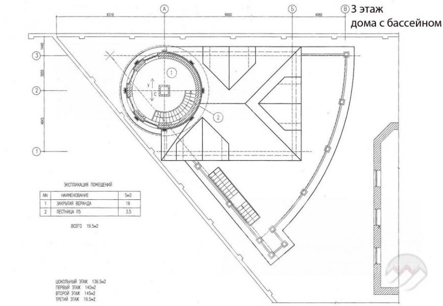
- 3 этаж: застекленная веранда с круговым обзором 16 кв.м.
Дополнительная информация о доме: Классический архитектурный стиль, архитекторы - Балабанов М.В., Ерошенко В.Н.

Участок

Площадь участка, соток: 16.21
Тип участка: поле
Благоустройство участка: участок выровнен и засыпан плодородным слоем
Статус земли: земли поселений, для индивидуального жилищного строительства
Дополнительная информация об участке: участок огорожен кирпичным оштукатуренным забором на ж/б фундаменте с гранитным цоколем

Коммуникации

Газ: есть (магистральный)
Э/э: есть (380 Вольт)
Водопровод: центральный
Канализация: централизованная
Телефон: есть (МГТС)
Интернет: возможно подключение (оптоволокно)
Охрана: есть (строгая вооруженная охрана)

Описание инфраструктуры

Инфраструктура санатория «Десна» Управления Делами Президента.

Элементы положит. окружения

Поселок в окружении соснового леса. В поселке - магазины и детские площадки.

Хочу посмотреть


Поделитесь с друзьями:

Собираетесь купить дом, дачу или коттедж на Калужском или Киевском направлении? Обязательно воспользуйтесь услугами компании «Белые Ветры», старейшего оператора загородной недвижимости на Юго-западе Подмосковья!
Рейтинг@Mail.ru