Дом, Милорадово
Код: 371-804
Особенности объекта
Редкое предложение! Коттедж расположен в престижнейшем поселке Калужского шоссе, в районе правительственных дач. Великолепный участок с собственным выходом в лес. Кирпичный дом с 4-мя спальнями, 3-мя гардеробными и 2-мя санузлами полностью готов к проживанию. Ознакомьтесь более подробно с домом, посмотрев видеоролик.
Расположение
Ссылка на карту
Милорадово
Калужское шоссе, от МКАД: 10 км, всего: 11 км
Тип застройки: обжитой к/п
Метро: Ольховая, Теплый стан, Бунинская аллея; от 8 мин на авто
Коттеджный поселок «Милорадово»
Дом
Общая площадь строений: 380 м2 (в т.ч.: дом 320 кв.м, гараж с квартирой для персонала 60 кв.м)
Год постройки дома: 2002
Количество уровней: 3
Спален: 4. С/узлов: 3. Комнат всего: 6.
Опции: сауна; квартира для персонала; камин; машиномест крытых: 2, в т.ч. в теплом гараже: 2; беседка, теплица.
Материал стен: кирпич
Облицовка стен: кирпич
Кровля: металлочерепица
Окна: стеклопакеты ПВХ
Стадия готовности: меблирован
Цоколь: зона сауны с душевой и туалетом; помещение свободного назначения 36.7 кв.м, две холодные кладовые по 4.5 кв.м, котельная, тех.помещение 13 кв.м с отдельным входом, гараж 33 кв.м
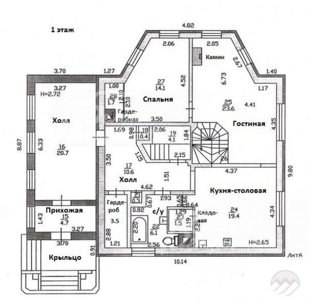
1-ый этаж: тамбур 4.7 кв.м, прихожая 21 кв.м, холл 10.5 кв.м, гардеробная 3.5 кв.м, гостевой с/узел 6 кв.м, кухня-столовая 19 кв.м, двухсветная гостиная 23.5 кв.м с камином, спальня 14 кв.м с гардеробной
2-ой этаж: второй свет с балконом, холл 13 кв.м, спальня 13 кв.м, с/узел 7 кв.м, кладовая 6 кв.м, детская спальня 12 кв.м, кладовая, жилая комната 20.5 кв.м
Описание внутренней отделки: стены окрашены, потолки подвесные с декоративными балками; лестничный марш монолитный шириной 80 см, отделан дубом; двери - массив дерева, подоконники дубовые
Инженерное обеспечение: котел СТС 1100, многоступенчатая система очистки воды, все коммуникации разведены по дому, счетчики электричества и воды, эл.стабилизатор, установлен домофон
Мебель, оборудование: дом меблирован на 100%
Дополнительные строения: Гараж с отдельным въездом, на 2м этаже квартира для персонала. Беседка. Теплица 17 кв.м.
Дополнительная информация о доме: интерьер дома выполнен в стиле "Кантри" ; фундамент дома монолитный, ж/б перекрытия, высота потолков 3 м
Участок
Площадь участка, соток: 23
Тип участка: лесной с вековыми елями
Благоустройство участка: выполнен ландшафтный дизайн: газон, организованы цветочные клумбы, высажены плодовые деревья; сделаны дорожки, освещение участка, дренаж
Статус земли: земли населенных пунктов для ИЖС
Дополнительная информация об участке: участок прямоугольной формы, граничит с лесом, огорожен кирпичным забором высотой 2 метра
Коммуникации
Газ: есть (магистральный)
Э/э: есть (15 кВт)
Водопровод: центральный
Канализация: централизованная
Телефон: есть (московский номер)
Интернет: есть
Охрана: есть (строгая вооруженная)
Описание инфраструктуры
Инфраструктура санатория «Десна» Управления Делами Президента.
Элементы положит. окружения
Участок граничит с лесным массивом.
Хочу посмотретьПоделитесь с друзьями:
Похожие предложения:
Дом, Околица ДСК (Докукино д.), 368.9 м2, 23.75 сот
Ольховая, Теплый стан - от 12 мин на автоДом, Околица ДСК
Калужское ш., 4 км + 3 км
пл. участка: 23.75 сот
пл. дома: 368.9 м2
под ключ
Спален: 2. С/узлов: 2.
Дом, Высота к/п (Ботаково), 370 м2, 21 сот
Киевское шоссе, от МКАД: 21+9 км
Ольховая, Теплый стан - от 18 мин на автоДом, Высота к/п
Калужское ш., 17 км + 2 км
пл. участка: 21 сот
пл. дома: 370 м2
меблирован
Спален: 4. С/узлов: 3.










