Продажа дачи, коттеджа, дома на Киевском, Калужском шоссе — цена, описание, фото, расположение на карте.

Дом, Милорадово

Снят с реализации

Дом под ключ в КП Милорадово на Калужском шоссе

Код: 371-810

Особенности объекта

Дом расположен в элитном поселке в самом престижном месте Калужского шоссе. Идеальная дача. Строгая вооруженная охрана. Все центральные коммуникации, включая телефон. Прилесной участок с вековыми лесными деревьями, выход в лес. Функциональная планировка. Бассейн, сауна. Очень тихо

Расположение

Ссылка на карту
Милорадово
Калужское шоссе, от МКАД: 10 км, всего: 11 км
Тип застройки: обжитой к/п
Метро: Ольховая, Теплый стан, Бунинская аллея; от 8 мин на авто
Коттеджный поселок «Милорадово»

Дом

Общая площадь строений: 380 м2
Количество уровней: 3
Спален: 4. С/узлов: 3. Комнат всего: 5.
Опции: бассейн; сауна; терраса; камин; холодный подвал.
Облицовка стен: кирпич
Кровля: металлочерепица
Окна: стеклопакеты деревянные
Стадия готовности: меблирован
Цоколь: Холл 8 кв.м, комната отдыха 17 кв.м, зона бассейна с душевой и сауной 36 кв.м (бассейн чаша 3.75х 2.45 м), санузел 3 кв.м, котельная 7,6 кв.м, кладовая 7,3 кв.м.
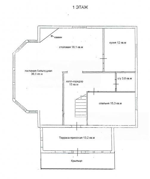
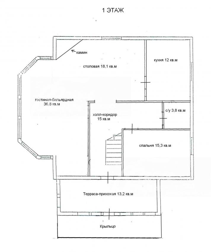
1-ый этаж: Терраса-прихожая 13 кв.м, холл-коридор 15 кв.м, кухня 12 кв.м, Студия: столовая 18 кв.м, гостиная-бильярдная 37 кв.м с камином , спальня 15,3 кв.м, санузел 4 кв.м.
2-ой этаж: Холл 24 кв.м, две спальни по 16 кв.м, спальня 23 кв.м, санузел 5.4 кв.м, лоджия 16 кв.м.
Описание внутренней отделки: Отделка внутренних стен и потолка- вагонка, в санузлах кафель и ПВХ панели. Полы деревянные, в санузлах и цокольном этаже на полу кафель.Вся сантехника в доме установлена. Коммуникации разведены. Двери и подоконники деревянные. Лестничный марш деревянный.
Инженерное обеспечение: Газовый котел и водонагреватель марки Протерм ( пр-во Чехия). Вентиляция естественно-приточная. Система очистки воды многоступенчатая. В доме сигнализация с датчиками движения.
Дополнительные строения: Летняя беседка с мангалом. Хозблок для садового инвентаря 3 кв.м
Дополнительная информация о доме: Фундамент ФБС блоки, перекрытия железобетонные плиты.

Участок

Площадь участка, соток: 23
Тип участка: Парковый с лесными и садовыми деревьями (около 100 деревьев и кустарников)
Благоустройство участка: Ухоженный красивый участок. Вековые ели - более 10 шт., туи, клены взрослые, рябина, садовые деревья, декоративные деревья, декоративные кустарники. Газон, дорожки. Вокруг дома - дренаж.
Статус земли: Земли населенных пунктов, для индивидуального жилищного строительства
Дополнительная информация об участке: Участок прямоугольной формы 31 м x 74 м. Забор спереди деревянный на кирпичных столбах и бетонном цоколе высотой 2.5 м, сзади - кованный металлический

Коммуникации

Газ: есть (магистральный)
Э/э: есть (15 кВт)
Водопровод: центральный
Канализация: централизованная
Телефон: есть (московский)
Интернет: есть
Охрана: есть (вооруженная)

Описание инфраструктуры

Инфраструктура санатория «Десна» Управления Делами Президента.

Хочу посмотреть


Поделитесь с друзьями:

Собираетесь купить дом, дачу или коттедж на Калужском или Киевском направлении? Обязательно воспользуйтесь услугами компании «Белые Ветры», старейшего оператора загородной недвижимости на Юго-западе Подмосковья!
Рейтинг@Mail.ru