Дом, Ново-Троицкое-1 к/п
Код: 314-815
Особенности объекта
Шикарный дом с бассейном и мебелью, воплощенный высококачественными строительными материалами, и расположен непосредственно на территории леса. Функциональная планировка, центральные коммуникации. На участке с ландшафтным дизайном летняя кухня с барбекю, гараж с квартирой персонала, детская площадка. Полностью отстроенный, сформированный охраняемый поселок, окруженный вековым лесом. Отличная подъездная дорога.
Расположение
Ссылка на карту
Ново-Троицкое-1 к/п (Пучково)
Калужское шоссе, от МКАД: 17 км, всего: 21 км
Киевское шоссе, от МКАД: 21 км, всего: 33 км
Тип застройки: сформированный к/п
Метро: Ольховая, Прокшино, Теплый стан; от 20 мин на авто
Коттеджный поселок «Ново-Троицкое-1»
Дом
Общая площадь строений: 485 м2 (в т.ч.: дом 370 кв.м, летняя кухня с барбекю 70 кв.м, гараж 45 кв.м)
Год постройки дома: 2008
Количество уровней: 4
Спален: 5. С/узлов: 4. Комнат всего: 7.
Опции: бассейн; сауна; квартира для персонала; терраса; камин; холодный подвал; машиномест крытых: 2, в т.ч. в теплом гараже: 1; летняя кухня.
Материал стен: кирпич
Облицовка стен: клинкерный кирпич
Кровля: мягкая
Окна: стеклопакеты ПВХ (ламинированные под дерево)
Стадия готовности: меблирован
Цоколь: Винный погреб 10.7кв.м
1-ый этаж: прихожая 13 кв.м, с/узел, кухня-столовая 34 кв.м, гостиная с камином 19 кв.м; зона бассейна 25.5 кв.м (чаша бассейна 5.3х3.3), комната отдыха 13 кв.м, сауна 5 кв.м, душевая-хамам; котельная 9 кв.м.
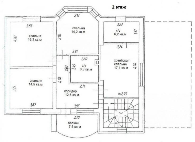
2-ой этаж: холл 12.5 кв.м с выходом на балкон 7.5 кв.м, спальня хозяев 17 кв.м с с/узлом 6 кв.м, спальня 14 кв.м, спальня 16 кв.м, с/узел 6 кв.м, спальня 14.5 кв.м
3-ий этаж: бильярдная 56 кв.м, две гардеробных 8 кв.м и 6 кв.м, жилая комната с кухней 13.5 кв.м, с/узел 8 кв.м.
Описание внутренней отделки: Отделка дома выполнена дорогими и качественными материалами. На стенах тканевые обои, декоративная штукатурка; на полу паркет; потолки натяжные и подвесные; двери (пр-во Италия), подоконники мраморные (Италия), лестничный марш дубовый.
Инженерное обеспечение: установлен котел Lamborghini, многоуровневая система очистки воды; вентиляция приточно-вытяжная, в зоне бассейна - принудительная; счетчики воды и электричества; установлена сигнализация, по периметру участка видеонаблюдение с регистратором
Мебель, оборудование: Дом полностью отделан дорогими материалами и меблирован, стильный дизайн; установлена вся необходимая бытовая техника, импортная дорогая сантехника и др.
Дополнительные строения: Летняя кухня с барбекю 70 кв.м (зона барбекю 10 кв.м, хоз.блок 10 кв.м, кухня-столовая 30 кв.м с кухонным гарнитуром, жилая комната 15 кв.м, с/узел 5 кв.м).
Дополнительная информация о доме: Дом в классическом архитектурном стиле. Фундамент ленточный, ж/б перекрытия, высота потолков 3 - 3.3 м.
Участок
Площадь участка, соток: 15
Тип участка: с лесными деревьями (около 30 вековых берез, ели)
Благоустройство участка: сделаны дорожки, освещение, газон, кустарники; дренаж по всему участку и вокруг дома
Статус земли: земли населенных пунктов, для ИЖС
Дополнительная информация об участке: участок прямоугольной формы, огорожен металлическим кованым забором на кирпичных столбах
Коммуникации
Газ: есть (магистральный)
Э/э: есть (15 кВт)
Водопровод: центральный (+ скважина)
Канализация: централизованная
Телефон: есть (МГТС)
Интернет: есть (оптиковолокно)
Охрана: есть (ЧОП, строгая охрана)
Описание инфраструктуры
В поселке детская площадка, в 500 м школа, продуктовый магазин, храм. В поселке Ново-Троицкое частный детский сад "Яблоневый сад". В 1,5 км богатая инфраструктура г.Троицка (Рестораны Заречье, Пикник на обочине, фитнес-центр в Троицке бизнес-класса с бассейном Резиденция, салоны красоты Весна, Престиж, Jadore, школы, детские сады, развивающие центры для детей (Центр Буракова), больницы и многое другое.
Элементы положит. окружения
Поблизости расположен лесной массив, в 200 метрах пруды д.Пучково.
Хочу посмотретьПоделитесь с друзьями:
Похожие предложения:
Дом, Мартемьяново, 487 м2, 15 сот
Апрелевка, Рассказовка - от 10 мин на автоДом, Мартемьяново
Киевское ш., 27 км + 2 км
пл. участка: 15 сот
пл. дома: 487 м2
меблирован
Спален: 5. С/узлов: 4.

Дом, Ильичевка к/п (Ильичевка), 528 м2, 15 сот
Киевское шоссе, от МКАД: 21+10 км
Крёкшино, Ольховая - от 24 мин на автоДом, Ильичевка к/п
Калужское ш., 17 км + 5 км
пл. участка: 15 сот
пл. дома: 528 м2
меблирован
Спален: 5. С/узлов: 5.

Дом, Зеленые холмы к/п (Першино), 480 м2, 15 сот
Филатов луг, Рассказовка - от 23 мин на автоДом, Зеленые холмы к/п
Киевское ш., 21 км + 4 км
пл. участка: 15 сот
пл. дома: 480 м2
меблирован
Спален: 4. С/узлов: 4.
Дом, Большое Покровское к/п (Большое Покровское), 490 м2, 15 сот
Филатов луг, Рассказовка - от 12 мин на автоДом, Большое Покровское к/п
Киевское ш., 15 км + 2 км
пл. участка: 15 сот
пл. дома: 490 м2
меблирован
Спален: 8. С/узлов: 6.


Дом, Высота к/п (Ботаково), 574 м2, 14 сот
Киевское шоссе, от МКАД: 21+9 км
Ольховая, Теплый стан - от 18 мин на автоДом, Высота к/п
Калужское ш., 17 км + 2 км
пл. участка: 14 сот
пл. дома: 574 м2
меблирован
Спален: 4. С/узлов: 4.























