Продажа дачи, коттеджа, дома на Киевском, Калужском шоссе — цена, описание, фото, расположение на карте.

Дом, Ново-Троицкое-1 к/п

Снят с реализации

Коттедж 214 кв.м под чистовую отделку в охраняемом поселке в Пучково

Код: 314-819

Особенности объекта

Качественный кирпичный  дом по весьма интересной цене. Расположен в обжитом поселке высокого уровня. Тихо, уютно, вокруг лес. Очень эргономичная планировка: 4 спальни, бильярдная, кабинет, 3 с/у и другое. Центральные коммуникации. В 5 мин пешком - общеобразовательная православная школа. В 1 км развитая инфраструктура г.Троицка

Расположение

Ссылка на карту
Ново-Троицкое-1 к/п (Пучково)
Калужское шоссе, от МКАД: 17 км, всего: 21 км
Киевское шоссе, от МКАД: 21 км, всего: 33 км
Тип застройки: обжитой к/п
Метро: Ольховая, Прокшино, Теплый стан; от 20 мин на авто
Коттеджный поселок «Ново-Троицкое-1»

Дом

Общая площадь строений: 214 м2
Год постройки дома: 2009
Количество уровней: 3
Спален: 4. С/узлов: 3. Комнат всего: 5.
Опции: машиномест крытых: 1, в т.ч. в теплом гараже: 1; камин возможен.
Материал стен: кирпич
Облицовка стен: кирпич
Кровля: металлочерепица
Окна: стеклопакеты ПВХ
Стадия готовности: под чистовую отделку
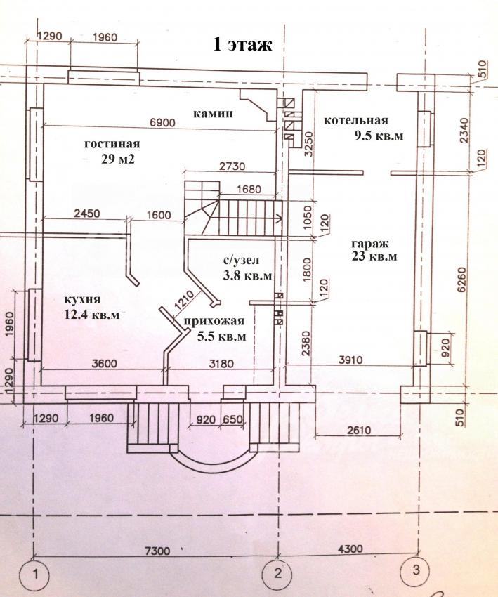
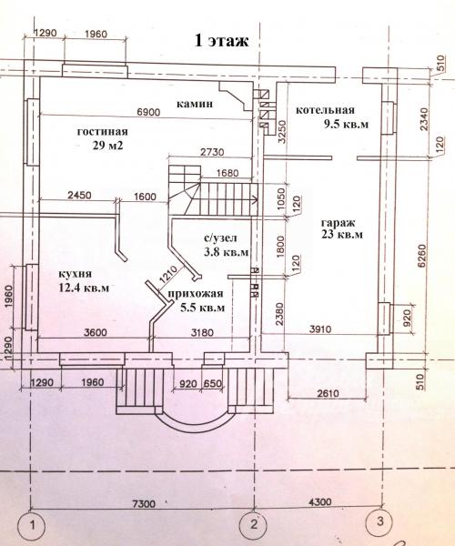
1-ый этаж: Прихожая 5.5 кв.м, с/узел 3.8 кв.м, кухня 12.4 кв.м, гостиная 29 кв.м, гараж 23 кв.м, котельная 9.5 кв.м с отдельным входом
2-ой этаж: Бильярдная 32 кв.м, две спальни по 14.7 кв.м, с/узел 9.6 кв.м, кабинет 9.7 кв.м
3-ий этаж: Холл 8 кв.м, спальня 11 кв.м, спальня 10 кв.м, с/узел 4 кв.м
Описание внутренней отделки: Стены и потолки выровнены и ошпаклеваны. В санузлах на полу и стенах кафель. На полу финишная стяжка. Коммуникации разведены до точек. Лестничный марш железобетонный монолитный. Радиаторы стальные.
Инженерное обеспечение: Вентиляция естественно-приточная. В доме установлены газовый котел De Dietrich 43 кВт и газовый бойлер (встроен в котел), емкость для солярки на 300 л.
Дополнительная информация о доме: Фундамент- ленточный железобетонный монолитный. Перекрытия железобетонные монолитные. Высота потолков 2.90 м-3 м.

Участок

Площадь участка, соток: 8
Тип участка: поле
Статус земли: Земли поселений для индивидуального жилищного строительства
Дополнительная информация об участке: Участок прямоугольной формы, позволяет свободно разместить дополнительные строения, например - баню.

Коммуникации

Газ: есть (по границе)
Э/э: есть (15 кВт)
Водопровод: центральный
Канализация: централизованная
Телефон: есть (МГТС)
Интернет: есть (по границе)
Охрана: есть (ЧОП)

Описание инфраструктуры

В поселке детская площадка, в 500 м школа, продуктовый магазин, храм. В поселке Ново-Троицкое частный детский сад "Яблоневый сад". В 1,5 км богатая инфраструктура г.Троицка (Рестораны Заречье, Пикник на обочине, фитнес-центр в Троицке бизнес-класса с бассейном Резиденция, салоны красоты Весна, Престиж, Jadore, школы, детские сады, развивающие центры для детей (Центр Буракова), больницы и многое другое.

Хочу посмотреть


Поделитесь с друзьями:

Собираетесь купить дом, дачу или коттедж на Калужском или Киевском направлении? Обязательно воспользуйтесь услугами компании «Белые Ветры», старейшего оператора загородной недвижимости на Юго-западе Подмосковья!
Рейтинг@Mail.ru