Продажа дачи, коттеджа, дома на Киевском, Калужском шоссе — цена, описание, фото, расположение на карте.

Дом, Ново-Троицкое к/п

Снят с реализации

Код: 119-805

Особенности объекта

Полностью готовый к проживанию кирпичный дом, выполненный по индивидуальному проекту, с использованием качественных материалов строительства и отделки. Вглядитесь в детали с помощью видеоролика. В доме: полностью оборудованная кухня-столовая, гостиная с выходом под камин, зимний сад, три спальни, СПА-зона с сауной, гараж. Высококачественная инженерия. Поселок в окружении леса.

Расположение

Ссылка на карту
Ново-Троицкое к/п (Пучково)
Калужское шоссе, от МКАД: 17 км, всего: 20 км
Киевское шоссе, от МКАД: 21 км, всего: 30 км
Тип застройки: сформированный к/п
Метро: Ольховая, Теплый стан, Прокшино; от 21 мин на авто
Коттеджный поселок «Ново-Троицкое»

Дом

Общая площадь строений: 200 м2
Год постройки дома: 2007
Количество уровней: 2
Материал стен: кирпич+утеплитель+пеноблок
Облицовка стен: декоративная штукатурка
Кровля: металлочерепица
Окна: стеклопакеты ПВХ
Стадия готовности: под ключ (частично меблирован)
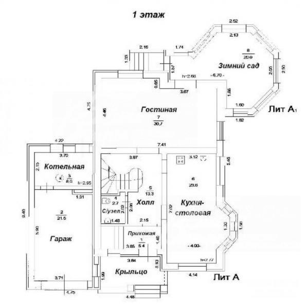
1-ый этаж: входная группа: крыльцо 4 кв.м, прихожая 5 кв.м, холл 13 кв.м, кухня-столовая 24 кв.м, гостиная 31 кв.м (с выводом под камин) с выходом в зимний сад 20 кв.м, гостевой с/узел 3 кв.м, гараж на 1 а/м 21.5 кв.м, котельная 8 кв.м
2-ой этаж: спальня 17.5 кв.м, спальня 14 кв.м, спальня 15 кв.м, с/узел 4 кв.м, ванная комната 14 кв.м (сауна, джакузи, душевая), холл 6.6 кв.м
3-ий этаж: откидной люк для входа в чердачное помещение
Описание внутренней отделки: стены: 1этаж - декоративная штукатурка, 2этаж - дорогие обои; пол: 1этаж - мраморная плитка с эл.подогревом, 2 этаж паркетная доска; подвесные потолки; лесничный марш - дубовые ступени на железном каркасе; двери из массива дуба (Италия), подоконники пластиковые
Инженерное обеспечение: котел DE DIETRICH 50 bar(25w+100), бойлер, многоступенчатая система очистки воды, установлены фильтры; вентиляция приточно-вытяжная, в с/узлах -принудительная, в каждой комнате установлены кондиционеры (5 шт.); счетчики воды и электричества; установлен видеодомофон
Мебель, оборудование: установлен кухонный гарнитур со встроенной бытовой техникой; меблированные спальни; в с/узлах установлена импортная сантехника
Дополнительная информация о доме: смешанный архитектурный стиль: Арт-Деко, Эклектика

Участок

Площадь участка, соток: 9
Тип участка: без деревьев
Благоустройство участка: организован газон, сделан дренаж участка
Статус земли: земли промышленности и иного специального назначения, для ИЖС
Дополнительная информация об участке: ровный, прямоугольный участок в центре поселка, по периметру огорожен кованым забором с автоматическими воротами

Коммуникации

Газ: есть (магистральный)
Э/э: есть (9 кВт)
Водопровод: центральный (и своя скважина)
Канализация: централизованная
Телефон: возможно подключение
Интернет: возможно подключение
Охрана: есть

Описание инфраструктуры

В 500 м школа, продуктовый магазин, храм. В деревне Пучково детский сад частной сети Sun School В 1,5 км развитая инфраструктура г. Троицка (Рестораны, фитнес-центр бизнес-класса с бассейном "Резиденция", салоны красоты, школы, детские сады, развивающие центры для детей (Центр Буракова), больницы и многое другое.

Элементы положит. окружения

В 200 метрах лесной массив и река, недалеко находится церковь д.Пучково

Хочу посмотреть


Поделитесь с друзьями:

Собираетесь купить дом, дачу или коттедж на Калужском или Киевском направлении? Обязательно воспользуйтесь услугами компании «Белые Ветры», старейшего оператора загородной недвижимости на Юго-западе Подмосковья!
Рейтинг@Mail.ru