Дом, Новое Глаголево КП
Код: 240-128
Особенности объекта
Стильный, загородный дом "под ключ" с мебелью и бассейном в коттеджном поселке с собственным озером и инфраструктурой. Выполнена отделка в классическом стиле с применением высококачественных и натуральных материалов. В доме 5 спален, кабинет, гардеробная, спа зона (бассейн, сауна), зимний сад. Стены из поризованного кирпича, облицованы клинкерным кирпичом ручной формовки. Участок 15 соток с ландшафтным дизайном, засажен хвойниками. Рядом детский сад и школа, детские и спортивные площадки, прибрежная прогулочная зона, супермаркеты и кафе, действующий храм Святого Пантелеймона.
Расположение
Ссылка на карту
Новое Глаголево КП (Новоглаголево)
Киевское шоссе, от МКАД: 32 км, всего: 37 км
Тип застройки: сформированный к/п
Метро: Филатов луг, Рассказовка, Теплый стан; от 27 мин на авто
Коттеджный поселок «Новое Глаголево»
Дом
Общая площадь строений: 534 м2
Количество уровней: 4
Спален: 5. С/узлов полных: 3. С/узлов неполных: 1. Комнат всего: 8.
Опции: бассейн (6 х 3 м глубина 1м 70 см с противотоком - скиммерный); сауна; терраса (теплая 37 кв.м); машиномест крытых: 2, в т.ч. в теплом гараже: 2; Большие панорамные окна, зимний сад, гардеробная.
Материал стен: кирпич поризованный
Облицовка стен: клинкерный кирпич ручной формовки - фирма Винербергер, Бельгия
Кровля: мягкая (Тегола)
Окна: стеклопакеты ПВХ (3-х камерные с энергосберегающим покрытием)
Стадия готовности: меблирован
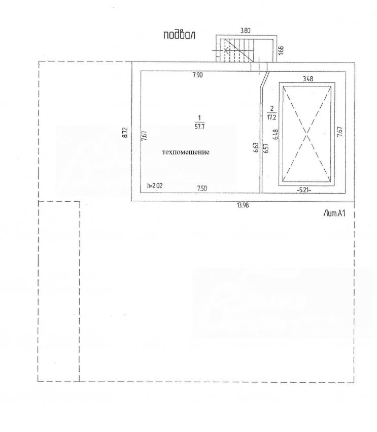
Цоколь: Занимает часть периметра дома - используется как техническое помещение для обслуживания бассейна и как вспомогательное помещение - 75 кв.м
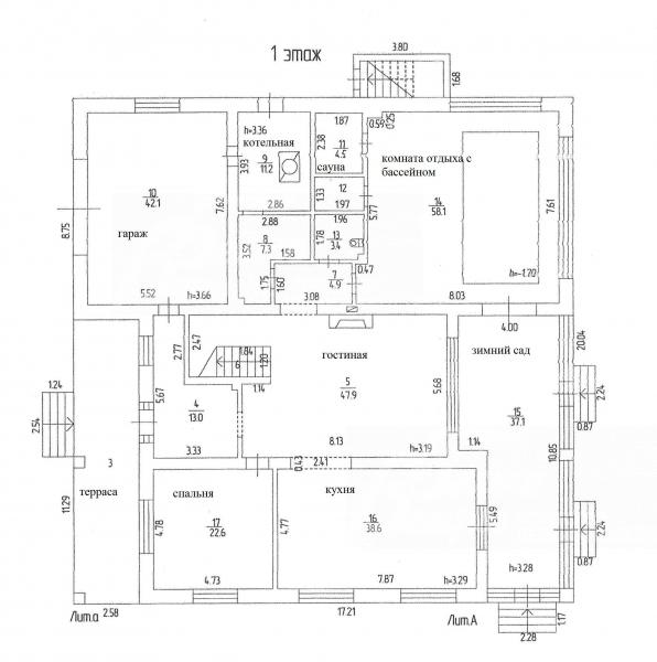
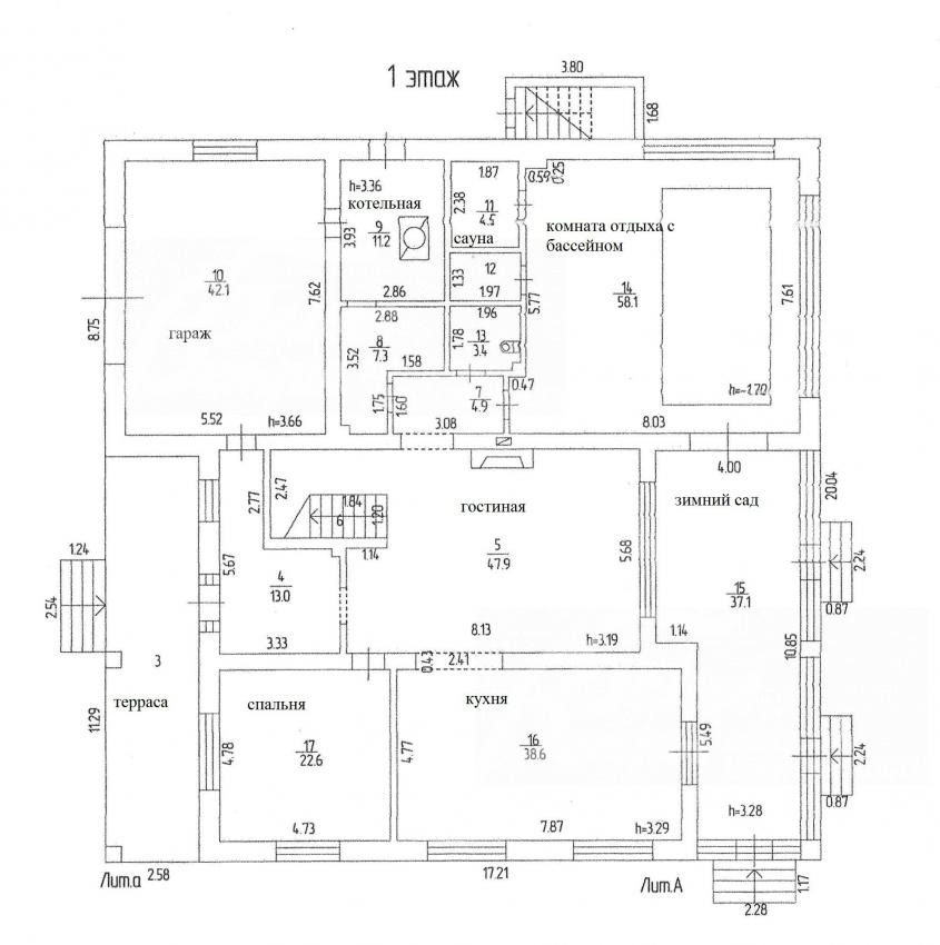
1-ый этаж: Терраса 30 кв.м, гараж 42 кв.м, котельная с вспомогательным помещением 18.5 кв.м, холл 13 кв.м, гостиная 48 кв.м, кухня 38.6 кв.м, спальня 22.6 кв.м, зимний сад 37 кв.м, комната отдыха с бассейном 58 кв.м, сауна 4.5 кв.м, душевая 2 кв.м, санузел.
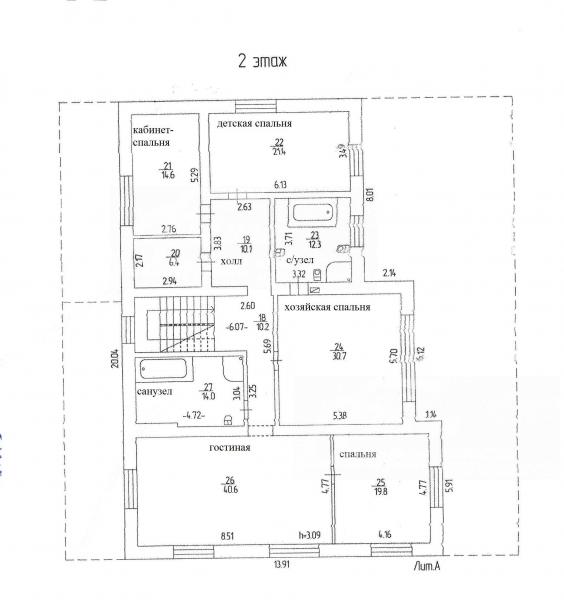
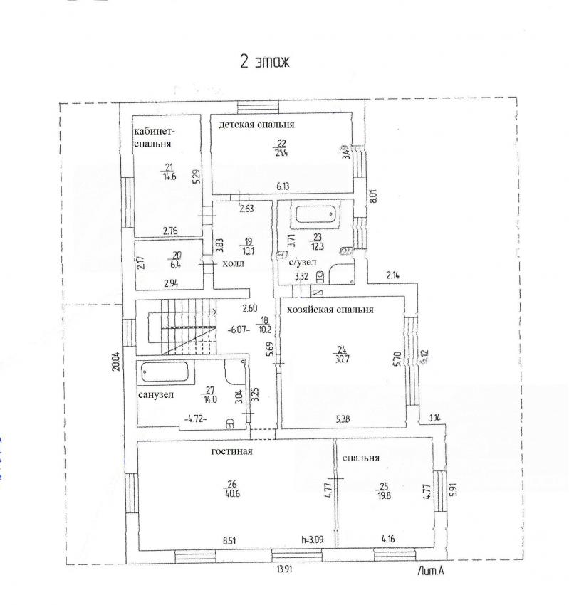
2-ой этаж: Гостиная 40.6 кв.м, гостевая спальня 19.8 кв.м, мастер- спальня 30.7 кв.м со своим санузлом 12 кв.м, кабинет-спальня 14.6 кв.м, постирочная 6.4 кв.м, детская 21.4 кв.м, санузел 14 кв.м, холл 20 кв.м
Описание внутренней отделки: Стены в спальнях оклеены бумажными обоями, в холле - декоративной штукатуркой. Полы на 1 этаже отделаны мраморной плиткой, на 2 этаже паркетная доска из дуба и ясеня. Потолки многоуровневые, из гипсокартона, с встроенной подсветкой, с карнизами и медальонами. Двери деревянные, из массива, с дорогой фурнитурой. Вся сантехника установлена.
Инженерное обеспечение: В доме установлен котел Viessmann на 45 кВт ( возможно подключение резервного котла). Вентиляция принудительная в санузлах, в бассейне вентиляция приточно-вытяжная с электронным управлением, с купированием и теплообменником.
Мебель, оборудование: Дом оборудован необходимой мебелью. В том числе: установлена кухонная мебель (большой длины) с техникой, со столешницей из камня; несколько оригинальных дизайнерских люстр; шелковые шторы
Дополнительная информация о доме: Фундамент ленточный с монолитной плитой. Перекрытия железобетонные. Высота потолков от 3,2 м.
Участок
Площадь участка, соток: 15
Тип участка: с деревьями и ландшафтом
Благоустройство участка: Вдоль забора высажены около 100 туй, также есть сосны и ели. Разбит газон, сделан дренаж.
Статус земли: Земли населенных пунктов, МЖС
Дополнительная информация об участке: Участок прямоугольной формы, расположен в центре поселка, ограждение-кованый забор на железобетонном фундаменте, облицован камнем.
Коммуникации
Газ: есть (магистральный)
Э/э: есть (15 кВт)
Водопровод: центральный
Канализация: централизованная
Телефон: есть
Интернет: есть (оптоволокно)
Охрана: есть (ЧОП, КПП, патрулирование территории, видеонаблюдение)
Описание инфраструктуры
В коттеджном поселке или по границе с ним расположены: ресторан на берегу пруда, оборудованный пляж, салон красоты, SPA-салон, зоны релаксации, магазины, спортивные и игровые площадки, прибрежная прогулочная зона, вертолетная площадка, храм Святого Великомученика Пантелеймона. Дороги вымощены брусчаткой, организовано уличное освещение. В пешей доступности находится коттеджный поселок "Глаголево-Парк" с богатой инфраструктурой: фитнес-центр с 25-метровым бассейном, аптека, медпункт, детский сад, школа, банк, магазины, современный кинотеатр, крытый теннисный корт. Так же рядом богатая инфраструктура коттеджной застройки деревни Новоглаголево, в том числе торгово-офисный центр, лечебно-профилактический центр. Удобное транспортное сообщение с Москвой: автобусы, маршрутные такси.
Хочу посмотретьПоделитесь с друзьями:
Похожие предложения:
Дом, Подолье КП (Шаганино), 457 м2, 16 сот
Варшавское шоссе, от МКАД: 24+6 км
Ольховая, Бунинская аллея - от 27 мин на автоДом, Подолье КП
Калужское ш., 25 км + 7 км
пл. участка: 16 сот
пл. дома: 457 м2
под ключ
Спален: 6. С/узлов: 3.


Дом, Глаголево парк (Новоглаголево), 490 м2, 15 сот
Саларьево, Рассказовка - от 32 мин на автоДом, Глаголево парк
Киевское ш., 32 км + 5 км
пл. участка: 15 сот
пл. дома: 490 м2
меблирован
Спален: 4. С/узлов: 4.

Дом, Цветочный к/п, 500 м2, 14.1 сот
Ольховая, Теплый стан - от 29 мин на автоДом, Цветочный к/п
Калужское ш., 24 км + 3 км
пл. участка: 14.1 сот
пл. дома: 500 м2
меблирован
Спален: 6. С/узлов: 3.












