Продажа дачи, коттеджа, дома на Киевском, Калужском шоссе — цена, описание, фото, расположение на карте.

Дом, Новое Глаголево КП

Снят с реализации

Дом под отделку в коттеджном поселке Новое Глаголево

Код: 240-716

Особенности объекта

Современный коттедж 236 кв.м с функциональной планировкой на большом участке 23 сотки. Дом отапливается, коммуникации и электричество разведены. Охраняемый коттеджный поселок бизнес-класса на берегу живописного озера с богатой инфраструктурой. Рядом школа, детский сад, рестораны, торгово-офисный центр, церковь.

Расположение

Ссылка на карту
Новое Глаголево КП (Новоглаголево)
Киевское шоссе, от МКАД: 32 км, всего: 37 км
Тип застройки: сформированный к/п
Метро: Филатов луг, Рассказовка, Теплый стан; от 27 мин на авто
Коттеджный поселок «Новое Глаголево»

Дом

Общая площадь строений: 236 м2
Год постройки дома: 2008
Количество уровней: 2
Спален: 3. С/узлов: 3. Комнат всего: 5.
Опции: терраса (крытая); камин.
Материал стен: кирпич (керамический, щелевой, марки "М125". Цоколь: керамический, красный полнотелый кирпич марки "М125" на песко-цементном растворе с армированием кладочной сеткой через 5 рядов)
Облицовка стен: штукатурка (+ покраска по технологии "BAU COLOR". Цоколь - искусственный камень)
Кровля: цементно-песчаная черепица ("Braas" (Германия))
Окна: стеклопакеты ПВХ (Германия)
Стадия готовности: под чистовую отделку
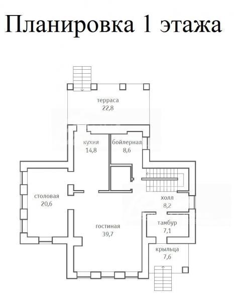
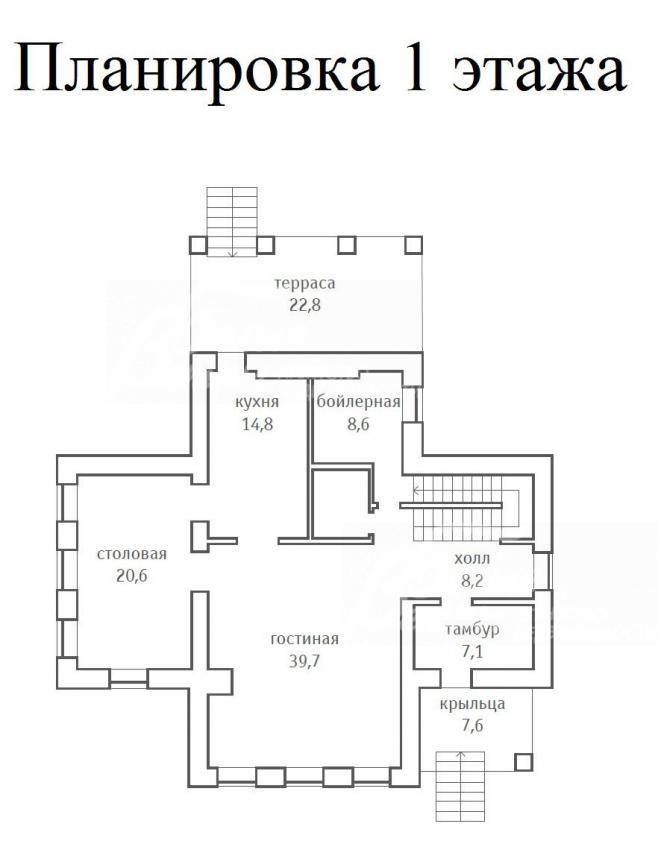
1-ый этаж: крыльцо 8 кв.м, прихожая 7 кв.м, холл 8 кв.м, кухня 15 кв.м с выходом на крытую террасу 23 кв.м, столовая 21 кв.м, гостиная 40 кв.м, бойлерная 9 кв.м
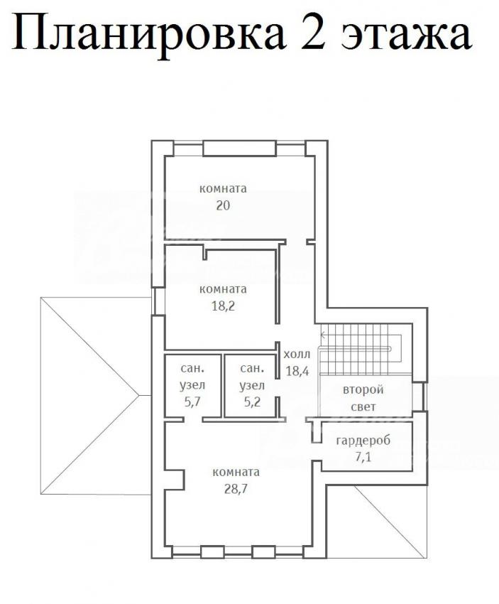
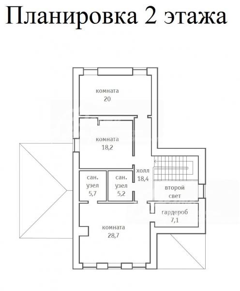
2-ой этаж: холл 18 кв.м, мастер спальня 29 кв.м с с/у 6 кв.м и с гардеробной 7 кв.м, спальня 20 кв.м, с/у 5 кв.м, спальня 18 кв.м
Описание внутренней отделки: стены выровнены и оштукатурены. Отделка котельной под ключ (плитка на полу и стенах, утеплённые и покрашенные откосы окна, гладкая покраска потолка, розетки, выключатели, подоконник пластиковый). Монолитный лестничный марш
Инженерное обеспечение: установлены котел "Viessmann" и бойлер "Vitocell 100". Установлены радиаторы "Korado" (Чехия). Дом полностью отапливается. Разведены все коммуникации. Теплые полы на 1 этаже
Дополнительная информация о доме: фундамент буро-набивной железобетон. Межэтажные перекрытия - плиты ЖБИ

Участок

Площадь участка, соток: 23
Тип участка: полевой
Благоустройство участка: участок ровный, прямоугольной формы, сделан дренаж, подготовка под газон, огражден кованым забором на железобетонном фундаменте. Въездная площадка, отмостка, стояночная площадка - железобетонная площадка толщиной 120 мм с покрытием тротуарной плиткой
Статус земли: земли населенных пунктов для МЖС
Дополнительная информация об участке: расположен в центре коттеджного поселка в непосредственной близости от зоны отдыха и озера

Коммуникации

Газ: есть (магистральный)
Э/э: есть (10 кВт)
Водопровод: центральный
Канализация: централизованная
Телефон: возможно подключение
Интернет: возможно подключение
Охрана: есть (ЧОП, КПП, патрулирование территории, видеонаблюдение)

Описание инфраструктуры

В коттеджном поселке или по границе с ним расположены: ресторан на берегу пруда, оборудованный пляж, салон красоты, SPA-салон, зоны релаксации, магазины, спортивные и игровые площадки, прибрежная прогулочная зона, вертолетная площадка, храм Святого Великомученика Пантелеймона. Дороги вымощены брусчаткой, организовано уличное освещение. В пешей доступности находится коттеджный поселок "Глаголево-Парк" с богатой инфраструктурой: фитнес-центр с 25-метровым бассейном, аптека, медпункт, детский сад, школа, банк, магазины, современный кинотеатр, крытый теннисный корт. Так же рядом богатая инфраструктура коттеджной застройки деревни Новоглаголево, в том числе торгово-офисный центр, лечебно-профилактический центр. Удобное транспортное сообщение с Москвой: автобусы, маршрутные такси.

Хочу посмотреть


Поделитесь с друзьями:

Собираетесь купить дом, дачу или коттедж на Калужском или Киевском направлении? Обязательно воспользуйтесь услугами компании «Белые Ветры», старейшего оператора загородной недвижимости на Юго-западе Подмосковья!
Рейтинг@Mail.ru