Продажа дачи, коттеджа, дома на Киевском, Калужском шоссе — цена, описание, фото, расположение на карте.

Дом, Новое Глаголево КП

Снят с реализации

Кирпичный дом около 600 кв.м на Киевском шоссе

Код: 240-805

Особенности объекта

Красивый и просторный, качественно построенный, кирпичный дом с бассейном для большой семьи в охраняемом коттеджном поселке Новое Глаголево. Дом под чистовую отделку. Обеспечен всеми центральными коммуникациями: газ, электричество, вода, канализация. Поселок расположен на берегу живописного озера, с одной стороны граничит с лесом. В КП оргаизована прогулочная и зона отдыха с рестораном на берегу озера.  

Расположение

Ссылка на карту
Новое Глаголево КП (Новоглаголево)
Киевское шоссе, от МКАД: 32 км, всего: 37 км
Тип застройки: формирующийся к/п
Метро: Филатов луг, Рассказовка, Теплый стан; от 27 мин на авто
Коттеджный поселок «Новое Глаголево»

Дом

Общая площадь строений: 595 м2
Год постройки дома: 2008
Количество уровней: 4
Спален: 5. С/узлов: 3. Комнат всего: 8.
Опции: бассейн; сауна.
Материал стен: кирпич
Облицовка стен: и иск.камень (рустовка, декор окон и др.)
Кровля: мягкая
Окна: стеклопакеты ПВХ
Стадия готовности: под чистовую отделку
Цоколь: бассейн (чаша 7м х 3,5 м, глубина 2 м), котельная 15 кв.м
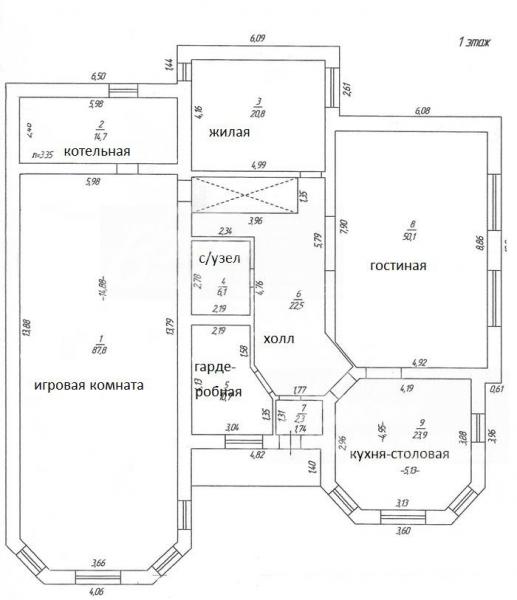
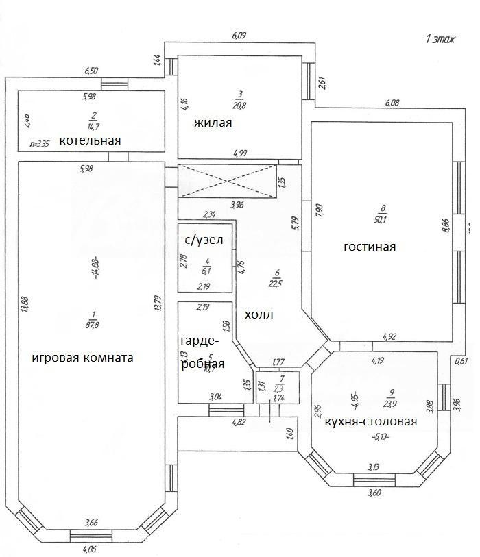
1-ый этаж: тамбур 2.3 кв.м, холл 22.5 кв.м, кухня-столовая 24 кв.м, гостиная 50 кв.м, гардеробная 11 кв.м, с/узел 6 кв.м, жилая комната 21 кв.м. + 0,5 уровня: большая игровая комната 88 кв.м, котельная 15 кв.м
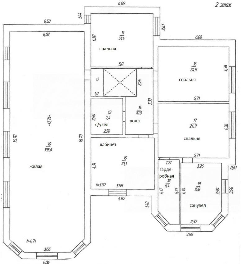
2-ой этаж: 3 спальни (21 кв.м, 25 кв.м, 25 кв.м с гардеробной 8.4 кв.м и с/узлом 16 кв.м), кабинет 21 кв.м, жилая 105.6 кв.м, с/узел 7 кв.м, холл 10 кв.м
3-ий этаж: мансардное помещение свободного назначения 114 кв.м (высота потолка 5 метров), с/узел 7.4 кв.м
Описание внутренней отделки: стены оштукатурены, сделана стяжка пола, установлен временный деревянный лестничный марш, потолки выровнены, сантехника не установлена, электричество разведено по дому. Двери не установлены
Инженерное обеспечение: установлен газовый котел; естественная приточно-вытяжная вентиляция

Участок

Площадь участка, соток: 15
Тип участка: поле

Коммуникации

Газ: есть
Э/э: есть
Водопровод: центральный
Канализация: централизованная
Охрана: есть (ЧОП, КПП, патрулирование территории, видеонаблюдение)

Описание инфраструктуры

В коттеджном поселке или по границе с ним расположены: ресторан на берегу пруда, оборудованный пляж, салон красоты, SPA-салон, зоны релаксации, магазины, спортивные и игровые площадки, прибрежная прогулочная зона, вертолетная площадка, храм Святого Великомученика Пантелеймона. Дороги вымощены брусчаткой, организовано уличное освещение. В пешей доступности находится коттеджный поселок "Глаголево-Парк" с богатой инфраструктурой: фитнес-центр с 25-метровым бассейном, аптека, медпункт, детский сад, школа, банк, магазины, современный кинотеатр, крытый теннисный корт. Так же рядом богатая инфраструктура коттеджной застройки деревни Новоглаголево, в том числе торгово-офисный центр, лечебно-профилактический центр. Удобное транспортное сообщение с Москвой: автобусы, маршрутные такси.

Элементы положит. окружения

Лесной массив, озеро с пляжной зоной, поселок Новоглаголево с развитой инфраструктурой

Хочу посмотреть


Поделитесь с друзьями:

Собираетесь купить дом, дачу или коттедж на Калужском или Киевском направлении? Обязательно воспользуйтесь услугами компании «Белые Ветры», старейшего оператора загородной недвижимости на Юго-западе Подмосковья!
Рейтинг@Mail.ru