Продажа дачи, коттеджа, дома на Киевском, Калужском шоссе — цена, описание, фото, расположение на карте.

Дом, Новоглаголево к/п

Снят с реализации

Дом под ключ 600 кв.м в кп Новоглаголево

Код: 203-829

Особенности объекта

Красивый, светлый дом с хорошей планировкой и просторными комнатами на двухуровневом участке с лесными деревьями. Обжитой поселок с собственной инфраструктурой, окруженный лесом.

Расположение

Ссылка на карту
Новоглаголево к/п (Новоглаголево)
Киевское шоссе, от МКАД: 32 км, всего: 37 км
Тип застройки: обжитой к/п
Метро: Апрелевка, Рассказовка, Теплый стан; от 26 мин на авто

Дом

Общая площадь строений: 600 м2
Год постройки дома: 2008
Количество уровней: 3
Спален: 4. С/узлов: 4. Комнат всего: 8.
Опции: терраса; холодный подвал; машиномест крытых: 2, в т.ч. в теплом гараже: 2; сауна, камин, квартира для персонала возможны.
Материал стен: кирпич
Облицовка стен: штукатурка
Кровля: мягкая
Окна: стеклопакеты алюминиевые
Стадия готовности: под ключ
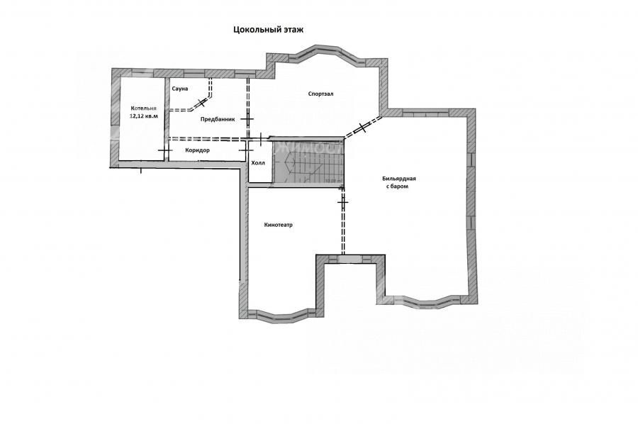
Цоколь: Свободная планировка 270 кв.м: холл, котельная с выходом на улицу, сауна с душевыми и комнатой отдыха, бильярдная, спортивный зал, кинотеатр.
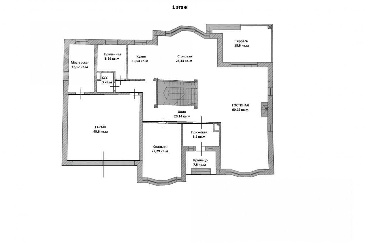
1-ый этаж: Крыльцо 7.5 кв.м, прихожая 8.5 кв.м, холл 20 кв.м, гостиная 60 кв.м со вторым светом, столовая 28 кв.м с выходом на террасу 18.5 кв.м, кухня 10.5 кв.м, спальня 22 кв.м, прачечная 8.7 кв.м, с/узел 3 кв.м, гараж 45.5 кв.м, мастерская 12 кв.м
2-ой этаж: Холл 23.7 кв.м, спальня 22 кв.м, спальня 28.7 кв.м, общий с/узел 8 кв.м, коридор 3 кв.м, спальня 30.4 кв.м, с/узел 9.8 кв.м, гардеробная 6.7 кв.м.
3-ий этаж: 44 кв.м
Описание внутренней отделки: Современная стильная отделка выполненная из дорогостоящих материалов. Стены окрашены биологически чистыми красками (пр-ва Германия), оклеены шелковыми и бумажными обоями (пр-ва Италия, США), оштукатурены декоративной штукатуркой "Венецианка", отделаны кафелем из итальянских коллекций и искусственным камнем. На полу кафель и керамогранит с водяным подогревом (пр-ва Италия), паркетная доска (пр-ва Германия). Потолки подвесные ГКЛ, многоуровневые различной скрытой подсветкой и с карнизами под лепнину. Лестница железобетонная с деревянными ступенями из дуба. Все коммуникации разведены под ключ, для панорамного освещения в пол встроены конвекторы. Двери - МДФ шпоном белого дуба с резными обналичками и порталами. Подоконники из ПВХ под мрамор.
Инженерное обеспечение: Вентиляция в доме естественноприточная, система очистки воды многоступенчатая. Отопление и горячее водоснабжение обеспечивают газовый котел Baxi мощностью 80 кВт (пр-ва Германия) и бойлер на 150 л Reflex.
Мебель, оборудование: Люстры из итальянских коллекций
Дополнительная информация о доме: Фундамент железобетонная монолитная плита на подушке и железобетонные монолитные стены цоколя, перекрытия железобетонные монолитные

Участок

Площадь участка, соток: 15
Тип участка: лесной
Благоустройство участка: На участке растут лесные деревья: дуб, ель, липа. Участок имеет два уровня с опорной стеной из ж/б монолита, выполнены дорожки и парковка из брусчатки. Дренажная система с колодцами вокруг дома ниже уровня фундаментной плиты.
Статус земли: ИЖС
Дополнительная информация об участке: участок прямоугольной формы, расположен в центре поселка, огорожен каменным забором

Коммуникации

Газ: есть (магистральный)
Э/э: есть (15 кВт)
Водопровод: индивид. скважина
Канализация: централизованная
Телефон: возможно подключение
Интернет: есть (оптиковолокно)

Описание инфраструктуры

Известный поселок со своей инфраструктурой: собственный большой благоустроенный пруд, ресторан, церковь, детская площадка, рядом еще ресторан, магазины. В нескольких километрах инфраструктура Селятино, Апрелевки, Алабино.

Элементы положит. окружения

Рядом река и пруд.

Хочу посмотреть


Поделитесь с друзьями:

Собираетесь купить дом, дачу или коттедж на Калужском или Киевском направлении? Обязательно воспользуйтесь услугами компании «Белые Ветры», старейшего оператора загородной недвижимости на Юго-западе Подмосковья!
Рейтинг@Mail.ru