Дом, Коммунарка
Код: 746-802
Особенности объекта
Новый дом с отделкой под ключ и с центральными коммуникациями в охраняемом коттеджном посёлке класса «комфорт плюс» с престижной локацией: вся городская инфраструктура (школы, детские сады, торговые центры, развлекательный кластер), станции метро и автобусная остановка – в пешей доступности. Дом построен по авторскому архитектурному проекту в современном стиле: есть просторная терраса, функциональный мансардный этаж (в проекте: кинотеатр, спальня, подсобные помещения). Возможно увеличение числа санузлов до 4, спален – до 5-6. Дом стоит на облагороженном компактном придомовом участке, не требующем больших вложений.
Расположение
Ссылка на карту
Коммунарка (Клуб 15)
Калужское шоссе, от МКАД: 4 км, всего: 6 км
Варшавское шоссе, от МКАД: км, всего: 9 км
Тип застройки: формирующийся к/п
Метро: Потапово, Бунинская аллея, Теплый стан; от 5 мин на авто
Дом
Общая площадь строений: 188 м2 (2 этажа + мансардный этаж + терраса и навес для авто)
Год постройки дома: 2024 (завершение отделки под ключ в 2025 г.)
Количество уровней: 2
Спален: 4. С/узлов: 3. Комнат всего: 6.
Опции: терраса (две); машиномест крытых: 2; число санузлов в доме можно увеличить до 4; число спален - до 5-6.
Материал стен: газобетонный блок (Bonolit, плотность D400, класс прочности 2,5, толщина стены 36-45 см)
Облицовка стен: 1-й этаж - облицовочный кирпич коричневого цвета; 2-й этаж - штукатурка/ окраска
Кровля: металлическая (фальцевая)
Окна: стеклопакеты ПВХ (Rehau, двухкамерные, ламинированные с 2-х сторон, 3 стекла (площадь остекления в гостиной более 10 кв.м)
Стадия готовности: WhiteBox
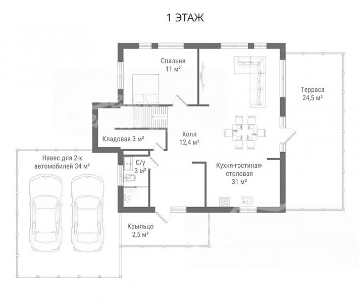
1-ый этаж: крыльцо 2,5 кв.м, холл 12,5 кв.м, кухня-гостиная-столовая 31 кв.м, спальня 11 кв.м, санузел 3 кв.м, кладовая 3 кв.м, терраса 24,5 кв.м, навес для 2-х автомобилей 24,5 кв.м
2-ой этаж: коридор 6 кв.м, мастер-спальня 10,5 кв.м с гардеробной 5,5 кв.м и санузлом с ванной 4,5 кв.м, спальня 11 кв.м, спальня 11 кв.м, ванная-постирочная 6 кв.м
3-ий этаж: мансардный этаж. По проекту: холл 9 кв.м, кинотеатр 34,5 кв.м (либо спальня с гардеробной), спальня 12 кв.м, санузел 5 кв.м, гардеробная 5 кв.м, кладовая 6 кв.м
Описание внутренней отделки: выполнена современная стильная отделка под ключ. Стены: в жилых помещениях выкрашены – матовые светлые пастельные оттенки, двери – в цвет стен; в санузлах – крупноформатная плитка серых цветов. На полу: в прихожей, санузлах, гардеробной – плитка с подогревом; в остальных помещениях - дубовая инженерная доска (ламинат). Потолки – натяжные. Установлены: входная дверь и дверь на террасу со стеклом, подоконники около 50 см высотой от пола. На второй этаж ведёт железобетонная монолитная лестница со ступенями, отделанными массивом дуба
Инженерное обеспечение: все коммуникации разведены по дому, в том числе выведены на мансардный этаж. Отопление – через настенный газовый котёл. Система горячего водоснабжения - от контура газового котла. Установлена начальная система очистки воды
Мебель, оборудование: санузлы укомплектованы сантехникой, запланирована установка кухонного гарнитура
Дополнительные строения: навес для 2-х автомобилей площадью 24,5 кв.м
Дополнительная информация о доме: фундамент – монолитная железобетонная плита, межэтажные перекрытия – монолитные железобетонные, высота потолков на 1-м этаже – до 3,23 м, на мансардном этаже – до 2,65
Участок
Площадь участка, соток: 4.5
Тип участка: без деревьев
Благоустройство участка: облагороженный парковый участок: высажены газон и туи по границе. По периметру участка проходит дренажная система
Статус земли: категория земель, к которой отнесен земельный участок, - земли населенных пунктов; вид разрешенного использования - для ИЖС
Дополнительная информация об участке: участок расположен по границе коттеджного посёлка, контур участка обозначен железобетонными подпорными стенами высотой 20 см
Коммуникации
Газ: есть (магистральный, МосГаз)
Э/э: есть (от внешних сетей, 15 кВт, 3 фазы)
Водопровод: центральный
Канализация: автономная (планируется городское от А101)
Телефон: возможно подключение
Интернет: возможно подключение (оптоволокно (рядом на столбе))
Охрана: есть (охраняемый коттеджный посёлок)
Поделитесь с друзьями:
Похожие предложения:
Дом, Коммунарка (Клуб 15), 188 м2, 4.5 сот
Варшавское шоссе, от МКАД: +9 км
Потапово, Бунинская аллея - от 5 мин на автоДом, Коммунарка
Калужское ш., 4 км + 2 км
пл. участка: 4.5 сот
пл. дома: 188 м2
под отделку
Спален: 4. С/узлов: 3.
Дом, Бурцево КП (Бурцево), 160 м2, 5 сот
Филатов луг, Аэропорт Внуково - от 18 мин на автоДом, Бурцево КП
Киевское ш., 14 км + 1 км
пл. участка: 5 сот
пл. дома: 160 м2
меблирован
Спален: 3. С/узлов: 2.
Дом, Синергия КП (Зименки), 176 м2, 5 сот
Киевское шоссе, от МКАД: 7+5 км
Ольховая, Теплый стан - от 10 мин на автоДом, Синергия КП
Калужское ш., 7 км + 4 км
пл. участка: 5 сот
пл. дома: 176 м2
под чистовую отделку
Спален: 4. С/узлов: 3.
|











