Продажа дачи, коттеджа, дома на Киевском, Калужском шоссе — цена, описание, фото, расположение на карте.

Дом, Пенино

Снят с реализации

Код: 198-209

Особенности объекта

Большой кирпичный дом, красивый проект, много просторных комнат, большой гараж на 6 м/м

Расположение

Ссылка на карту
Пенино
Калужское шоссе, от МКАД: 11 км, всего: 14 км
Киевское шоссе, от МКАД: 7 км, всего: 17 км
Тип застройки: коттеджная застройка
Метро: Ольховая, Теплый стан, Саларьево; от 13 мин на авто

Дом

Общая площадь строений: 1021 м2
Год постройки дома: 2009
Количество уровней: 3
Спален: 4. С/узлов полных: 4. С/узлов неполных: 1. Комнат всего: 9.
Опции: бассейн; сауна; терраса; камин; машиномест крытых: 6, в т.ч. в теплом гараже: 6.
Материал стен: кирпич
Облицовка стен: штукатурка
Кровля: мягкая
Окна: стеклопакеты ПВХ
Стадия готовности: под отделку
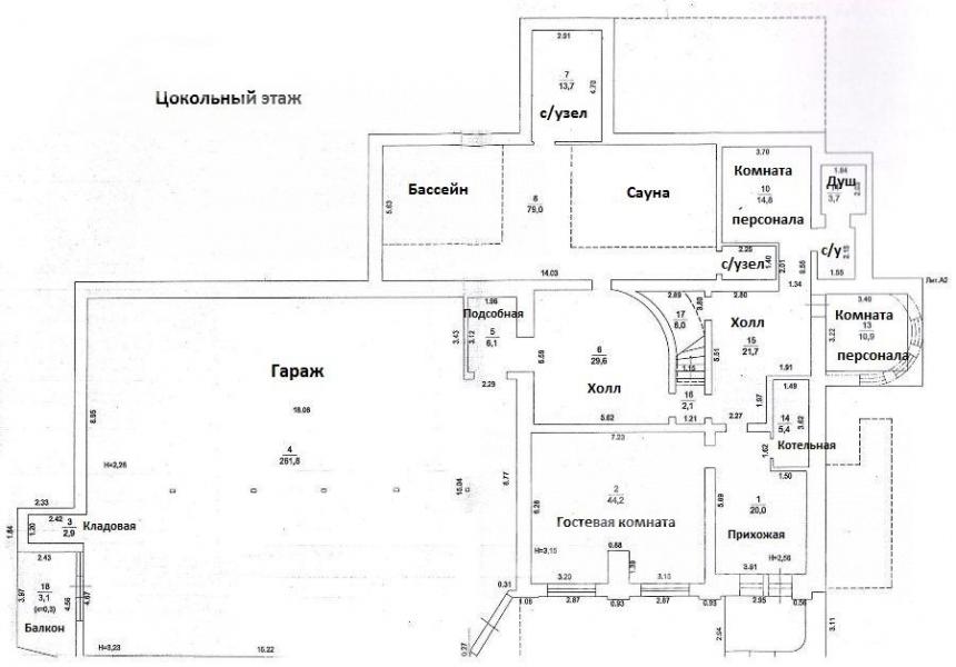
Цоколь: прихожая 20 кв.м, гостевая комната 44 кв.м, холл 30 кв.м, СПА-зона с бассейном и сауной 79 кв.м, с/узел 14 кв.м; холл 22 кв.м, комната персонала 15 кв.м, с/узел и душевая 7 кв.м, комната персонала 11 кв.м, котельная 5.5 кв.м, гараж 262 кв.м, подсобная 6 кв.м, балкон
1-ый этаж: прихожая 15 кв.м, гардеробная, с/узел 5 кв.м, гостиная с эркером и камином 66.5 кв.м, бильярдная 55 кв.м, кухня 12.5 кв.м, столовая 80 кв.м, терраса 65 кв.м, терраса 46 кв.м
2-ой этаж: мансарда: спальня 23.5 кв.м, спальня 68.5 кв.м, с/узел, помещение свободного назначения 155 кв.м
Описание внутренней отделки: выполнена черновая стяжка пола, временные деревянные лестницы
Дополнительная информация о доме: Дом выстроен в стиле классического модерна. Фундамент монолитный, пеноблоки; перекрытия - железобетонные плиты, высота потолков 3.40 м

Участок

Площадь участка, соток: 19
Тип участка: без деревьев
Благоустройство участка: участок выровнен, организован газон, сделан дренаж
Статус земли: земли населенных пунктов, для ИЖС
Дополнительная информация об участке: участок немного неправильной формы в центре поселка, огорожен сплошным кирпичным забором по периметру

Коммуникации

Газ: нет (магистральный газ по границе, получены ТУ и проект)
Э/э: есть (15 кВт)
Водопровод: индивид. скважина
Канализация: автономная
Телефон: возможно подключение (оптоволокно)
Интернет: возможно подключение (оптоволокно)

Описание инфраструктуры

В 4 км развитая инфраструктура мкр. Новые Ватутинки: школы, детсады, взрослая и детская поликлиника, магазины, банк. В 5 км инфраструктура пос. Марьино: школа, детская амбулатория, центр культуры и спорта, магазины, почта. Недалеко от поселка расположен санаторий "Десна", принадлежащий Управлению делами Президента РФ. К услугам гостей санатория - крытый бассейн, сауны, спортивный клуб, лодочная станция, бары и рестораны. Также в пяти минутах езды, в поселке "Дубровка", находится торговый центр, рестораны, автомойка.

Элементы положит. окружения

Лесной массив расположен в 2 км, недалеко р.Десна и Незнайка.

Хочу посмотреть


Поделитесь с друзьями:

Собираетесь купить дом, дачу или коттедж на Калужском или Киевском направлении? Обязательно воспользуйтесь услугами компании «Белые Ветры», старейшего оператора загородной недвижимости на Юго-западе Подмосковья!
Рейтинг@Mail.ru